🔥 CYBER MONDAY 24H: -60% su tutti i prezzi del sito! Solo fino a mezzanotte. Usa il codice CYBERMONDAY25 👉🏼
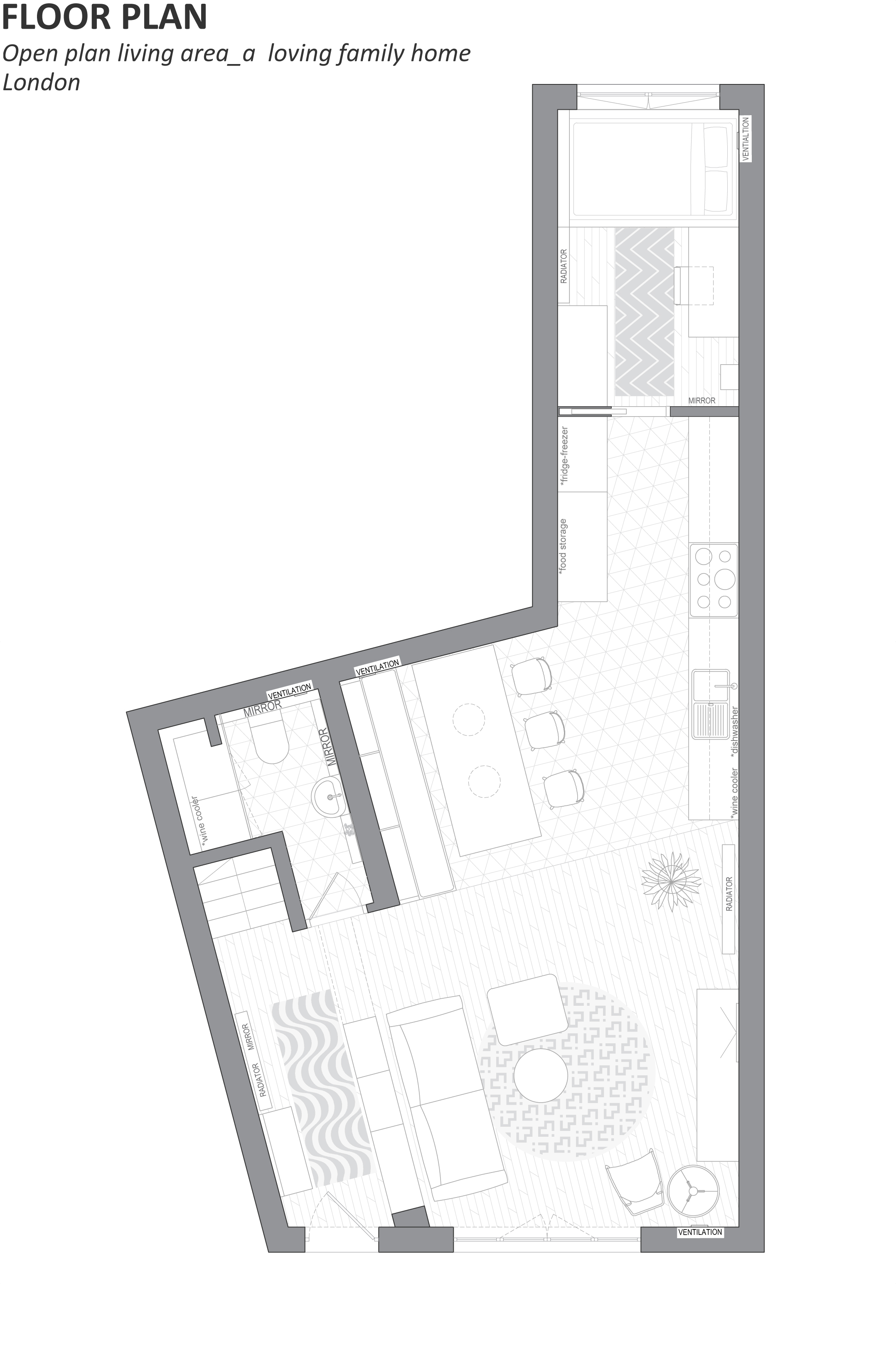
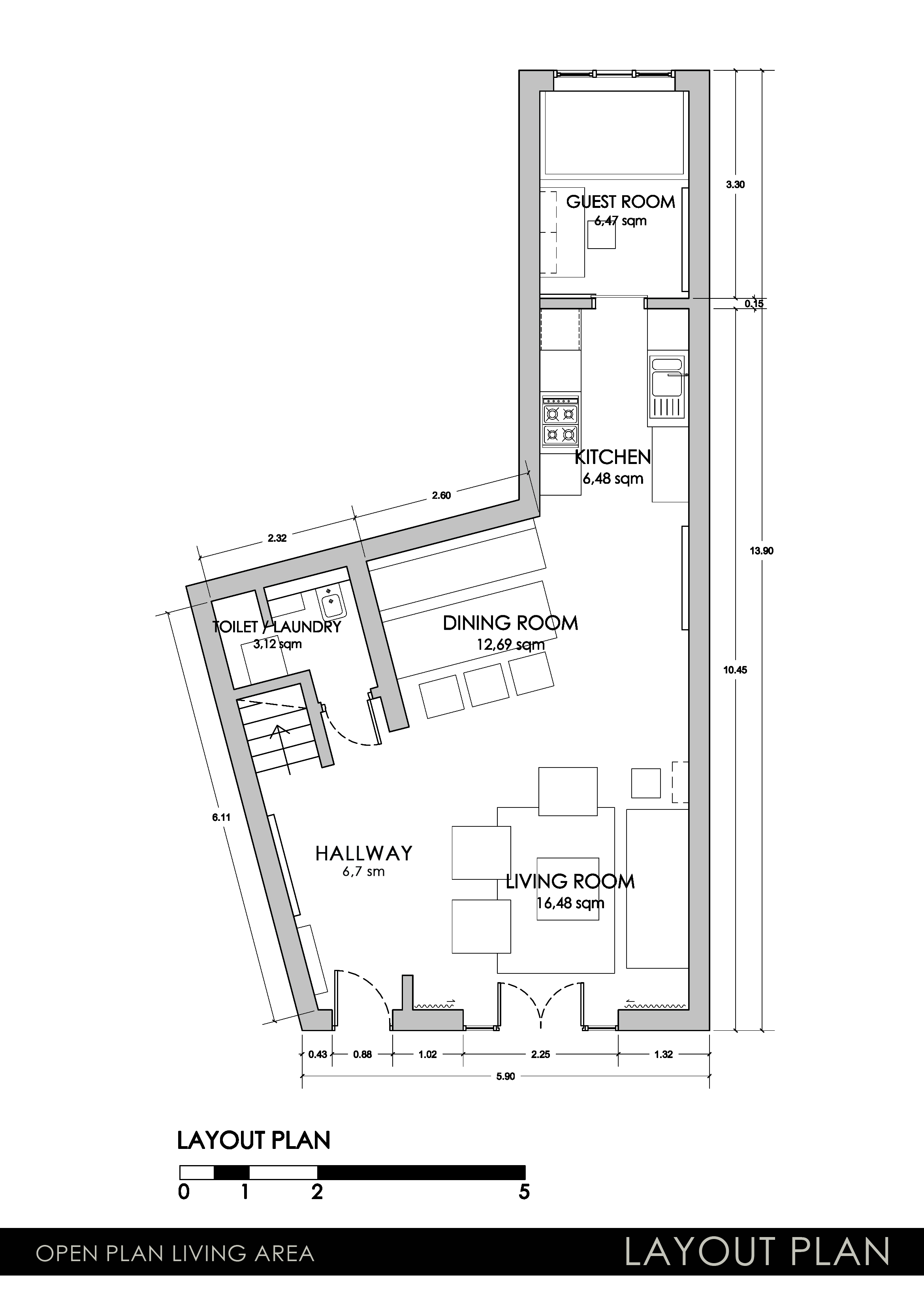
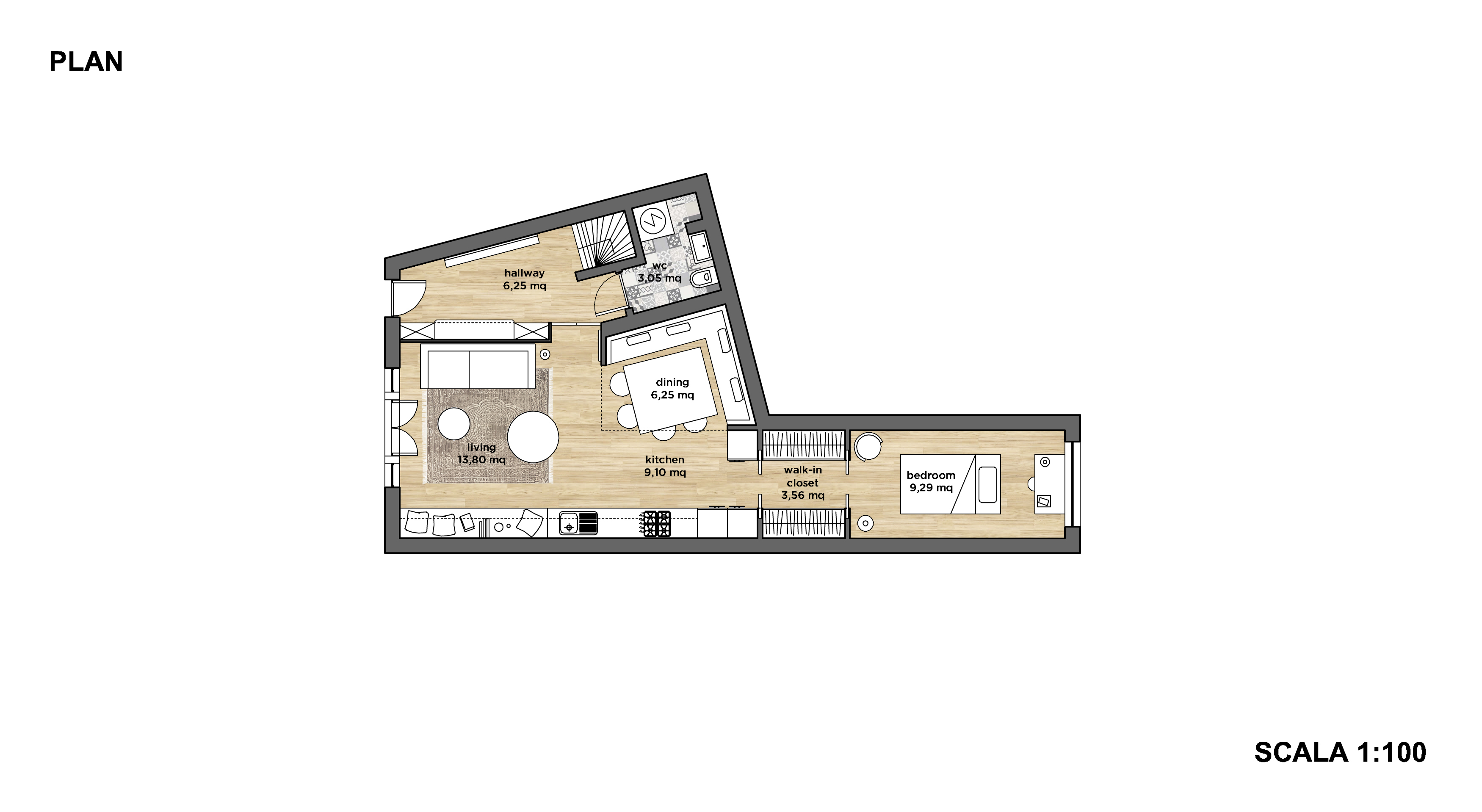
home / concorsi / open plan living area with kitchen, hall, bedroom and toilette in london
img

open plan living area with kitchen, hall, bedroom and toilette in london

London, UK

Residenziale - small-apt

  • 1° Posto $ 735
  • 2° Posto $ 210
  • 3° Posto $ 105