
Verona, VR, Italy
Residenziale - medium-villa
Descrizione
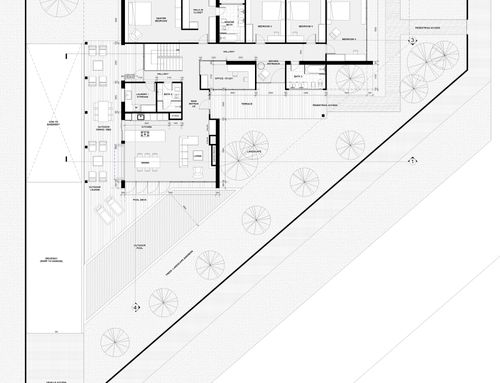
This Contest is about planning the interior and the related external areas of a villa on plot U.M.I. 1 in attached blueprint (North is on the top side) . The lot is in Northern Italy on a flat land.
We would like to realize the house in a modern and linear style and using all the places in the best way.
We want to build a climate house, we haven’t decided yet the buildings materials, also wooden prefab houses.
Constraints/limitations.
Italian law applies. Few points to help the foreign designers/architects:
- All that is above ground level should stay at least 5 meters from the borders.
- No limitations on the underground but at least 30% of the surface should be permeable to water
MUST
- This Villa has only one floor and a basement
- Gross Floor Area: no more than 235 square meters (it should NOT be a luxury house as per law "Decreto del 2 agosto 1969 - Min. Lavori Pubblici")- In case of porch please consider that its size counts 50%
- The Maximum height is 7.5 meters
Ground floor
- Open space with wide glass windows with kitchen + living but with kitchen "partially hidden" (at least not in front of the entrance)
- Small bathroom with window to serve the living/kitchen
- Three small bedrooms (min size 3x4 m)
- One bathroom with window to serve the three small bedrooms
- One main bedroom with bathroom with window and "wardrobe room"
- laundry/storage/iron room with washing machine, a dryer and a wardrobe for towel, sheets etc and space for the cleaning stuff (vacuum/detergents...), shoes?
- One study/office room
Basement
- Big "taverna" possibly with window(s) to get some natural light/air exchange
- Bathroom
- Inner staircase connected to the ground floor
- Space for 4-6 cars
- Space for bikes/motorbikes
- Man-cave/laboratory
- small storage room
NICE TO HAVE (in order of importance)
- Possibility to easily split the house in two apartments: one smaller (think living/kitchen + bathroom + bedroom 40-70 sqm) and one bigger with the remaining space with independent pedestrian entrances.
- Porch to dine outside
- High ceiling and wooden beams on the living room
- Energy saving practices (e.g. sun esposition) would be appreciated
- Pool external (in case min size 5x8)
- Internal pool (in case min size 3x12)
- Possibility to highten of one floor to add an appartment (in this lot there is the possibilty to build 420 square meters surface)
We are glad to receive also ideas about:
– realization of the roof, by considering the modern style of the house;
– external surface finishing, colours and materials;
– realization of the external garden and the general arrangement of the places around the houses
– arrangement of darkening device for windows;
– arrangement for the installation of solar panels;
– arrangement for the installation of a under floor heating;
– arrangement for the alarm system.
___________________________________________________________________________________________________________
Questo Contest riguarda la progettazione dell'interno e dell'esterno di una villa da costruire nel lotto U.M.I. 1 nelle planimetrie allegate (nelle quali il Nord è in alto).
Vorremmo realizzare una casa in stile moderno e lineare utilizzando gli spazi in maniera efficiente e senza sprechi.
Probabilmente costruiremo una casa-clima, ma non abbiamo ancora deciso i materiali di costruzione, propendiamo per la muratura, ma non escludiamo case in legno prefabbricate
Abbiamo già realizzato un progetto preliminare con un nostro specialista ma vorremmo avere altre idee per migliorare la nostra casa e renderla unica.
Vincoli/limitazioni
la villa è costruita sul territorio italiano, per cui vale la legge italiana e quella del comune di Verona. I punti principali sono:
- tutto ciò che è sopra il livello del suolo deve essere ad almeno 5 m dal confine.
- nessuma limitazione nel sotterraneo, ma almeno il 30% della superficie deve essere permeabile.
Dividiamo i requisiti in OBBLIGATORI e FACOLTATIVI (cose che ci piacerebbero ma siamo almeno in parte disposti a sacrificare per soddisfare i requisiti obbligatori)
REQUISITI OBBLIGATORI
- la villa è composta da piano terra e interrato
- la superficie lorda massima del piano terra è di 235 mq. Non deve essere classficata come casa di lusso ex Decreto del 2 agosto 1969 - Min. Lavori Pubblici
- i portici contano il 50%
- massima altezza a grondaia di 7,5m
Piano terra
- Open space ampie vetrate contenente soggiorno e cucina con isola, con cucina"parzialmente nascosta" (per lo meno non di fronte all'ingresso)
- un piccolo bagno finestrato per servire living/kitchen
- tre piccole camere (min 3x4 m)
- bagno finestrato per servire le tre piccole camere
- camera padronale con bagno finetrato e cabina armadio
- lavanderia/scafalatura/stireria con lavatrice, asciugatrice e un armadio per asciugamani, lenzuola etc e spazio per il materiale da pulizia (aspirapolvere/detergenti...), scarpe?
- studio
Interrato
- Grande "taverna" possibilmente con finestre (non bocche di lupo) verso l'esterno per avere luce naturale/ricambio d'aria
- Bagno
- scala interna per il piano terra
- Spazio per 4-6 automobili
- Spazio per biciclette/motociclette
- Man-cave/laboratorio
- Piccola cantina per riporre alimentari e vino
FACOLTATIVI (in ordine di importanza)
- Possibilità di dividere con semplicità la villa in due appartamenti: uno più piccolo (con un living/cucina + un bagno + camera da letto per un totale di 40-70 mq) e uno più grande con lo spazio rimamente
- portico dove sistemare un tavolo con sedie per 8-10 persone
- soffitto alto con travi in legno nel soggiorno
- Piscina esterna (eventualmente min 5x8m)
- Piscina interna, anche interrata ma con luce naturale (eventualmente min 3x12 per nuotate nel periodo autunno inverno)
- Buone Pratiche di risparmio energetico (es. esposizione solare della stanza living) sono apprezzate.
- Possibilità futura di alzare di un piano per aggiungere un appartamento al primo piano. In questo lotto c'è la possibilità di costruire fino a 420 metri quadri di Superficie Utile lorda (SUL). Al momento non c'è intenzione di costruire un secondo piano, ma una predisposizione anche se non necessaria forse è da considerare.
Saranno anche gradite idee circa:
– Realizzazione del soffitto del living, considerando lo stile moderno della casa;
– Finiture esterne in termini di colori/materiali;
– realizzazione del giardino esterno e in generale delle zone esterne alla casa;
– sistemi di oscuramento per le finestre;
– sistemazione di eventuali pannelli solari;
– sistemazione del sistema di riscaldamento a pavimento;
– sistemazione del sistema di allarme.