Jeddah Saudi Arabia
Residenziale - Altro
Descrizione
Dear Designers,
You are invited to design the interior of the lobby and common areas of a small office building.
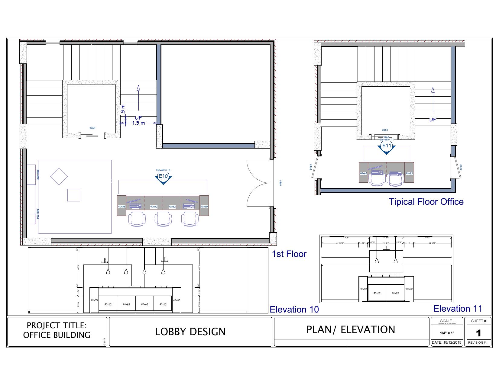
There are 3 connected spaces to be designed:
1) The ground entrance lobby, area is approximately 44 SqM.
2) The staircase.
3) Typical floor lobby, area is approximately 11 SqM.
The requirements are:
1) 3 X 3D renderings:
A) As you enter the ground lobby.
B) Any angle clearly showing the elevator and staircase.
C) Showing the typical floor office entrances.
If the above is not clear, please send the view angles you plan to render to double check.
2) Material and finishing selection for floors, ceilings, and walls. For all 3 spaces.
3) Floor plan with tiling layout (color), elevations where necessary (color), and ceiling plan. For all 3 spaces.
4) Custom design of a front desk counter and typical office entrance door. Plus any other furniture you would like to recommend. Front desk design should include material specifications, plan, elevations, and sections where necessary.
5) Lighting fixtures selection for all 3 spaces.
Important notes:
- This is not a high class or luxury property, so the budget for materials should be standard but not cheap.
- Elevator door finish will be brushed stainless steel with door opening size: 90cm x210cm
- Building entrance door design is not required. It will be a glass on aluminum frame double leaf swing door with tall vertical brushed stainless steel pipe handles. Aluminum frame is painted grey.
- Staircase windows W7 are 60cm by 110cm. Aluminum frame is painted grey.
- The ground lobby is actually pretty small, so we want a design that makes it seem big and grand. Therefore ceiling design, color and finishing selection is key.
- The link below contains all the necessary files. The areas to be designed are in a revision cloud and clearly annotated. They can be found in these 2 files:
"AR-01 GROUND-MEZZ FLOOR PLAN"
"AR-02 FIRST-SECOND FLOOR PLAN"
https://www.dropbox.com/sh/yv4zmili01igfcj/AADAq-sjcf-PRvRuiyKiF9Tka?dl=0
Thank you for stopping by and reading this brief. I hope you like this project and enjoy working on it.
Please let me know if you have any questions.
Cheers!
Risorse