
18038 Sanremo, Province of Imperia, Italy
Residenziale - Zona Giorno/Notte
Descrizione
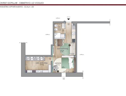
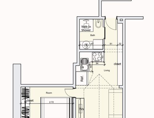
Voglio ristrutturare per poi rivendere subito il monolocale seguendo consigli di home staging affinchรฉ chiunque entri voglia comprarlo subito! Amo i colori chiari e delicati. Voglio che sia stiloso ma raffinato. Valuto di creare ampia apertura di fronte allโentrata (demolendo parte del muro) tra ingresso e sala ed ottenere un bagno completo sulla destra . Installare la cucina o in entrata a sinistra o in sala (dietro bagno). Il bagno dovrร contenere una bella doccia e lavatrice oltre ai sanitari e mobile lavandino. ร obbligatorio sanitrit per scarichi. La porta scorrevole di accesso al bagno dovrร essere necessariamente in entrata. Nel sottotetto, in cui l'altezza massima รฉ circa 160 cm, vorrei ricavare un locale con mobili contenitori. Vorrei cercare di rendere poco visibile la trave centrale e le parti sporgenti laterali, anche utilizzando carta da parati o luci ad hoc. Chiedo che risulti luminoso ed accogliente. Ideale per 2 persone ma che possa accogliere anche 2 ospiti. Vorremmo utilizzare mobili low cost.
_____________________________________________________________________________________________________________________
I want to renovate and then immediately resell the studio apartment following home staging advice so that anyone who comes in wants to buy it immediately! I love light and delicate colors. I want it to be stylish but refined. I consider creating a large opening in front of the entrance (by demolishing part of the wall) between the entrance and the living room and obtaining a complete bathroom on the right. Install the kitchen either at the entrance on the left or in the living room (behind the bathroom). The bathroom must contain a nice shower and washing machine as well as bathroom fixtures and sink cabinet. Sanitation for drains is mandatory. The sliding door leading to the bathroom must necessarily be at the entrance. In the attic, where the maximum height is approximately 160 cm, I would like to create a room with storage furniture. I would like to try to make the central beam and the protruding lateral parts barely visible, also using wallpaper or ad hoc lights. I ask that it be bright and welcoming. Ideal for 2 people but can also accommodate 2 guests. We would like to use low cost furniture.