
18012 Bordighera, Province of Imperia, Italy
Residenziale - Zona Giorno/Notte
Descrizione
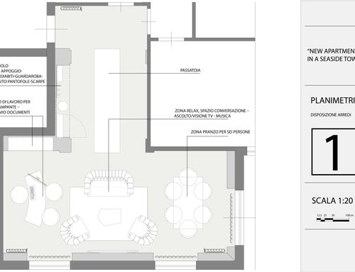
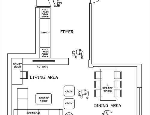
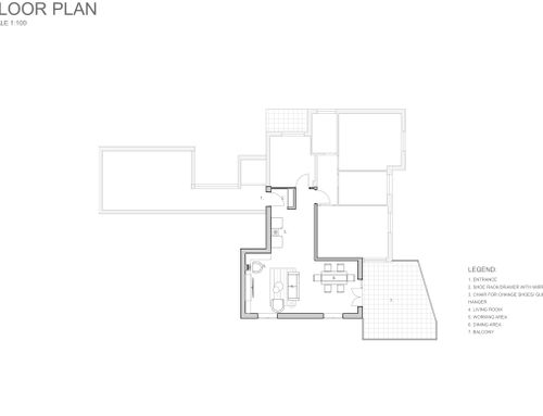
Caratterizzare con personalità l’ingresso dell’abitazione con un vestibolo che accolga con aspetti funzionali (guardaroba scarpiera, svuota-tasche ecc.) e con aspetti scenografici;
oltre all’immagine deve soddisfare le funzioni di accoglienza.
Prevedere piano appoggio- appendiabiti-guardaroba-deposito pantofole-scarpe;
sedia o poltroncina per cambiare le calzature ed eventuale seduta di attesa.
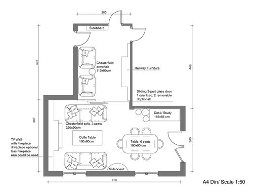
Prevedere una zona pranzo per sei persone, una zona relax, spazio conversazione – ascolto/visione tv – musica, spazio di lavoro per pc/stampante – archivio documenti
Riprodurre, adattando al caso specifico, il tipo interior design illustrato nelle foto riferite al mio gusto.
Characterize with personality the entrance of the house with a vestibule that welcomes with functional aspects (shoe rack wardrobe, empty pockets, etc.) and with scenographic aspects.
In addition to the image must meet the reception functions.
Provide support floor- coat hanger-wardrobe-slipper-shoe storage;
chair or armchair to change the footwear and any waiting seat.
Provide a dining area for six people, a relaxation area, conversation space - listening/watching TV - music, work space for pc/printer - document archive
Reproduce, adapting to the specific case, the interior design type illustrated in the photos referring to my taste.
Caracterizar la entrada al hogar con personalidad con un vestíbulo que acoge con aspectos funcionales (zapatero, perchero, etc.) y con aspectos escenográficos;
además de la imagen, debe satisfacer las funciones de recepción.
Proporcionar una superficie de apoyo - perchero - armario - almacenamiento de zapatos;
silla o sillón para cambiarse de zapatos y posible asiento de espera.
Proporcionar un comedor para seis personas, un área de relajación, un espacio para conversar - Escuchar / ver televisión - Música, espacio de trabajo para PC / impresora - Archivo de documentos
Reproducir, adaptando al caso concreto, el tipo de interiorismo ilustrado en las fotos referentes a mi gusto.