
Pertica Alta, BS, Italia
Residenziale - Altro
Nel progettare la lottizzazione sul Vostro terreno si è tenuto conto di tutte le normative e i vincoli presenti (piccoli edifici staccati, area di non edificabilità). L’area non edificabile potrà essere utilizzata per soddisfare i requisiti degli standard urbanistici.
La lottizzazione prevede 9 lotti, 7 dei quali potranno ospitare una villetta singola (ci sono due casette tipo singole, tipo A e tipo C, di metratura diversa). I due lotti più a valle invece potranno ospitare due bifamiliari, per un totale di 11 casette.
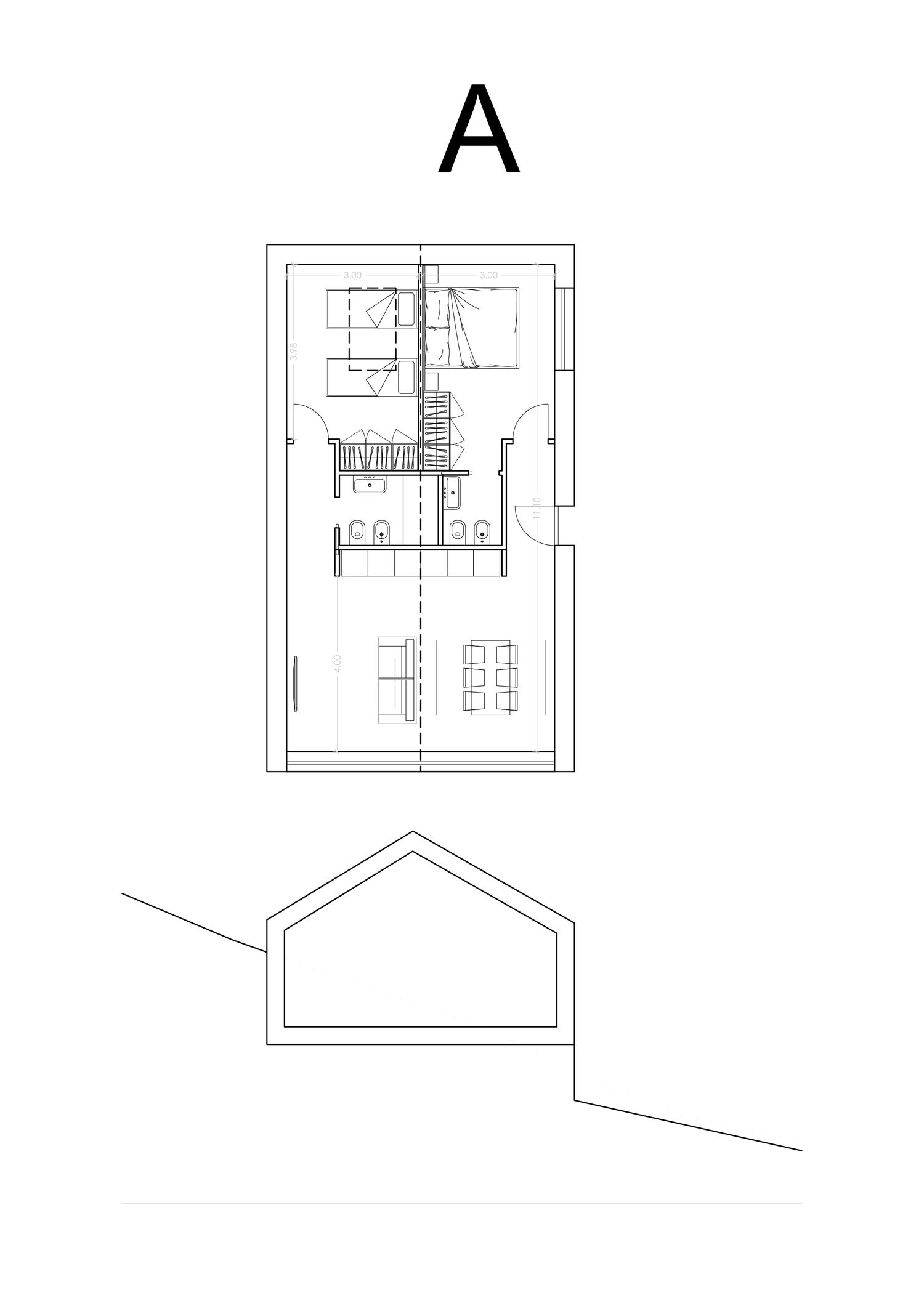
Villetta singola tipo A:
posta longitudinalmente sul pendio, tetto a capanna con vetrata in testa.
2 camere, due bagni e ampio living
Villetta bifamiliare tipo B:
posta trasversalmente al pendio, tetto a capanna con vetrata e balcone in testa
2 camere, due bagni e ampio living
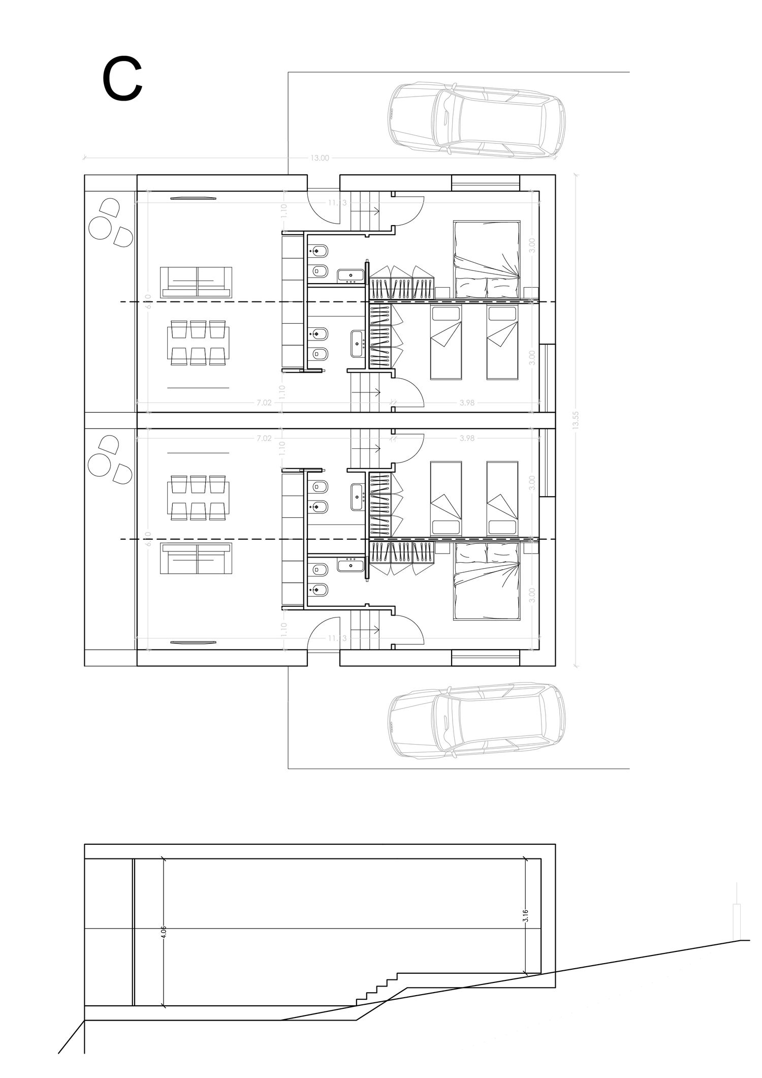
Villetta singola tipo C:
posta trasversalmente al pendio, tetto a capanna con vetrata e balcone in testa
1 camera, 1 bagno e ampio living
Nella progettazione si è cercato di minimizzare gli sbancamenti nel rispetto dell’ambiente montano prevendendo villette più piccole e poste su una struttura a palafitta nella parte più pendente dell’area.
Le villette potranno essere realizzate in legno o in muratura con basamento e strutture controterra in c.a.