
Pertica Alta, BS, Italia
Residenziale - Altro
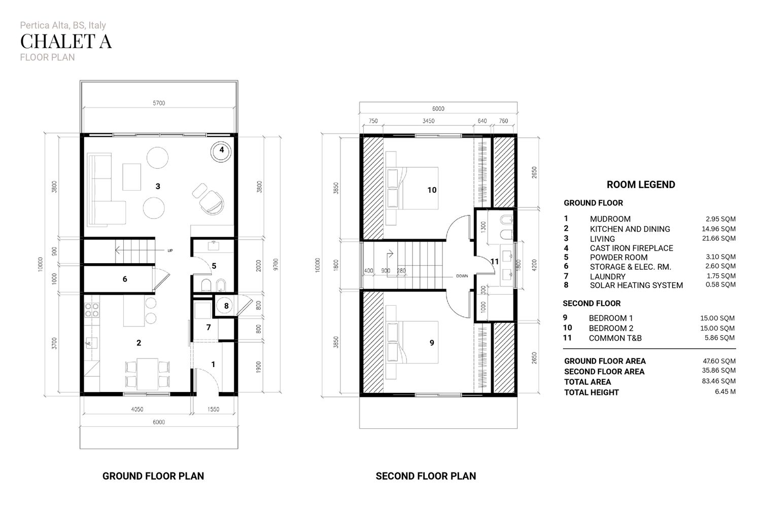
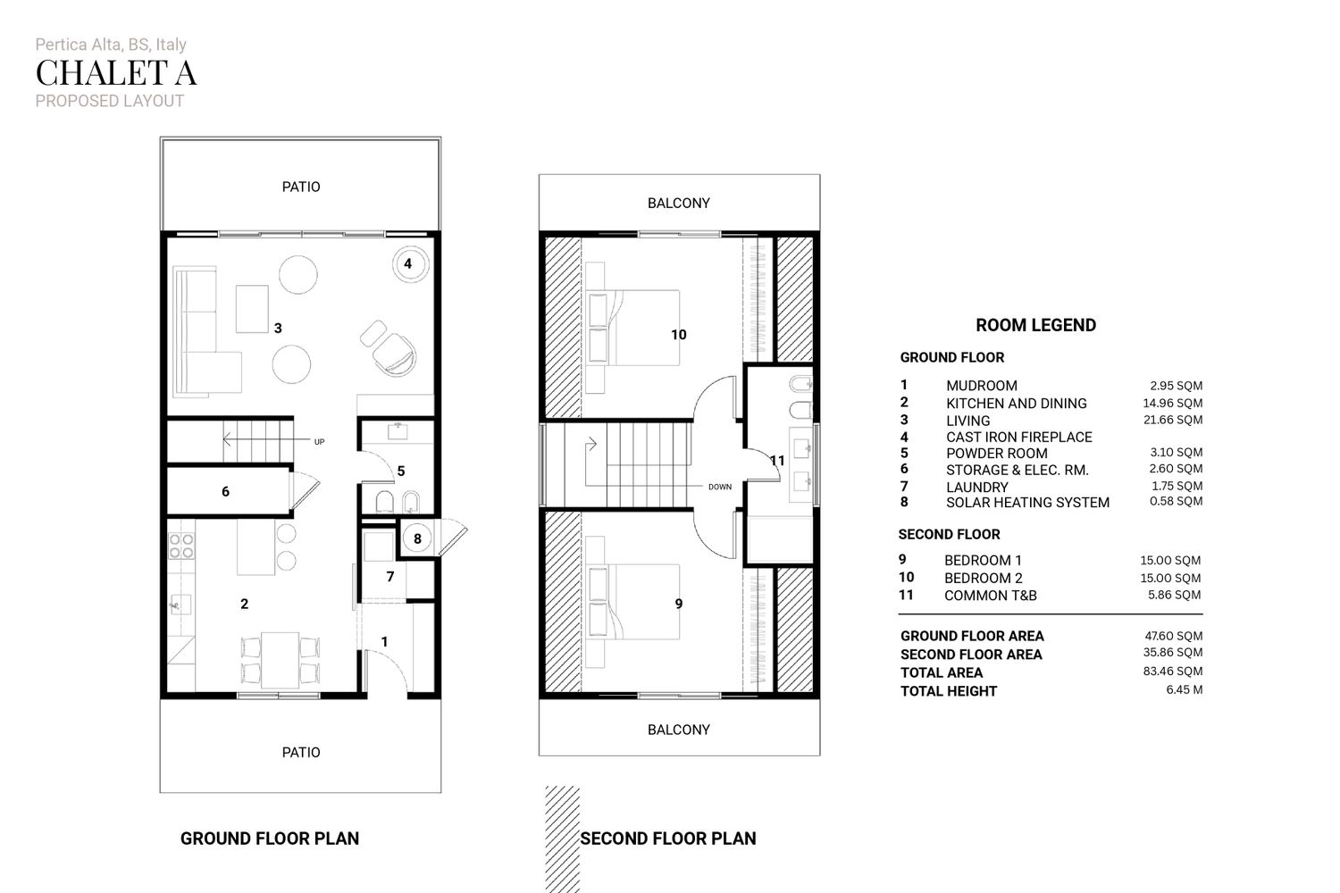
The proposed development consists of 10 chalets/tiny houses with an average floor area of 60–70 sqm each, carefully designed to balance cost efficiency, environmental sensitivity, and architectural appeal.
The concept responds to the client’s desire for compact, sustainable second homes in a mountain setting while ensuring privacy, comfort, and a strong connection to the natural landscape. he project aims to create a cluster of intimate, eco-friendly chalets that blend harmoniously with the mountain slope.
Each home offers privacy, comfort, and a sense of retreat, while the overall development forms a coherent yet varied architectural ensemble.
The result is a design that is sustainable, affordable, and architecturally attractive, positioning the chalets as desirable second homes that embrace both tradition and modernity.