
Rome, Metropolitan City of Rome, Italy
Residenziale - Appartamento
Descrizione
Amazing ninja-architects wanted!
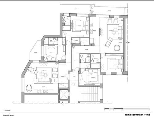
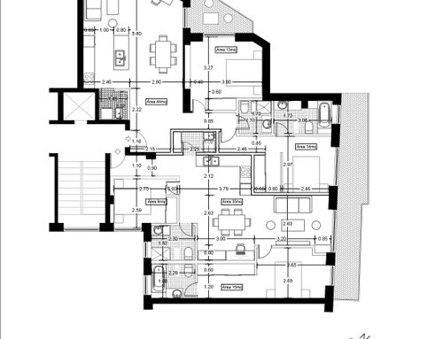
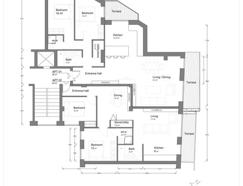
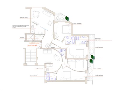
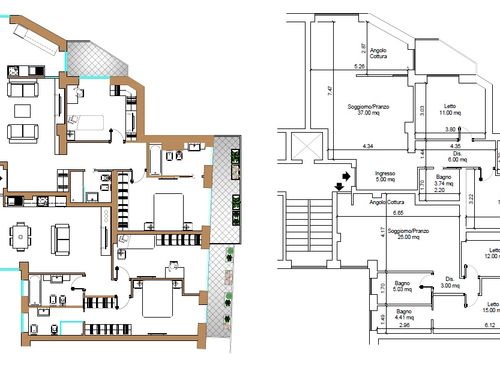
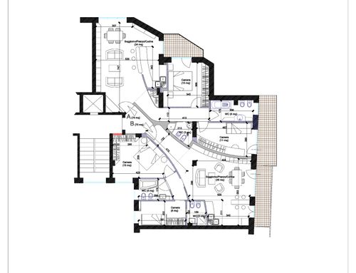
Hi everyone, me and my brother have recently bought a new house of about 180 sqm in Rome. The house already has 2 entrance doors, so we were thinking about splitting the house so that we can live near each other without sacrificing our privacy.
Therefore, the main goal of this Contest is to get as many ideas as possible regarding how to split the house in the best possible way 😊
We would also like to continue working with the winning architect to carry out the execution of the work after the Contest!
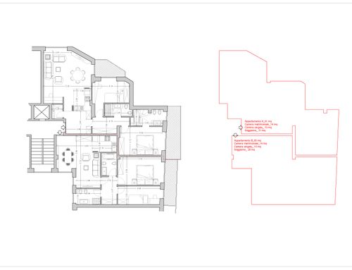
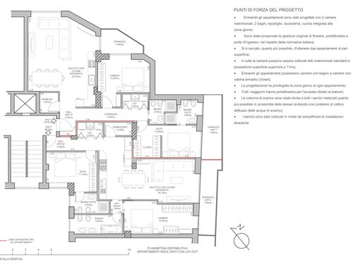
We don’t need the apartments to be exactly the same size, one could be bigger than the other. It’s just important that each apartment is big enough to be comfortable and that each one of them has its own discharge system. It’s our understanding that here in Italy it is mandatory to separate the discharge systems when splitting a house.
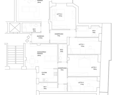
Here are the rooms that we need to have in each of the two houses:
- Living area with open kitchen (it would be lovely to have the kitchen separated by a glass wall);
- 2 bathrooms (it would be perfect to have one with shower and the other with bathtub);
- 2 bedrooms (if you find space to create a third smaller bedroom/study room in just one of the two apartments we will appreciate it).
The following are not mandatory, but if you include one or more of them in your project, we’ll appreciate it:
- Closet,
- Walk-in wardrobe,
- Laundry room,
- False ceilings for storage purposes/mezzanines.
Me and my brother enjoy staying in the living area more that in the sleeping rooms, so we’d love to have 2 double bedrooms but only if they don’t take away too much space from the living area.
The apartment is exposed on three sides. The kitchen and bathrooms now face the internal courtyard of the building.
We’d like to have one balcony in each living area.
If the photos and video that I’ve uploaded aren’t enough to understand the space, please ask and I will provide you with more files and information.
Here’s a video tour of the apartment: https://youtu.be/At_T31e6F6c
-----------
ITALIAN
Cercasi Architetti Ninja per il nostro progetto a Roma!
Ciao a tutti, io e mio fratello abbiamo acquistato da poco una nuova casa di 180 mq a Roma. Dato che sono presenti due ingressi stavamo pensando di dividerla per avere totale indipendenza l'uno dall'altro pur rimanendo vicini!
Quindi l'OBIETTIVO di questo Contest è quello di avere più idee possibili su come frazionare al meglio la nostra nuova casa :) , l'idea sarebbe anche quella di fare una selezione degli architetti/tecnici che ci seguiranno i lavori di ristrutturazione!
Abbiamo bisogno di due appartamenti non necessariamente divisi a metà, quindi possono essere uno più grande dell'altro, l'importante che si formino in entrambi spazi vivibili e che ogni appartamento abbia la propria colonna di scarico (ci ha spiegato l'agenzia che l'indipendenza degli impianti è un requisito fondamentale per splittare un appartamento).
Ci aspettiamo per ciascuna casa questi ambienti:
- Salone con Cucina a vista (se fosse divisibile con una vetrata sarebbe ottimo)
- 2 Bagni (magari uno con doccia uno con vasca)
- 2 Camere da letto ( se in uno dei due appartamenti esce anche una terza cameretta/studio sarebbe SUPER APPREZZATO)
Ambienti non obbligatori, ma apprezzabili se presenti:
- Sgabuzzino
- Cabina armadio
- Lavanderia
- Soppalchi
Sia io che mio fratello siamo due persone che vivono più la zona living rispetto che la zona notte. Quindi ci piacerebbe avere camere da letto matrimoniali, ma che non vadano a discapito della zona giorno.
L'appartamento presenta tripla esposizione con due balconi. La cucina e i due wc attuali si affacciano in una chiostrina interna del palazzo.
Ci piacerebbe avere un balcone per ogni living.
Se dalle foto che ho caricato o dal video non carpite bene i dettagli della struttura non esitate a chiedere che vi fornirò ulteriori dettagli.
Di seguito trovate il link con un video tour dell'appartamento.
https://youtu.be/At_T31e6F6c