
83029 Solofra, Province of Avellino, Italy
Residenziale - Casa
Descrizione
ENG:
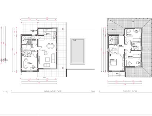
Hi all, I have a park where I would like to build a sample villa of the various ones to be built, for approximately 100 gross sq m MAX, not exceeding three levels, with adjoining commercial space and bathroom, the latter on a single level adjacent to the basement. The area is hilly and well exposed to the sun. I would like a modern and essential style with a large panoramic window overlooking the valley, with a porch and also the use of wood on the roof. living area with eat-in kitchen, living room and bathroom, sleeping area with three beds and en-suite bathroom each. Outside there is a parking area and a garden area with a small swimming pool or Jacuzzi always in front towards the valley or in any case exposed to the sun. I would like a style similar to the photo shown but as an example only. For the attic night floor but entirely practicable, I would like the recessed floor with a hallway that looks down on the day floor. Light colors for a modern style. Our area is colder so flat roofs should be avoided. You can ask for more info.
SPA:
Hola a todos, tengo un parque donde me gustaría construir una villa muestra de las varias a construir, de aproximadamente 100 m2 brutos MAX, no más de tres niveles, con local comercial y baño contiguo, este último en un solo nivel contiguo al sótano. La zona es montañosa y bien expuesta al sol. Me gustaría un estilo moderno y esencial con una gran ventana panorámica con vistas al valle, con un porche y también el uso de madera en el techo. zona de estar con cocina comedor, salón y baño, zona de noche con tres camas y baño en suite cada una. En el exterior hay una zona de aparcamiento y una zona ajardinada con una pequeña piscina o jacuzzi siempre de frente hacia el valle o en todo caso expuesta al sol. Me gustaría un estilo similar a la foto que se muestra pero solo como ejemplo. Para la planta de noche del ático pero totalmente practicable, me gustaría la planta de empotrar con un pasillo que mira hacia abajo a la planta de día. Colores claros para un estilo moderno. Nuestra área es más fría, por lo que se deben evitar los techos planos. Puedes pedir más información.
ITA:
Salve a tutti , ho un parco dove vorrei edificare una villa a campione delle varie da realizzare, per circa 100 mq. lordi MASSIMO , non superiore ai tre livelli , con annesso locale commerciale e bagno ,quest'ultimo su unico livello attiguo al piano seminterrato. La zona è collinare e ben esposta al sole. vorrei uno stile moderno ed essenziale con ampia vetrata panoramica che guarda a valle , con portico ed utilizzo anche di legno in copertura . zona giorno con cucina abitabile ,salone e bagno, zona notte tre letti con bagno annesso ciascuno. All'esterno zona parcheggio e zona giardino con piccola piscina o vasca idromassaggio sempre antistante verso valle o comunque esposta al sole . Mi piacerebbe uno stile simile alla foto indicata ma solo da esempio. Per il piano notte mansardato ma tutto praticabile mi piacerebbe il piano rientrato con ballatoio di disimpegno che guarda giù al piano giorno. Colori chiari per uno stile moderno. La nostra zona è più fredda quindi sono da evitare coperture tetto a solaio piano . Potete chiedere altre info.