
Rome, Metropolitan City of Rome, Italy
Commerciale - Ufficio
Descrizione
Below is the English, Spanish and Italian version of the description. From a preliminary analysis it seems that the cost of acoustic rooms is very expensive, therefore its use must be carefully evaluated. Thanks a lot
******************************************************************************************************************************************
The DWG plan of the property is attached.
It is an office located in the centre of Rome, in a 16th century building frescoed by the famous Italian sculptor Gian Lorenzo Bernini. It is an office of tax advisors with the need to have a representative office and who have been working in this office for many years.
There are a number of operating rooms and two meeting rooms. The renovation idea arises from the fact that the wall that adjoins the large meeting room should be eliminated for technical reasons.
Without this wall, the small meeting room would be lost. We have been proposed a solution hypothesis to create a small meeting room by eliminating the wall and using an acoustic room. For this specific problem, we have been offered a solution that is not convincing, because it does not separate the two meeting rooms: it is important to create an antechamber that divides the two rooms.
It is necessary to use movable walls or furniture for authorization reasons, as the property is subject to urban planning restrictions that do not allow masonry or plasterboard works.
We would like to take this opportunity to evaluate an overall restructuring that allows us to change our image (more modern) but at the same time maintain a high level of representation. The idea is to intervene:
1. Without masonry works;
2. Changing the colour of the walls;
3. Possibly painting the current furniture in a different colour or adapting it, or changing something and in part keeping it.
4. It could also be possible to use desks that are smaller than the current ones, which perhaps are too large compared to general and necessary standards.
5. Decorate the large walls with something colourful or with some green walls with plants.
6. Use more acoustic rooms for people with greater seniority.
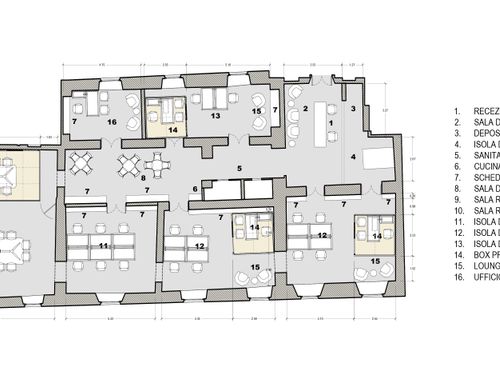
Below there is a brief description of the single areas, from the entrance to the meeting rooms, with indications of some new objectives to be achieved.
1. There is a large counter at the entrance to the studio which could be partially reduced since it is normally used for only one working position. It would be better to have two workstations; behind the current counter there is a wardrobe with some stationery items.
2. Room n. 2 is where the server is located and is also used as a storage room for stairs and other small tools;
3. Room n. 3 is a service room where there is a printer used by the whole studio, there is also a refrigerator and a wardrobe where the coats of the people in the studio and customers are hanged;
4. Room n. 4 and 5 are divided by a double wall. In room 4 there are 3 workstations, while in room n. 5 there are other 3 workstations, plus other two which are not being used at the moment. In this room it could be considered to insert 1-2 acoustic rooms and obtain another 3-4 open space workstations.
5. Room 12 for the moment is for representation and used by one person only, in this room it could be considered to insert 1-2 acoustic rooms and obtain another 1-2 additional open space workstations and put some sofas.
6. In room 11 there are 2 workstations. In this room furniture could be changed and used for one person only (for example for the one who currently uses room n. 12).
7. Room n. 10 is currently used by one person only. Here two possibilities can be considered:
a. Create two acoustic rooms, one with access from corridor n. 9 and the other from corridor n. 6, or, in case this is not possible;
b. Create an acoustic room and 2 open space workstations
10. Corridor n. 9 could include two small tables (e.g. round tables) with 4 chairs to sit on when you are on the phone or to use your PC
8. Room n.14 is the antechamber of the two meeting rooms, the big one (16) and the small one (15). The wall between the two meeting rooms will be demolished and instead of room 15 there will be:
An acoustic room that could be used as a small meeting room (but must also be separated from the big meeting room). It must be possible to access one or the other meeting room in total autonomy, for this reason there must be a separation.
******************************************************************************************************************************************
Se adjunta el plano de la planta de la propiedad en DWG.
Es una oficina ubicada en el centro de Roma, un edificio del siglo XVI con frescos de Bernini. Es una asesoría fiscal con la necesidad de contar con una oficina de representación ya que están presentes en esta sede desde hace muchos años.
Hay varios quirófanos y dos salas de reuniones. La idea de la renovación surge del hecho de que la pared que linda con la gran sala de reuniones, debería eliminarse por razones técnicas.
Sin esta pared, la pequeña sala de reuniones se perdería. Se nos ha ofrecido una hipótesis para una solución, para crear una pequeña sala de reuniones, eliminando la pared y utilizando una "sala acústica". Para este problema específico se nos ha ofrecido una solución que no es buena, porque no aísla las dos salas de reuniones:
Debe preverse una antecámara que divida las dos habitaciones.
Es necesario el uso de muros móviles o mobiliario adecuado, por motivos de autorización, ya que el inmueble está sujeto a restricciones urbanísticas que no permiten trabajos de mampostería o placas de yeso.
Queremos aprovechar esta oportunidad para evaluar una reestructuración general que nos permita cambiar nuestra imagen (más moderna) pero al mismo tiempo mantener un alto nivel de representación. La idea es intervenir:
1. sin obras de albañilería;
2. cambiar el color de las paredes;
3. posiblemente pintar los muebles actuales en un color diferente o adaptarlos, o
cambiando una parte y manteniendo otra.
4. También se podría pensar en usar escritorios más pequeños que los actuales, que tal vez son mucho más grandes en comparación con los estándares generales y necesarios.
5. Decorar las paredes grandes con algo colorido o con algunas paredes verdes con plantas.
6. Utilizar salas más acústicas para poner personas con mayor antigüedad.
A continuación se muestra una breve descripción de las áreas individuales, desde la entrada a las salas de reuniones, con indicaciones de algunos nuevos objetivos que deseamos alcanzar.
1. Hay un gran mostrador a la entrada del estudio. Se podría pensar en reducir parcialmente este mueble, donde generalmente solo se proporciona un puesto de trabajo. Sería mejor tener dos estaciones de trabajo; Detrás del mostrador de entrada actual hay un armario con algunos artículos de papelería.
2. La habitación número 2 es aquella en la que hay un servidor y una sala de almacenamiento para escaleras y otras herramientas pequeñas;
3. La habitación 3 es una sala de servicio donde hay una impresora que usa todo el estudio, hay un área de refrigerador y un armario donde se guardan los abrigos de las personas en el estudio y los clientes;
4. Las habitaciones 4 y 5 están divididas por una pared doble. En la sala 4 hay 3 estaciones de trabajo, mientras que en 5 hay otras 3 estaciones de trabajo, más dos de apoyo pero no utilizadas. En esta sala se podría considerar insertar 1-2 salas acústicas y obtener otras 3-4 estaciones de trabajo de espacio abierto.
5. La sala 12 por el momento es para representación y utilizada por una sola persona, en esta sala se podría considerar insertar 1-2 habitaciones acústicas y obtener otras 1-2 estaciones de trabajo de espacio abierto adicionales y poner algunos sofás.
6. En la habitación 11 hay 2 estaciones de trabajo. En esta sala se puede modificar el mobiliario y usarlo solo para una persona (por ejemplo, para la que actualmente usa 12).
7. Actualmente, la habitación 10 es utilizada por una sola persona. Aquí puedes hacer dos cosas:
a. Disponer de dos salas acústicas, una con acceso desde el pasillo número 9 y la otra desde el pasillo número 6, o si esto no es posible;
b. Proporcionar una sala acústica y 2 estaciones de trabajo de espacio abierto
8. El pasillo 9 podría incluir dos mesas pequeñas (por ejemplo, redondas) con 4 sillas para sentarse cuando está hablando por teléfono o para usar su PC.
9. La sala 14 es la antesala de las dos salas de reuniones, grande (16) y pequeña (15). La pared entre las dos salas de reuniones debe ser demolida y en lugar de la sala 15 debe haber:
a. Una sala acústica que permite que la sala de reuniones sea pequeña (pero debe estar separada de la sala de reuniones grande). Debo poder acceder a una u otra sala de reuniones con total autonomía, por lo que se debe proporcionar una separación
******************************************************************************************************************************************
Si allega la planimetria in DWG dell’immobile.
Si tratta di un ufficio che si trova nel centro di Roma, un palazzo del 500 affrescato a mano del Bernini. È un ufficio di advisor fiscali con la necessità di avere una sede di rappresentanza e che sono presenti in questa sede da molti anni.
Ci sono una serie di stanze operative e due sale riunioni. L’idea di ristrutturazione nasce dal fatto che la parete che confina con la sala riunioni grande, per motivi tecnici dovrebbe essere eliminata.
In assenza di questa parete si perderebbe la sala riunioni piccola. Ci è stata proposta una ipotesi di soluzione per ricavare una sala riunioni piccola, eliminando la parete ed utilizzando una “acustic room”. Per questo specifico problema ci è stata proposta una soluzione che non va bene, perché non isola le due sale riunioni: bisogna prevedere un’anticamera che divide le due stanze.
È necessario utilizzare pareti mobili o arredi per motivi autorizzativi, in quanto l’immobile è soggetto a vincoli urbanistici che non consentono opere di muratura oppure cartongesso.
Vogliamo cogliere l’occasione per valutare una ristrutturazione complessiva che ci consenta un cambio di immagine (più moderna) ma allo stesso tempo di mantenere una elevata rappresentanza. L’idea è quella di intervenire:
1. Senza opere di muratura;
2. Cambiando il colore delle pareti;
3. Eventualmente verniciando gli attuali mobili di colore diverso oppure adattandoli, oppure cambiandoli in parte ed in parte tenendoli.
4. Si potrebbe pensare anche di usare delle scrivanie che siano più piccole di quelle attuali, forse molto grandi rispetto gli standard generali e necessari.
5. Arredare le grandi pareti con qualcosa di colorato oppure con qualche parete verde con piante.
6. Utilizzare più acoustic room dove mettere le persone con seniority maggiore.
Di seguito una breve descrizione delle singole aree, dall’ingresso alle sale riunioni, con indicazioni di alcuni nuovi obiettivi che si vogliono raggiungere.
1. All’ingresso dello studio è presente un grande bancone. Si potrebbe pensare di ridurre in parte questo mobile, dove solitamente è prevista una sola posizione di lavoro. Sarebbe meglio prevedere due postazioni di lavoro; Dietro all’attuale bancone di ingresso è presente un armadio con alcuni articoli di cancelleria.
2. La stanza numero 2 è una dove è presente il server e ripostiglio per scale ed altri piccoli attrezzi;
3. La stanza 3 è una stanza di servizio dove è posizione una stampante usata da tutto lo studio, è presente zona frigorifero ed un armadio dove vendono messi i cappotti delle persone dello studio ed i clienti;
4. La stanza 4 e 5 sono divise da una doppia parete. Nella stanza 4 sono previste 3 postazioni lavoro, mentre nella 5 altre 3 postazioni, più due di appoggio ma non utilizzate. In questa stanza si potrebbe valutare di inserire 1-2 acoustic room e ricavare altre 3-4 postazioni di lavoro open space.
5. La stanza 12 per il momento è di rappresentanza ed usata da una sola persona, in questa stanza si potrebbe valutare di inserire 1-2 acoustic room e ricavare altre 1-2 postazioni di lavoro open space aggiuntive e mettere dei divanetti.
6. Nella stanza 11 sono previste 2 postazioni lavoro. In questa stanza si potrebbe di modificare il mobilio ed usarla per una sola persona (ad esempio per quella che attualmente usa la 12).
7. La stanza 10 è attualmente usata da una sola persona. Qui si potrebbero fare due cose:
a. Prevedere due acoustic room una con accesso dal corridoio numero 9 e l’altra da corridoio numero 6, oppure qualora non fosse possibile;
b. Prevedere una acoustic room e 2 postazioni di lavoro open space
8. Il corridoio 9 potrebbe prevedere due tavoli piccoli (es. tondi) con 4 sedie per sederti quando si è al telefono, oppure per utilizzare il proprio pc
9. La sala 14 è anticamera delle due sale riunioni, grande (16) e piccola (15). La parete tra le due sale riunioni dovrà essere demolita ed al posto della sala 15 dovrà essere prevista:
Una acoustic room che consenta di essere la sala riunioni piccola (ma deve essere separata dalla sala riunioni grande). Devo poter accedere ad una oppure all’altra sala riunioni in totale autonomia, quindi bisognerà prevedere una separazione