
81100 Caserta, Province of Caserta, Italy
Commerciale - Ufficio
Descrizione
ENG:
- Dimensions and Structure of the Workspaces -
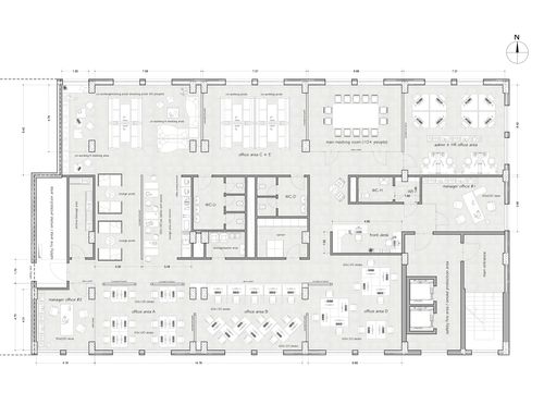
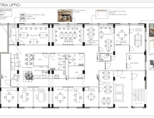
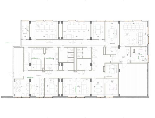
The new office will have a total floor area of approximately 540 square meters and will accommodate approximately 60 people, including open space workspaces and private offices.
The office has to be thought of as a hybrid, there will be people working remotely on some days, full remote people, people working in the office.
In room changes:
NO modifications to the false ceiling
NO modifications to the floor
NO fixtures
The winning project is the one that will find a way to transform the current space into the desired space with the least possible budget, proposing modular solutions that can be modified without any difficulty, as needed.
There are currently several teams with this number of people, for which we would like dedicated spaces:
A: 12
B: 12
C: 4
D: 10
E: 4
We also require at least:
2 small meeting rooms (up to 4 or 5 people)
1 large meeting room (up to 10 people)
Common Areas: Kitchen + lounge/relax
2 Manager's offices
Admin/finance office: 5 people
HR office: 4 people
Coworking area: 15-20 seats
- Furniture available and sizes -
6 desks - 120 X 60
10 desks - 100 X 50
1 desk - 240 X 120
1 desk 220 X 90
1 desk 220 X 80
-Noise Management -
Advice, furnishings, modifications to minimize noise
-Aesthetics and Branding -
We have no specific needs related to this aspect. among our main values there are certainly innovation and eco-sustainability, all of our companies operating in the digital/tech world.
NB. This is a rented office which will be restored to its original version once it is left. For this reason we ask for a "smart" division of spaces that allows us to carry out minimal work and in the shortest possible time.
Photos and videos are attached to the following link: https://drive.google.com/drive/folders/1KOi3fNFCvE7NiYhL4c2S2mUejUAGqI00?usp=sharing
SPA:
- Dimensiones y Estructura de los Espacios de Trabajo -
La nueva oficina tendrá una superficie total de aproximadamente 540 metros cuadrados y albergará a unas 60 personas, incluidos los espacios compartidos de trabajo y las oficinas privadas.
La oficina debe pensarse como un híbrido, habrán personas que trabajan de forma remota algunos días, personas totalmente remotas, personas que trabajan en la oficina.
-Cambios en la oficina-:
NO modificaciones en el falso techo
NO modificaciones al piso
NO accesorios de las puertas
El proyecto ganador será aquel que encuentre la manera de transformar el espacio actual en el espacio deseado con el menor presupuesto posible, proponiendo soluciones modulares que puedan modificarse sin dificultad, según las necesidades.
Actualmente hay varios equipos con este número de personas, para los que nos gustarían espacios dedicados:
A: 12
B: 12
C: 4
D: 10
E: 4
También requerimos al menos:
2 salas de reuniones pequeñas (hasta 4 o 5 personas)
1 gran sala de reuniones (hasta 10 personas)
Zonas Comunes: Cocina + salón/relax
2 oficinas para los gerentes
Oficina de administración/finanzas: 5 personas
Oficina de RRHH: 4 personas
Área de coworking: 15-20 asientos
- Muebles disponibles y medidas -
6 escritorios - 120 X 60
10 escritorios - 100 X 50
1 escritorio - 240 X 120
1 escritorio 220 X 90
1 escritorio 220 X 80
-Gestión de Ruido -
Asesoramiento, mobiliario, modificaciones para minimizar el ruido
-Estética y Branding-
No tenemos necesidades específicas relacionadas con este aspecto. Entre nuestros principales valores se encuentran ciertamente la innovación y la eco-sostenibilidad, todas nuestras empresas operan en el mundo digital/tecnológico.
NÓTESE BIEN. Esta es una oficina alquilada que será restaurada a su versión original una vez que se deje. Por ello pedimos una división de espacios “inteligente” que nos permita realizar el mínimo trabajo y en el menor tiempo posible.
Las fotos y videos se adjuntan al siguiente enlace: https://drive.google.com/drive/folders/1KOi3fNFCvE7NiYhL4c2S2mUejUAGqI00?usp=sharing
ITA:
- Dimensioni e Struttura degli Spazi di Lavoro -
Il nuovo ufficio avrà una superficie totale di circa 540 metri quadrati calpestabili ed accoglierà all’incirca 60 persone, tra spazi di lavoro open space e uffici privati.
L'ufficio deve essere pensato ibrido, ci sono persone che lavorano da remoto in alcuni giorni, persone full remote, persone che lavorano in ufficio.
Nelle modifiche al locale:
NO modifiche alla contro-soffittatura
NO modiche al pavimento
NO infissi
Il progetto vincente è quello che troverà il modo di trasformare lo spazio attuale nello spazio desiderato con meno budget possibile, proponendo soluzioni modulari, che possano essere modificate senza nessuna difficoltà, secondo necessità.
Attualmente ci sono diversi team con questo numero di persone, per i quali vorremmo spazi dedicati:
A: 12
B: 12
C: 4
D: 10
E: 4
Richiediamo inoltre almeno:
2 Sale Riunioni piccole (fino a 4 o 5 persone)
1 Sala Riunioni grande (fino a 10 persone)
Zone Comuni: Cucina + lounge/relax
2 Uffici manager
Ufficio admin/finance: 5 persone
Ufficio hr: 4 persone
Zona Coworking: 15-20 posti
- Arredamento disponibile e misure -
6 scrivanie - 120 X 60
10 scrivanie - 100 X 50
1 scrivania - 240 X 120
1 scrivania 220 X 90
1 scrivania 220 X 80
-Gestione del Rumore -
Consigli, arredo, modifiche utili a minimizzare il rumore
-Estetica e Branding -
Non abbiamo specifiche esigenze legate a questo aspetto. tra i nostri valori principali ci sono sicuramente l’innovazione e la eco-sostenibilità, tutte le nostre società operando nel mondo digital/tech.
NB. Trattasi di un ufficio in affitto che andrà ripristinato nella sua versione originale, una volta lasciato. Per questo motivo chiediamo una divisione degli spazi "smart" che ci consenta di effettuare dei lavori minimi e nel minor tempo possibile.
Si allegano foto e video al seguente link: https://drive.google.com/drive/folders/1KOi3fNFCvE7NiYhL4c2S2mUejUAGqI00?usp=sharing