
Bari, Metropolitan City of Bari, Italy
Residenziale - Loft
Descrizione
ENG:
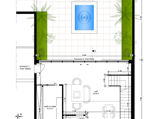
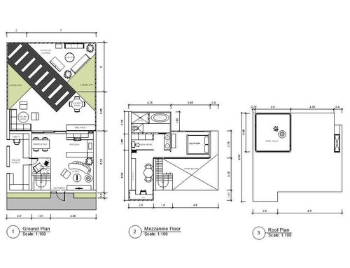
New building for the expansion of an adjoining apartment (new walk-in closet with sliding or retractable access door to the loft) and a LOFT of 6/7 meters in height with an access staircase to a small room, with its bathroom, on the upper floor. The LOFT must be equipped with a kitchenette and a large bookcase. The LOFT must in any case be accessible from outside the road and must have a full-height window overlooking the garden which is to be designed by expanding the adjacent courtyard of the property. I have a "Mediterranean" courtyard with capasoni and olive trees, I would like to continue with Mediterranean flora. A bbq in the courtyard would also be appreciated. Loft area 65 sq m.
SPA:
Obra nueva para ampliación de piso contiguo (vestidor nuevo con puerta de acceso al altillo corredera o retráctil) y LOFT de 6/7 metros de altura con escalera de acceso a una pequeña habitación, con su baño, en la parte superior piso. El LOFT debe estar equipado con una pequeña cocina y una librería grande. El LOFT en todo caso debe ser accesible desde la calle exterior y debe tener una ventana de altura completa con vistas al jardín que se diseñará ampliando el patio adyacente de la propiedad. Tengo un patio "mediterráneo" con capasoni y olivos, me gustaría seguir con la flora mediterránea. También se agradecería una barbacoa en el patio. Loft superficie 65 m2.
ITA:
Realizzazione di un nuovo fabbricato per ampliamento di un appartamento attiguo (nuova cabina armadio con porta di accesso scorrevole o a scomparsa al loft) e un LOFT di 6/7 metri di altezza con una scala di accesso ad una stanzetta ,con relativo bagno , al piano superiore . Il LOFT deve essere fornito di angolo cottura e grande libreria. Il LOFT deve essere comunque accessibile dall'esterno stradale e deve avere una vetrata a tutta altezza che affaccia sul giardino che va progettato ampliando il cortile attiguo di proprietà. Ho un cortile "mediterraneo" con capasoni e ulivi, mi piacerebbe continuare con flora mediterranea. Sarebbe gradito anche un bbq sempre in cortile. Superfice loft 65 mq.