
Milan, Metropolitan City of Milan, Italy
Residenziale - Zona Giorno/Notte
Descrizione
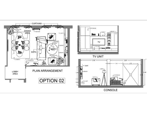
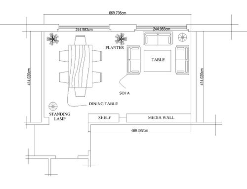
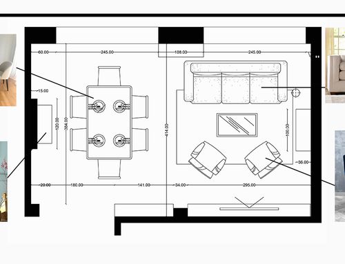
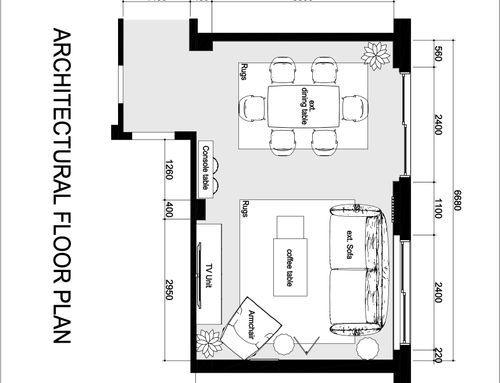
We would like to re-design our living room. We want to keep the sofa and dinner table. Given the room layout we are struggling to find a concept that fits best for the space available. Our preference is to have two dedicated areas (living and dining). The living room has a lot of light and is spacious, with two big windows on one side of the room that lead out to the terrace. We are looking for a good balance that also provides us with some storage space. We prefer a modern style but not minimalistic. Preferably we would like to receive a design including our current sofa as seen on the pictures but as well we are open to a different sofa e.g. larger, different type, color etc.
Room description:
Floor: Parquet, light brown (see picture); Walls: Currently white/light grey
2 big windows facing terrace, with one heater in between the two windows; Living room is right by the main entrance and has an open concept (no doors). We have already a table (Rimadesio Manta 100x196cm top tovere termotrattato), the chairs in white as seen on the fotos (Meridiani, Odette) and a sofa ( Natuzzi Herman - grey - 220x100) - sofa can be changed.
Some additional helpful information regarding the living room measurements:
- Wall height: 3m
- Window 1 (right): 2.45m; Window 2 (left): 2.40m
- TV antenna and electricity: The TV antenna is on the side of the room where you can see the TV, opposite of window1 (right)
Regarding the wall with the 2 windows here are the dimension: Beginning of the wall (left) 60cm, 1st window: 245cm, small pillar with heater 108cm, 14cm in between heater and window, 2nd window: 245cm, small wall 12 cm. Total: approx. 6.70m
Dimension of the window from bottom to ceiling: parapet 16cm, window itself: 230cm, after window till ceiling: 48cm
In Italian:
Vorremmo riprogettare la disposizione dei mobili ri-arredare il nostro salotto. Abbiamo già il divano, tavolo da pranzo. Vorremmo ricevere un design che possibilmente li includa ma con una migliore proposta di disposizione. A noi serve un' area ingresso, un' area dining ( tavolo e mobile contenitore) e un' area living per divani/poltrone e tv.
Il soggiorno ha molta luce ed è spazioso, con due grandi finestre scorrevoli su un lato della stanza che conducono alla terrazza.Vorremmo non sovraccaricare la stanza con troppi mobili e cerchiamo invece un buon equilibrio ma con un arredamento che ci fornisca anche spazio di archiviazione. Vorremmo che la stanza fosse moderna ma non minimalista.
Descrizione della stanza :
Pavimento: Parquet, rovere chiaro ; Pareti : attualmente bianche / grigio chiaro
il lato lungo della stanza ha 2 grandi finestre scorrevoli che affacciano sulla terrazza. La stanza si affaccia all'ingresso principale . Abbiamo già alcuni elementi (Tavolo Rimadesio Manta 100x196cm top tovere termotrattato), sedie chiare (Meridiani, Odette), divano (Natuzzi Hherman - grigio, beige - 220x100)
Altezza soffitto: 3m
Altezza e lunghezza finestre:
Finestra1 (sinistra): 2.40m (lunghezza), 2.50m (altezza);
Finestra 2 (destra): 2.43 finestra (lunghezza), 2.50m (altezza)
Posizione prese elettriche TV & antenna: sul lato della parete di 2.94m, Sul lato destra del muro, di fronte alla finestra.
Termoarredi: tra le finestre (55cm), sulla colonna che e´ larga 1.10m