
Bologna, Metropolitan City of Bologna, Italy
Residenziale - Zona Giorno/Notte
Descrizione
INGLESE:
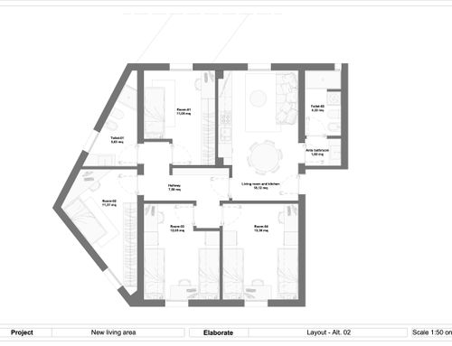
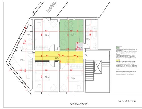
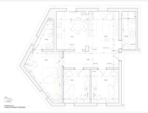
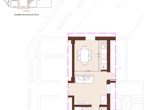
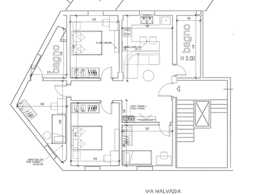
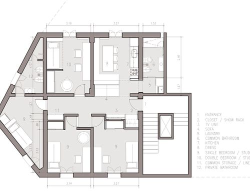
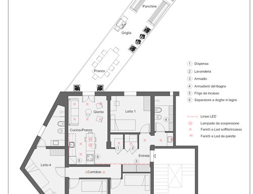
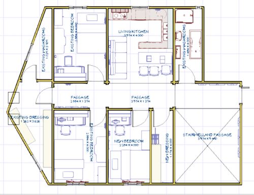
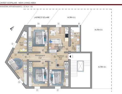
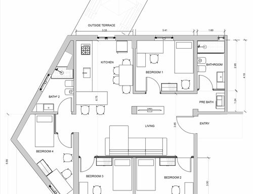
Hello everyone, I have purchased an apartment to rent out to students. I need to expand the living space and make it more welcoming in order to create a common area between the kitchen and living room where students can eat together, watch TV, and invite friends. This involves removing the kitchen wall, utilizing the current entrance, and creating an additional bedroom in what is currently the living room.
The bedroom to be created should have sufficient dimensions for a single but comfortable bedroom and study.
The environment won’t be very bright because it only receives light from the kitchen window, so we need to plan for the placement of light fixtures. The bathroom behind the kitchen serves the residents of the house, and its entrance should be somehow screened. Additionally, this space will also serve as the main entrance to the house, so we should include a small storage area for coats, umbrellas, and bags.
ITALIANO:
Salve a tutti, ho acquistato un appartamento da affittare a studenti. Devo ampliare lo spazio living cucina e renderlo più conviviale al fine di avere un area comune fra cucina / soggiorno dove gli studenti possano mangiare insieme, vedere la TV e invitare qlc amico. Questo comporta l'abbattimento del muro della cucina ,l'utilizzo dell entrata attuale e la creazione di una stanza da letto aggiuntiva in quello che è l'attuale soggiorno.
La stanza da letto da creare deve avere le dimensioni sufficienti per una camera da letto e studio, singola ma confortevole.
L'ambiente non sarà molto luminoso perché prende luce solo dalla finestra della cucina quindi bisogna prevedere la posizione di punti luce e/o corpi illuminanti.
Il bagno che c'è dietro la cucina è di servizio ai residenti della casa, il suo ingresso deve essere in qualche modo schermato.
L'ambiente sarà anche l'ingresso di casa, bisogna prevedere una piccola armadiatura per soprabiti, ombrelli e borse.
SPAGNOLO:
Hola a todos, compré un apartamento para alquilar a estudiantes. Necesito ampliar el espacio del salón-cocina y hacerlo más agradable para tener una zona común entre la cocina y el salón donde los estudiantes puedan comer juntos, ver la televisión e invitar a algunos amigos. Se trata de derribar la pared de la cocina, aprovechar la entrada actual y crear un dormitorio adicional en lo que es el salón actual.
El dormitorio a crear debe ser lo suficientemente grande como para albergar un dormitorio y un estudio individual pero cómodo.
El ambiente no será muy luminoso porque solo recibe luz desde la ventana de la cocina por lo que se debe prever la posición de los puntos de luz y/o luminarias.
El baño detrás de la cocina es para uso de los residentes de la casa, su entrada debe estar blindada de alguna forma.
El entorno también será la entrada a la casa, se deberá prever un pequeño armario para abrigos, paraguas y bolsos.