
04019 Terracina, Province of Latina, Italy
Residenziale - Zona Giorno/Notte
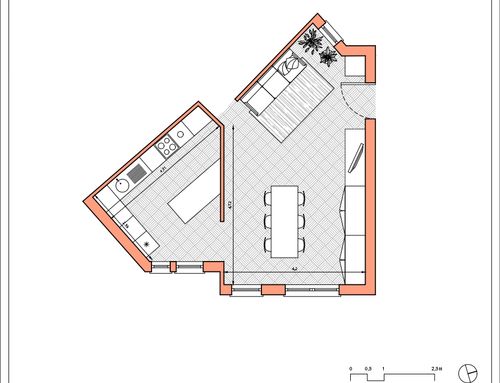
Descrizione
Salve a tutti, ho una cucina ed una sala di neanche 50mq; mi occorre una cucina con molti sportelli, non intendo realizzare un open space perche ho bisogno di molti mobili per la cucina dunque preferisco averla separata dalla sala. Mi servirebbe una riorganizzazione degli arredi all'interno della zona giorno , dispongo di una lavatrice da risistemare. Vicino al bagno c'è un piccolo sgabuzzino che confina con la parete della cucina ed ho pensato di inserirla lì. E' una rientranza che misura 0,92m sulla planimetria. Nella sala mi occorre un tavolo, una credenza, un divano e la postazione per la tv. Mi piace uno stile classico o anche moderno, come colori prediligo grigio tortora, nocciola come il bagno. Sono indecisa tra mattonato chiaro o scuro, credo più nella cucina chiara e arredi chiari che diano un'idea di spazi più grandi.
Hi everyone, I have a kitchen and a room of not even 50sqm; I need a kitchen with many doors, I do not intend to create an open space because I need a lot of furniture for the kitchen so I prefer to have it separated from the living room. I would need a reorganization of the furnishings in the living area, I have a washing machine to rearrange. Next to the bathroom there is a small closet that borders the kitchen wall and I thought I'd put it there. It is a recess measuring 0.92m on the floor plan. In the living room I need a table, a sideboard, a sofa and a TV station. I like a classic or even modern style, as colors I prefer dove gray, hazel like the bathroom. I am undecided between light or dark brick, I believe more in the light kitchen and light furnishings that give an idea of larger spaces.
Hola a todos, tengo una cocina y un salón de ni siquiera 50m2; Necesito una cocina con muchas puertas, no pretendo crear un espacio abierto porque necesito muchos muebles para la cocina por eso prefiero tenerla separada del salón. Necesitaría reorganizar los muebles en la sala de estar, tengo una lavadora para recolocar.Al lado del baño hay un pequeño armario que bordea la pared de la cocina y pensé en ponerla allí. Se trata de un hueco de 0,92m en el plano. En el salón necesito una mesa, un aparador, un sofá y un mueble para la televisión. Me gusta un estilo clásico o incluso moderno, como colores prefiero el gris paloma, avellana como el baño. Estoy indecisa entre ladrillo claro u oscuro, creo más en la cocina clara y muebles claros que dan idea de espacios más amplios.