35043 Padua, Padua, Italy
Residenziale - medium-villa
Descrizione
Italiano:
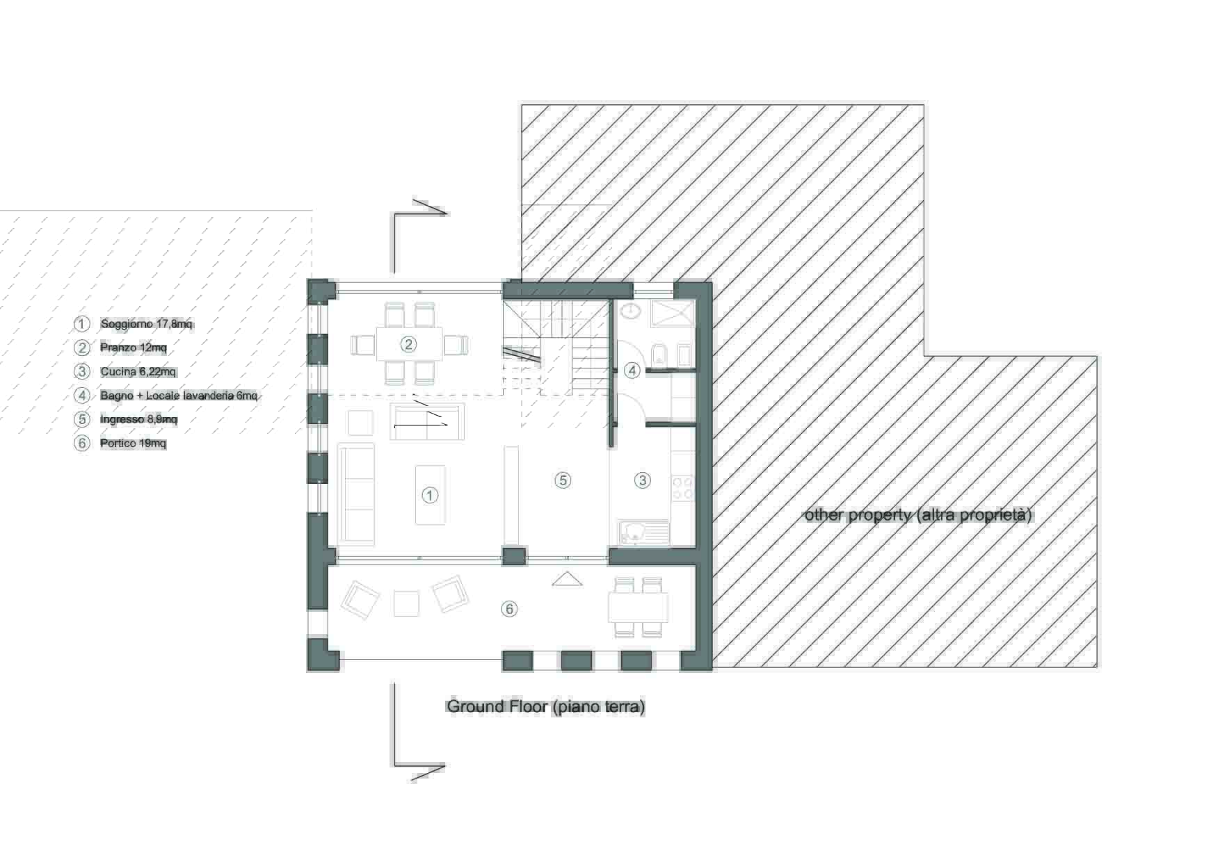
Le planimetrie riportate si riferiscono alla situazione attuale del rudere il quale sarà completamente demolito e verrà costruite una nuova casa nella stessa posizione e con le stesse dimensioni esterne.
Il nord è nel lato nord della planimetria.
L'altezza del piano terra e del primo piano è di 2,7 metri. L'altezza del secondo piano è 2,1 m al centro (al centro dello spazio che va da est a ovest) e scende fino a 0,6m nel lato nord e nel lato sud.
Siamo liberi di decidere dove posizionare porte e finestre.
Come si può vedere sul lato est vi è un'altra proprietà, quindi non possiamo avere le finestre in quel lato. Inoltre c'è lo stesso problema anche in una parte del lato nord del piano terra e del primo piano (nel primo piano potrebbe essere possibile avere un finestra ad un'altezza di 2 m).
Vorremmo avere alcune idee su come posizionare le diverse sale, in particolare su dove collocare le scale e come possa essere utilizzato il secondo piano.
Vorremmo avere un portico sul lato sud (magari circa un 5m per 5m, con l'ingresso principale al soggiorno), una cucina, un soggiorno (o anche un open space con cucina e soggiorno), almeno 2 bagni (uno nel terreno piano), una lavanderia, 1 camera grande, 2 camere da letto.
Grazie!
Risorse