
San Nicola La Strada, CE, Italia
Residenziale - Palazzo
Gentile Sig./Sig.ra,
La ringrazio per questa opportunità; è stato un piacere lavorare al suo progetto.
Spero che il risultato sia soddisfacente e risponda pienamente alle sue esigenze e aspettative.
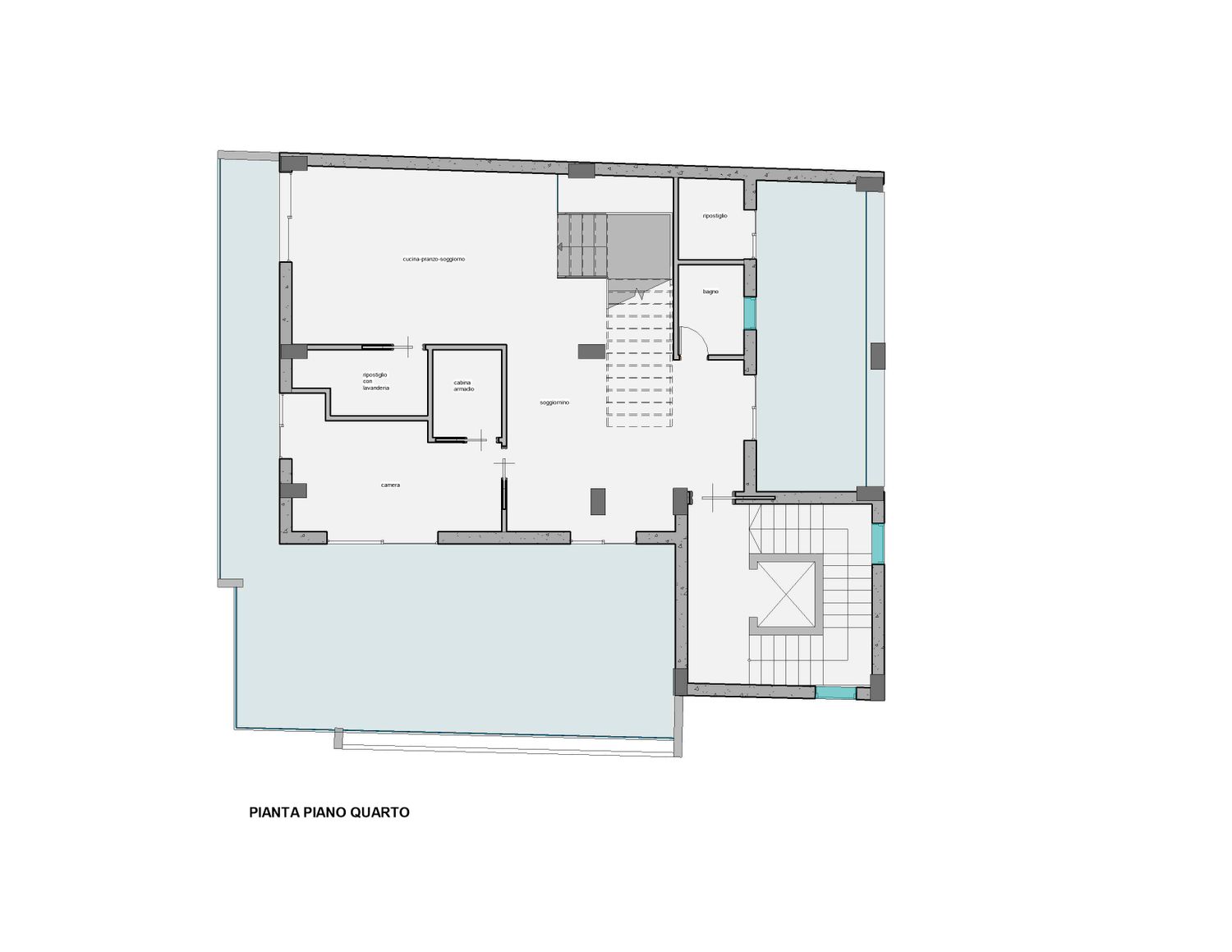
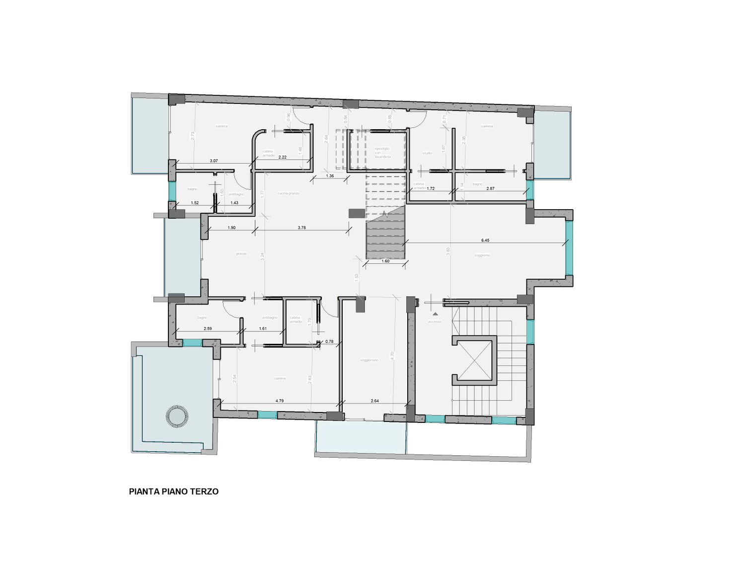
Il progetto di ridistribuzione degli spazi interni è stato sviluppato rispettando la posizione originale dei bagni esistenti nei disegni precedenti, con l’obiettivo di conservare le facciate dell’edificio senza apportare modifiche strutturali visibili. Questa scelta ha permesso di mantenere la coerenza architettonica dell’insieme e di preservare l’immagine urbana originaria.
È stata data priorità all’ingresso della luce naturale in tutti gli ambienti, ottimizzando l’orientamento e la disposizione degli spazi per favorire un’illuminazione efficiente durante tutto l’arco della giornata. Allo stesso modo, sono state valorizzate le vedute verso l’esterno, sfruttando la presenza dei balconi esistenti, che arricchiscono la qualità spaziale e creano una connessione visiva diretta con l’ambiente circostante.
Parallelamente, si è posta particolare attenzione al comfort dei futuri abitanti, dotando ogni camera da letto di cabine armadio con spazi di contenimento privati, pensati per garantire funzionalità e ordine nella vita quotidiana.
In risposta alle richieste specifiche del cliente, sono stati inoltre inseriti spazi dedicati alla lavanderia e un ripostiglio, offrendo così una soluzione abitativa completa, pratica e adatta alle esigenze contemporanee.
Sono stati inoltre progettati piccoli soggiorni nelle zone di transizione tra l’ambito privato e quello condiviso, con l’obiettivo di creare spazi intermedi dedicati alla socialità, al relax e alla privacy.
I percorsi interni sono stati accompagnati da elementi di vegetazione integrata, per rendere l’esperienza dello spazio più naturale, accogliente e confortevole.
Per quanto riguarda la connessione verticale del duplex, è stata progettata una scala con funzione di asse visivo, che mette in comunicazione i diversi livelli e diventa un elemento centrale all’interno delle aree sociali.
Infine, gli spazi principali — cucina, sala da pranzo e soggiorno — sono stati concepiti come ambienti aperti e connessi, per favorire la flessibilità d’uso e una relazione fluida tra le diverse attività sociali della casa.
Il risultato è un’abitazione che unisce funzionalità e comfort con eleganza, valorizzando al massimo la luce naturale, la privacy, la vivacità dei percorsi e l’abitabilità complessiva degli spazi.
Spero di aver soddisfatto tutti i requisiti e le idee necessarie affinché possa prendere una decisione consapevole e proseguire con lo sviluppo del suo progetto.