๐Ÿ”ฅ CYBER MONDAY 24H: -60% su tutti i prezzi del sito! Solo fino a mezzanotte. Usa il codice CYBERMONDAY25 ๐Ÿ‘‰๐Ÿผ
img

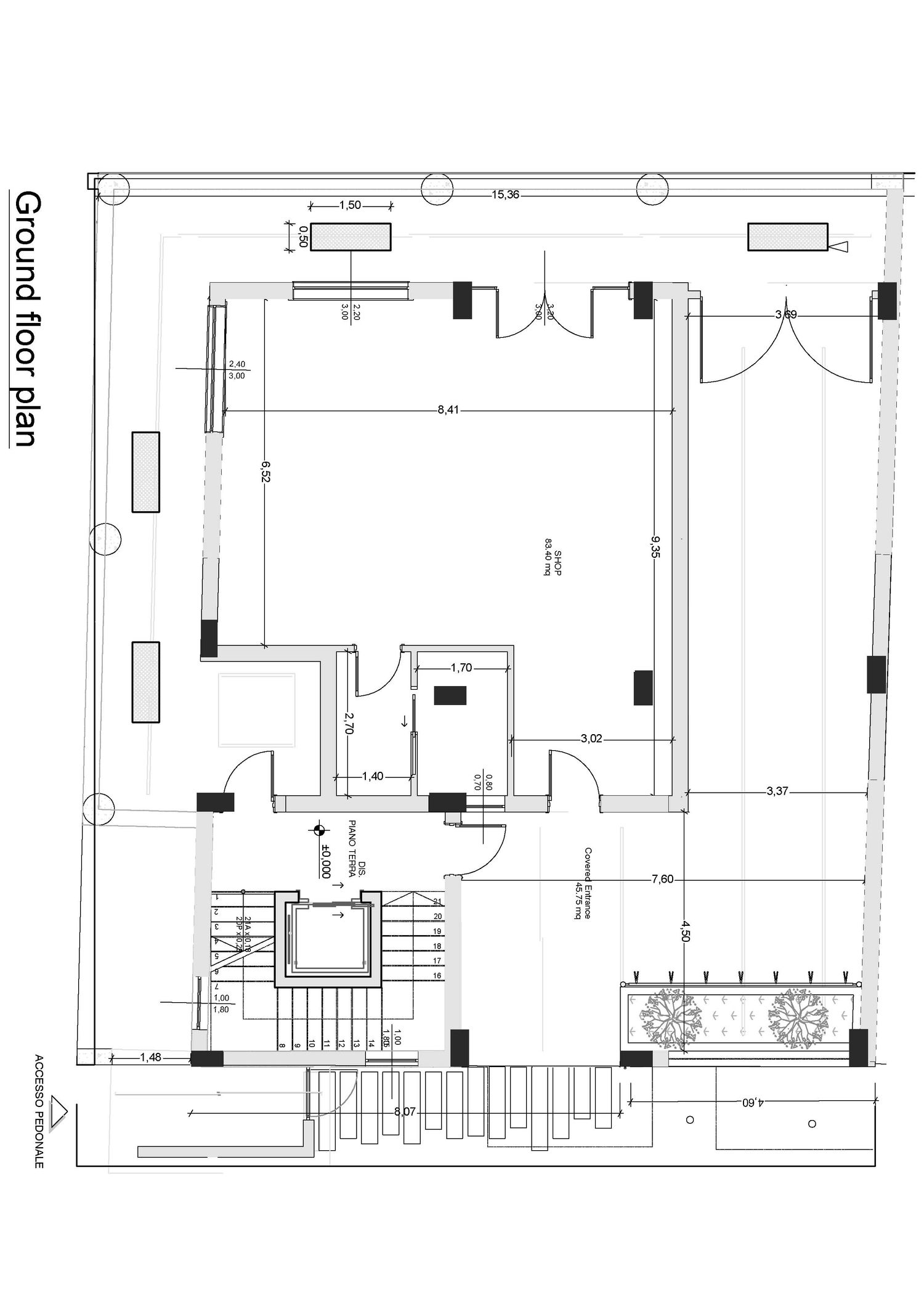
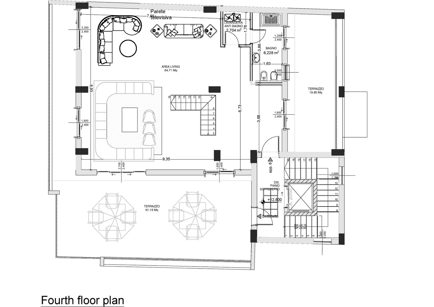
New Building layout

San Nicola La Strada, CE, Italia

Residenziale - Palazzo

Atefeh Yarimoghaddam

  • interior-designer
  • Nykil, Sweden
Descrizione Progetto

Il progetto รจ stato ideato con l'obiettivo di ottimizzare gli spazi e di non modificare l'aspetto degli arredi, con modifiche minime alle pareti.

Leggi di Piรน