
Szczecin, Poland
Residenziale - Appartamento
Descrizione
ITA:
Ciao, mi chiamo Karolis e questo è il primo appartamento che ho acquistato in occasione del progetto Sky Garden nella città di Szczecin (Polonia). Attualmente il vecchio edificio viene utilizzato dall'emittente televisiva locale ma dopo 3 anni dovrebbe essere convertito in condominio. A questo punto è possibile cambiare la planimetria, ma i progetti devono essere preparati il prima possibile, quindi non rimane molto tempo.
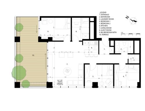
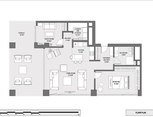
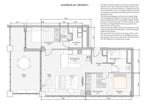
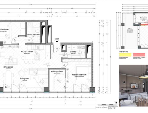
Il mio appartamento si trova al 17° piano in angolo Nord-Ovest/Sud-Ovest (86,1 mq+34mq di terrazza). Disporrà di grandi vetrate e una terrazza piuttosto spaziosa, ma il soffitto è piuttosto basso (2,7m). Dal lato nord-ovest dell'appartamento - dove si trova la terrazza, si gode di una bella vista sul parco. Dal lato sud-ovest dell'appartamento, che dispone di una parete di vetro e di tutte le stanze lungo di essa, si gode di una vista sulla città. A questo punto quello che sto cercando sono le idee su come dividere lo spazio e la disposizione interna. Vorrei una zona giorno spaziosa (più grande rispetto alla planimetria attuale) con cucina a vista e isoletta con 3 sedie. Non ho bisogno di un tavolo da pranzo, l'isola sarà più che sufficiente. Il punto del lavello in cucina non può essere spostato.
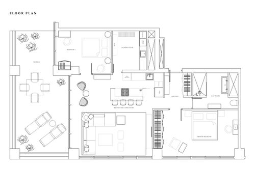
Allego la planimetria suggerita dal progettista ma credo che probabilmente vorrei cambiare la posizione della camera da letto principale (la scrivania non è necessaria in questa stanza) nell'angolo in basso a destra dell'appartamento, dato che il sole sorgerà lì, specialmente durante il periodo invernale. Vorrei avere anche un'altra piccola stanza per gli ospiti.
La posizione dei bagni NON può essere cambiata e lo spazio bianco dietro di loro, che si può vedere sulla pianta non può essere eliminato. Adesso sono presenti due bagni e vorrei avere un solo bagno principale che sarà più spazioso e con doccia/lavandino/WC (non serve la vasca da bagno) e un altro per la lavatrice e con un po' di spazio per asciugare i vestiti. Il bagno principale dovrebbe essere facilmente accessibile da tutte le stanze, anche quando gli ospiti si fermano per la notte, così non dovranno attraversare la mia camera da letto.
Vorrei avere una zona guardaroba spaziosa. Sia una cabina armadio separata o un grande armadio a muro possono andare bene.
Limitazioni: tutto può essere spostato o cambiato (anche le pareti) tranne lo spazio bianco dietro i bagni, la posizione della fornitura dell'acqua, ovvero il lavello della cucina, e la posizione di entrambi i bagni. Se le pareti vengono spostate lungo il lato in vetro dell'appartamento, la parete non può essere al centro della finestra, ma deve essere posizionata nel punto in cui inizia un'altra finestra.
Secondo lo stile: Non mi piace avere un sacco di roba ovunque, il design dovrebbe essere molto pulito, moderno, minimalista ma allo stesso tempo leggero, caldo, artistico e naturale. Grazie in anticipo!
ENG:
Tekstas apacioje. Atsiprasau, kad ne worde - siunciu is mobilaus.
Hi! My name is Karolis and this is my first apartment that I have bought at Sky Garden project in city of Szczecin (Poland). Currently the old building is used by local TV station but after 3 years it should be transformed in to apartment building. At this point is it possible to change floor plan, but plans should be prepared as soon as possible, therefore there is not much time left.
My apartment is located on the 17th floor in NorthWest/SouthWest corner (86.1 sqm+34sqm terrace). It will have big glass windows and quite spacious terrace, but the ceiling is rather low (2.7m). NorthWest side of the apartment - where terrace is located, has a nice view to the park. SouthWest side of the apartment which has glass wall and all rooms along it, will have a city view. At this stage what I am looking for is ideas on how to divide the space and the internal arrangement. I’d like a spacious living area (bigger than in current floorplan) with an open kitchen and small isle with 3 chairs. I don’t need dining table at all, isle will be more than enough. Place of the sink in the kitchen CAN NOT be moved.
I will attach floorplan suggested by developer but I would probably want to change location of master bedroom (working desk is not necessary in this room) to down right corner of the apartment since the sun will occur there first, especially during winter time. I would like to have also another small room for guests.
The bathrooms location CAN NOT be changed and white space behind them, which is seen on the floorplan cannot be eliminated. Now there are two bathrooms and I would like to have just one main bathroom which will be more spacious and with shower/sink/toilet (no bath needed) and another for washing machine and with some space for drying clothes. Main bathroom should be easily accessible from all rooms, even when some guests will stay for the night, they will not have to cross my bedroom.
I want to have a spacious wardrobe area. Both a separate walk in wardrobe or a large built-in wardrobe can work.
Limitations: everything can be relocated or changed (walls as well) except white closed space behind bathrooms, water supply location, which means kitchen sink, and location of both bathrooms. If walls will be moved along glass side of the apartment, wall cannot be in the middle of the window, it should be placed at the point where another window begins.
According to style: I don’t like to have a lot of stuff everywhere, the design should be very clean, modern, minimalistic but at the same time light, warm, artsy and natural. Thank you in advance!