
Florence, Metropolitan City of Florence, Italy
Residenziale - Appartamento
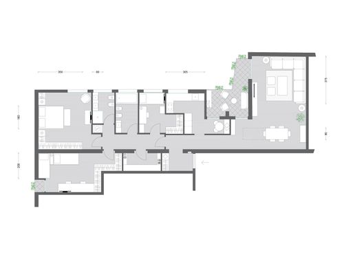
Descrizione
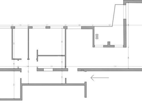
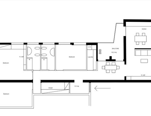
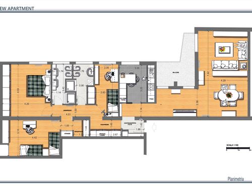
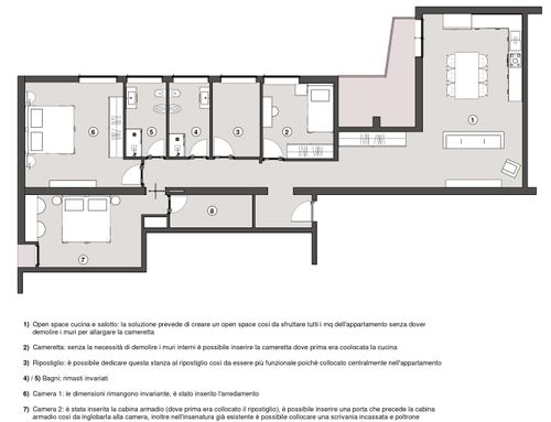
La nostra casa è comoda perché ha tre stanze da letto, due bagni e un bel ripostiglio. Vogliamo ristrutturarla perché la terza stanza da letto è troppo piccola (solo 6,7 mq) e vorremmo ridistribuire gli spazi per aumentarne le dimensioni. Inoltre dobbiamo rinnovare l'arredamento di cucina, bagni e zona notte. Vorremmo mantenere comunque due bagni e una zona ripostiglio. Preferiremmo soluzioni che mantengano inalterata la zona giorno ma valutiamo anche soluzioni che prevedano un ambiente unico sala/cucina. Per la zona giorno ci piace lo stile moderno e ravvivato con qualche tocco di colore, ma essendo un primo piano i colori devono essere luminosi. La cucina invece la preferiamo con tonalità chiare. La zona notte con colori più morbidi.
Our home is comfortable because it has three bedrooms, two bathrooms and a nice closet. We want to renovate it because the third bedroom is too small (only 6.7 sq m) and we would like to redistribute the space to increase its size. We also need to renovate the kitchen, bathroom and bedroom furniture. However, we would like to keep two bathrooms and a storage area. We would prefer solutions that keep the living area unchanged but we also evaluate solutions that provide a single room / kitchen environment. For the living area we like the modern style and enlivened with a few touches of color, but being a first floor the colors must be bright. The kitchen, on the other hand, we prefer it with light shades. The sleeping area with softer colors.
Nuestra casa es cómoda porque tiene tres dormitorios, dos baños y un lindo closet. Queremos reformarlo porque el tercer dormitorio es demasiado pequeño (solo 6,7 m2) y nos gustaría redistribuir el espacio para aumentar su tamaño. También necesitamos renovar los muebles de cocina, baño y dormitorio. Sin embargo, nos gustaría mantener dos baños y un área de almacenamiento. Preferiríamos soluciones que mantengan la sala de estar sin cambios, pero también evaluamos soluciones que proporcionen un ambiente de habitación individual/cocina. Para la zona de estar nos gusta el estilo moderno y amenizado con unos toques de color, pero al ser una primera planta los colores deben ser llamativos. La cocina, en cambio, la preferimos con tonos claros. La zona de noche con colores más suaves.