
06500 Menton, France
Residenziale - Appartamento
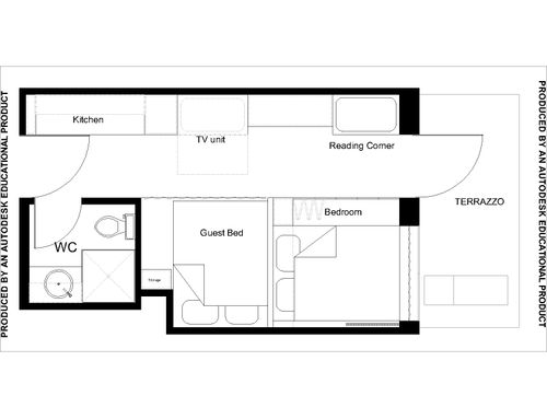
Descrizione
Quando sono nel mio rifugio mi sembra di essere in mezzo al mare, su una barca. Vedo mare e cielo anche distesa sul letto. Non chiudo mail le tapparelle ne le tende di notte cosi vedo sembre l'alba il mattino. Il rumore del mare mi tiene compagnia. Mi piacerebbe che lo studio ricordasse in modo sobrio l'interno di una barca e in nessun modo fosse intaccato questo senso di essere in mezzo al mare, nel cielo, nella luce. Cielo e mare sono parte integrante di questo nido. Dal punto di vista funzionale mi piacerebbe anche che si individuasse un modo più comodo per dormire rispetto a quello attuale e che si aumentassero i posti letto (in questo momento si riesce a dormire solo in due persone). Il bagno attuale si può prevedere di sostituirlo completamente.
ENG
When I'm in my refuge it seems to me to be in the middle of the sea, on a boat. I see sea and sky even lying on the bed. I don't close the blinds or the curtains at night so I always see the dawn in the morning. The sound of the sea keeps me company. I would like the studio to remember in a sober way the interior of a boat and in no way be affected this sense of being in the middle of the sea, in the sky, in the light. Sky and sea are an integral part of this nest. From a functional point of view, I would also like to identify a more comfortable way to sleep than the current one and to increase the number of beds (at this time only two people can sleep). The current bathroom can be expected to be completely replaced.
SPA
Cuando estoy en mi refugio me parece estar en medio del mar, en un barco. Veo el mar y el cielo incluso acostado en la cama. No cierro las persianas ni las cortinas por la noche, así que siempre veo el amanecer por la mañana. El sonido del mar me hace compañía. Me gustaría que el estudio recordara el interior de un barco de una manera sobria y de ninguna manera me afectara esa sensación de estar en medio del mar, en el cielo, en la luz. El cielo y el mar son parte integral de este nido. Desde un punto de vista funcional, también me gustaría encontrar una forma de dormir más cómoda que la actual y aumentar el número de camas (en este momento solo pueden dormir dos personas). Se puede esperar que el baño actual sea completamente reemplazado.