
03040 Ausonia, Lazio, Province of Frosinone, Italy
Residenziale - Casa
Descrizione
ENG VERS:
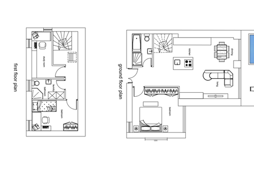
Hi, I have a cottage in the countryside of about 100sq to be completely restored. I wish to have advice on how to redistribute interiors and exteriors. The property is spread over three levels: a ground floor, first floor and an attic. The request is to have a very functional house with a large equipped kitchen, at least 2 bathrooms, 1 small study and 3 bedrooms if possible. On the ground floor there is a living room, 1 sleeping area and the attic is sleeping area and study and / or walk-in closet. If possible, I would also like to increase the square footage as there is a lot of land available on the side where I would also like to have a swimming pool.
In this case, create an environment where you can welcome friends.
They are available inside and outside the house shortly.
https://www.youtube.com/watch?v=Oe00tnZdY74
https://www.youtube.com/watch?v=JW69HB5xboM
https://www.youtube.com/watch?v=rmylBTItYBM
ITA VERS:
Buongiorno, ho una villetta in campagna di circa 100 mq da ristrutturare interamente. Desidero avere dei consigli su come ridistribuire gli interni e gli esterni. L'immobile si sviluppa su tre livelli : un piano terra, primo piano e un sottotetto. La richiesta è di avere una casa molto funzionale con un'ampia cucina attrezzata , almeno 2 bagni, 1 piccolo studio e 3 camere se possibile. Nel piano terra un living , 1 piano zona notte e il sottotetto zona notte e studio e/o cabina armadio. Se fosse possibile vorrei aumentare anche la metratura dato che sul lato c'è molto terreno disponibile dove mi piacerebbe avere anche una piscina. In tal caso creare un ambiente dove poter accogliere gli amici.
Sono disponibili dei video dell'interno e dell'esterno della casa.
https://www.youtube.com/watch?v=Oe00tnZdY74
https://www.youtube.com/watch?v=JW69HB5xboM
https://www.youtube.com/watch?v=rmylBTItYBM
SPA VERS:
Hola, tengo una casa de campo de unos 100 metros cuadrados para ser completamente restaurada. Deseo recibir consejos sobre cómo redistribuir interiores y exteriores. La propiedad se distribuye en tres niveles: planta baja, primer piso y ático. La solicitud es tener una casa muy funcional con una gran cocina equipada, al menos 2 baños, 1 estudio pequeño y 3 habitaciones si es posible. En la planta baja hay una sala de estar, 1 área para dormir y en el ático una zona con dormitorio y estudio y/o vestidor. Si fuera posible, también me gustaría aumentar los pies cuadrados ya que hay mucho terreno disponible en el lateral donde también me gustaría tener una piscina. En este caso, cree un entorno donde pueda recibir amigos.
están disponibles dentro y fuera de la casa.
https://www.youtube.com/watch?v=Oe00tnZdY74
https://www.youtube.com/watch?v=JW69HB5xboM
https://www.youtube.com/watch?v=rmylBTItYBM