
Rome, Italy
Residenziale - small-villa
Descrizione
Obbiettivo principale: ridistribuzione interna degli spazi, design interno, facciata esterna, design giardino.
un indicazione per gli architetti: ci piacerebbe ricevere i renders e sezioni di quelle zone della casa a cui teniamo particolarmente e che abbiamo raccontato in modo più dettagliato nella descrizione del nostro contest, ( cioè l'ingresso dal giardino, il piano terra , la cucina open space al primo piano con terrazzo , e la camera da letto con bagno padronale al primo piano), (vedi anche la piantina "work area" per sapere quali sono parti della casa e del giardino su cui lavorare), perchè non abbiamo la fantasia di immaginarceli in 3d da una semplice planimetria. Vi ringraziamo anticipatamente e buon lavoro!
Ci piacerebbe dare importanza al vialetto di accesso della villa, con fiori e piante disposte in modo lineare.
Eliminare i vasi di plastica color mattone x una soluzione più ordinata.
La pavimentazione esterna del giardino dovrà armonizzarsi con il rivestimento esterno della casa in finta pietra che verrà scelto.
Molto importante non solo per il vialetto ma per tutto il giardino è lo studio della luce a cui teniamo particolarmente.
Alla sinistra dell'entrata principale (dando le spalle al cancello di entrata) esiste, un garage coperto, un orto con un piccolo spazio destinato a 7-8 galline. Anche se l'intenzione è di mantenere questo spazio, non vogliamo in nessun modo che entrando la prima cosa che si veda sia l'orto con le galline!! perciò pensare ad una soluzione per nasconderlo.
A destra c'è il giardino con un pozzo da cui si accede per mezzo di archi di rose che vogliamo mantenere, ma ci piacerebbe che il risultato finale fosse più pulito e lineare, ci piace molto lo stile moderno e lo stile zen.
A sinistra della villa vorremmo pavimentare, ma non tutto, ricavare dei posti auto esterni, uno spazio destinato alla catasta in legna e un piccolo accenno di verde.
A destra della villa bisognerà creare l'entrata di casa, pensare ad un modo per far capire che da qui si accede ad un'altra casa.
Di tutto il giardino questo spazio è quello a cui teniamo di più, tanto quanto la casa stessa, sarà l'entrata di casa e deve essere in armonia con l'interno.
In questo spazio esterno vorremmo avere:
- Recinzione con cancelletto di accesso
- Vialetto di accesso alla casa, che di notte dovrà essere scandito da una illuminazione a pavimento
- Un sistema per avere più privacy dai vicini che potrà essere costituita da strutture a confine o schermature verdi con piante
- Pavimentazione (non legno, ci piace, ma richiede troppa manutenzione)
- Uno spazio destinato ad un salottino esterno , protetto da una copertura chiara in modo da far passare la luce e proteggere dal sole e pioggia.
- Entrata zen moderna, movimentare lo spazio con cambi di livello (o altre soluzioni) per delimitare le varie zone
- Piccola catasta di legna
- Fontana funzionale e ornamentale x uso quotidiano
- Lasciare spazio verde dove si trova il serbatoio interrato del gpl
- Valutare la possibilità di tenere o levare i due alberi.
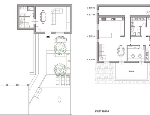
Piano terra è di circa 40mq
Contiamo che questa parte del progetto venga curata particolarmente.
Ci piace lo stile moderno ed elegante ma allo stesso tempo confortevole e accogliente, dato dal contrasto tra il gusto minimale e pulito dello stile moderno che utilizza anche dei materiali “freddi” quali il vetro e l'acciaio, accanto a materiali caldi come la pietra e il legno, il tutto armonizzato dai toni beige e crema, in cui non guasta qualche nota di colore che possa personalizzare lo spazio o dato da “tocchi di design” nella scelta di elementi di arredo quali lampade, tappeti, una parete diversa (magari in pietra a riprendere l'esterno), o un quadro.
Al piano terrà sarà previsto un open space composto da:
- Sala da pranzo con tavolo allungabile per accogliere gli ospiti,
- Piccola cantinetta dove riporre il vino,
- Divano angolare ((che già abbiamo foto divano grigio viola 3,00m X 1,10m con penisola di 2,20m))
- Tv,
- Camino (anche il camino ci piace moderno),
- Piccolo bagno di servizio (wc, lavandino, doccia),
- Mobile contenitore per dvd, cd, e giochi in scatola (ne abbiamo molti).
Creare un ingresso organizzato, un punto in cui lasciare borse, laptop, cappotto, chiavi.
Ci piace molto il parquet ma abbiamo due cani e la scelta dovrà necessariamente cadere su altri materiali; al piano terra vorrei dei consigli anche sulla scelta del colore del pavimento in quanto dal giardino si porta sempre molta terra e vorrei scegliere una soluzione più funzionale possibile su una pavimentazione che possa tenere bene lo sporco, per non stare a impazzire nel pulire in continuazione il pavimento.
Ci piacerebbe movimentare il soffitto; in questo progetto rientrerebbe anche la nostra idea di avere un illuminazione ad incasso indiretta nel soffitto. Infatti il piano terra risulta buio perciò bisognerà curare la scelta delle luci sia indiretta che diretta, che sarà quella che in gran parte contribuirà a rendere l'ambiente più caldo.
Si accede al primo piano tramite una scala, ad oggi è in legno ed è provvisoria, come si può vedere anche nelle foto, ma per la progettazione finale fate riferimento al disegno della scala riportato nel progetto, perchè verrà realizzata così.
Primo piano:
il primo piano è una mansarda di circa 110 mq, con tetto in legno, ci piace che si veda il legno del tetto, la pianta non è obbligata da muri portanti, se non quelli perimetrali (mentre nord della casa ci sono 2 file di muri portanti) inoltre il tetto poggia su due pilastri centrali.
La difficoltà nel primo piano sarà quella di sfruttare al massimo gli spazi laterali in cui il tetto si abbassa di molto
Nel primo piano vogliamo ricavare una camera da letto con bagno padronale e cabine armadio, una cameretta, un secondo bagno, uno studio, una cucina grande open space con salottino piccolo.
Nel dettaglio:
Per il piano di sopra il progetto a cui teniamo molto è la realizzazione della cucina-soggiorno open space.
La cucina la vorremmo nella parte sud-ovest della casa così da ricevere il sole tutto il giorno, e poter godere della terrazza come un proseguimento esterno, della casa stessa.
Riguardo la terrazza ci piacerebbe poter trovare una soluzione che permetta di sfruttare al meglio questo spazio, e scegliere una copertura moderna e funzionale che possa trasformare questo ambiente in uno spazio abitabile a 360°; di giorno come di sera, offrire un riparo dal sole come dalla pioggia e garantire privacy dai vicini.
La cucina è una zona della casa che viviamo molto, inoltre ci teniamo che abbia molti piani di appoggio e sia grande.
Indispensabile sarà la dispensa che non vogliamo sia una stanzetta a parte ma una grande dispensa a parete in cartongesso che possa sfruttare l'altezza del tetto; non amiamo le ante perciò ci piacerebbe o integrarla alla cucina, o camuffarla in altro modo, in questa dispensa vorremmo riporre gran parte dei piccoli elettrodomestici, ne abbiamo 10!, e vorremmo che siano a portata di utilizzo ma che non si vedano. Tra i grandi elettrodomestici la scelta ricadrà su un frigo stile americano.
Ci piace l'idea di una cucina aperta sul living per aumentare la percezione dello spazio, (il salotto al primo piano non ci interessa che sia grande, anche perchè il salone grande già ce lo abbiamo al piano di sotto!) ma separata all'occorrenza da una parete scorrevole in modo da creare due zone funzionalmente ben distinte.
Ci piacerebbe avere una penisola che funga da separazione rispetto al soggiorno, ma vorremmo avere anche un piccolo tavolo, massimo per 4 persone, in cui mangiare quotidianamente senza dover andare al piano terra o mangiare sul banco snack.
Nella zona soggiorno ci sarà anche il divano angolare bianco (che già abbiamo vedi foto misure 2,95m X 1,00m con penisola di 1,20m) e la tv.
L'altra zona della casa a cui teniamo molto è la camera da letto.
Ci immaginiamo di avere una camera che dimostri una propria personalità.
Non amiamo armadi, ma ci piacerebbe poter sfruttare al massimo tutto lo spazio disponibile, anche quello non considerato abitabile, come le zone sotto lo spiovente con altezza minima, per creare 2 cabine armadio.
Vorremmo inserire nel progetto il letto già in nostro possesso (vedi foto allegata) se fosse possibile non orientato a sud e la tv. Il bagno padronale dovrà avere una grossa doccia senza piatto.
Per la cameretta abbiamo già alcuni arredi da inserire: un l'armadio (250cm x 55cm x h 251cm)con cassettiera (117cmx55cmx h 80cm) e
per lo studio abbiamo già due scrivanie (150cm x 58cm x h 80cm) con armadio (274x62x270). Entrambe queste stanze saranno servite da un bagno, in cui inserire lavatrice e asciugatrice, ma facendo in modo che non si vedano.
Molto importante è da considerare nella realizzazione del disegno che le altezze riportate sono quelle attuali; dopo l'intervento di coibentazione del tetto e della creazione dei pavimenti queste altezza diminuiranno ancor di più!
Come appena accennato altro intervento fondamentale sarà la coibentazione del tetto e la creazione di un cappotto termico esterno per ottimizzare l'isolamento termico di casa.
La scelta del tipo di riscaldamento ancora non è chiara se utilizzare una stufa a metano con riscaldamento a pavimento oppure l'utilizzo di fotovoltaici con pompe di calore.
Questa villetta ora è unifamigliare ma dopo i lavori diventerà una bifamigliare con 2 entrate indipendenti. Il piano terra che comprende il porticato con le colonne è abitato da una famiglia e non è oggetto di restauro. (vedi foto) La parte interessata è invece il primo piano con terrazzo e il piano terra a destra dell'abitazione. In questa parte del giardino vorrei un cancelletto (vedi foto) e nell'entrata dal giardino sarà previsto un salottino esterno con porticato. Oggi si accede al piano terra tramite una porta di legno (quello sarà l'accesso principale), ora il piano terrà è utilizzato come magazzino degli attrezzi e macchinari vari (vedi foto); non ha pavimento, ne rivestimenti, ne controsoffitto. E' una stanza buia perchè riceve il sole in pochissime ore del giorno, ed ha solo una finestra a destra del portone e un'altra nella piccola stanza adiancente alla scala, dove c'e una finestra per tetti, uniche fonti di luce molto deboli, ecco perchè per noi è molto importante avere per questo piano terra uno studio di luce diretta e indiretta.