
87040 Luzzi CS, Italy
Commerciale - Retail
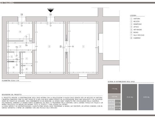
Descrizione
ENGLISH VERSION:
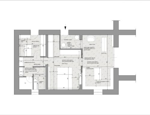
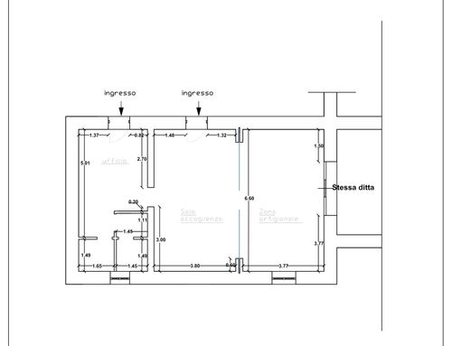
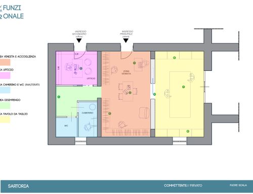
Hello, I have a tailor shop with 2 entrances. From the floor plan I would need to welcome people where the rectangle below SUB11 is, so instead of the office I would like to create a dressing room for guests where to try on clothes perhaps by putting a wall mirror and some small sofas where they can sit.
Where you read SUB11 I would like to create my office, I don't have many needs I have a desk with chairs from the 18th century to insert.
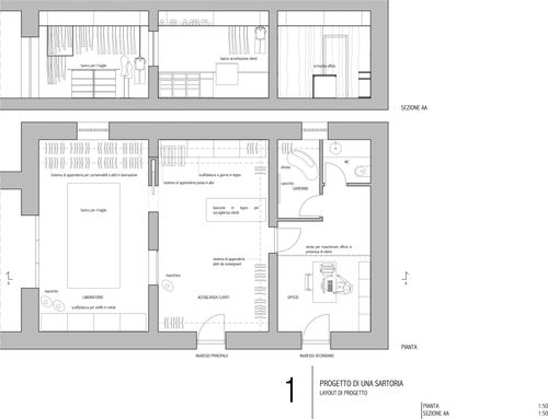
SUB11 and SUB11 Att.Artigianale are connected by a door, in the artisan area I need to create a reception room where you need a table to have the first reception with customers. The tailoring makes dance clothing therefore they must have the possibility to choose colors and materials. I need to place shelves, hangers etc.
The other half of the Sub11 Att.Artigianale serves to insert the cutting table with the shelves where the fabrics are to be inserted.
SPANISH VERSION:
Hola, tengo una sastrería con 2 entradas. Desde el piso principal, tendría que dar la bienvenida a las personas donde está el rectángulo debajo del SUB11, por lo que en lugar de la oficina, me gustaría crear un vestidor para los invitados donde probarse la ropa, quizás colocando un espejo de pared y algunos pequeños sofás donde puedan sentar.
Donde lees SUB11 me gustaría crear mi oficina, no tengo muchas necesidades, tengo un escritorio con sillas del siglo XVIII para insertar.
SUB11 y SUB11 Att.Artigianale están conectados por una puerta, en el área artesanal necesito crear una sala de recepción donde se necesita una mesa para tener la primera recepción con los clientes. La sastrería hace la ropa de baile, por lo tanto, deben tener la posibilidad de elegir colores y materiales. Necesito colocar estantes, perchas, etc.
La otra mitad del Sub11 Att.Artigianale sirve para insertar la mesa de corte con los estantes donde se insertarán las telas.
ITALIAN VERSION:
Buongiorno, ho una sartoria con 2 ingressi. Dalla planimetria avrei bisogno di accogliere le persone dove è il rettangolo sotto SUB11 dunque al posto dell'ufficio vorrei realizzare un camerino per gli ospiti dove provare gli abiti magari mettendo uno specchio a muro e qualche divanetto piccolo dove possono sedersi.
Dove leggete SUB11 vorrei realizzare il mio ufficio, non ho molte esigenze ho una scrivania con delle sedie del '700 da inserire.
SUB11 e SUB11 Att.Artigianale sono collegati da una porta, nella zona artigianale ho necessità di creare una sala accoglienza dove si ha necessità di un tavolo per avere la prima accoglienza con i clienti. La sartoria fa abbigliamento per danza dunque devono avere la possibilità di scegliere i colori ed i materiali. Mi serve posizionare dei scaffali, appendini ecc.
L'altra metà del Sub11 Att.Artigianale serve inserire il tavolo da taglio con gli scaffali dove vanno inserite le stoffe. Vorrei aggiungere nel sub 11artigianale un divisione sotto l'arco con porta scorrevole centrale ,mi piacerebbe in vetro anche in legno