
Rome, Metropolitan City of Rome, Italy
Residenziale - Appartamento
Descrizione
ENG VERS:
Hi everyone,
in my new apartment I have to:
- replace the existing radiators and put new Thermo-furnishings (also requires thermal calculation) everywhere and with thermostatic valves. An option I am considering is to put the heating system under the floor in all the apartment. So please, for each project, give me both the options.
- put a modern condensation-boiler remotely controlled
- provide a thermal isolation through insufflating the air chamber
- you can change the place of the existing air conditioners, eventually. And suggest me new types.
- change the fixtures that are there with new PVC fixtures, with double-glazed glass, insulated box with wind-resistant celino; with motorized insulated PVC roller shutter and non-pleated tank mosquito nets with elastic (positioned between roller shutter and window frame).
- make a new lighting system. I really like spotlights but also hanging lamps on the dining table (important to have 500 Lux on the table). I want a bright apartment.
- it is very likely that the tubes in the bathrooms need to be changed. So please, include in the project, also the prospect of new bathrooms.
LOUNGE AREA.
I would like to tear down the plasterboard bookcase that occupies an entire wall of the living room. (The equipped wall of the photos is not mine but of the current owner and will go away with him, together with the brown sofa and the glass table with chairs).
In general, I don't have to tear down walls, the internal subdivision remains as it is.
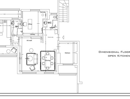
Instead, I am undecided as to whether or not the living room with the kitchen will be closed (the kitchen furniture eventually remains) and I am very interested in having solutions in this regard to see how the space will come in either case. Eventually I would keep the parquet in the lounge.
For the walls of the living room I also like strong warm colors (such as the cherry color in the reference photo), possibly coloring one wall with a strong color and the other 3 with shades of a lighter tone or two. Of course it has to harmonize with my furniture (see attached photos).
I do not exclude 1 or 2 baroque velvet poufs / armchairs, which keep company with the gray sofa.
A carpet must be combined with the seating area.
If the table does not come in, I can also change it. But I want to keep the chairs.
Space should be found for the TV.
ROOMS
In the rooms I would change the parquet: I would like to lay it still in an Italian herringbone pattern but in a different direction than how it is now, and I'd prefer a light color if it suits and 8 cm wide.
In the bedroom, it is necessary to enhance the long wall, also by placing (in addition to the paintings on pink and gray hues, see photo) of the shelves, also of design.
Also on the long wall I would place a double bed on a slatted base that has containers for the sheets (for the style of the bed I don't know). I thought for the color of the walls a silk gray.
A door is needed in the bedroom (a sliding one?)
The small room can act as a study (probably my mirror wardrobe will have to enter it). I have no particular ideas. My hobbies are painting (I have am easel) and reading.
ENTRANCE
I would put a boiserie or a bench / sofa (I don't have a precise idea of the style).
FINAL NOTES
In the space between the entrance and the second room I thought of putting my washing machine (Miele, l. 60cm, p. 65 cm, h. 85 cm). A laundry space should be created.
The ceilings in all spaces of the apartment could be made with plaster frames. But it depends on what you consider as more fitting.
I think my style is eclectic.
I read somewhere: “Each of us has many facets within us, which often do not allow us to uniquely choose the style that suits us. This is why we prefer not to define our furnishing style too rigidly, but to associate more than one, in order to recreate an environment with greater aesthetic complexity ". Here, I find myself a lot.
For materials, I prefer a good, medium-high rather than medium-low quality. If it is possible, I would like to have 2 options in the material sheets.
Good job!
SPA VERS:
Hola a todos,
en mi nuevo departamento quiero:
- Reemplazar los radiadores existentes y colocar nuevos calentadores (también se requiere el cálculo térmico) en todas partes. Una opción que estoy considerando seriamente es hacer el sistema de calefacción por suelo radiante, aprovechando las nuevas disposiciones gubernamentales sobre la reestructuración del ahorro de energía.
- Cambiar las ventanas existentes con ventanas de PVC, con vidrio de doble acristalamiento, persianas con cajón exterior resistentes al viento, enrollables de PVC aislantes y motorizadas, mosquiteras corredizas no plisadas con elástico (colocado entre la persiana enrollable y el marco de la ventana).
- Hacer un nuevo sistema de iluminación. Realmente me gustan los focos pero también las lámparas colgantes en la mesa del comedor (importante tener 500 Lux en la mesa). Quiero un departamento bien iluminado.
SALÓN.
Me gustaría quitar la estantería de cartón yeso que ocupa una pared entera de la sala de estar. (El mueble modular de pared de las fotos no es mío sino del propietario actual y se irá con él, junto con el sofá marrón y la mesa de vidrio con sillas).
En general, no tengo que derribar muros, la subdivisión interna permanece bien como está.
En cambio, estoy indeciso sobre si la sala de estar con la cocina quedará cerrada o no (los muebles de la cocina permanecen) y estoy muy interesado en obtener soluciones para ver cómo vendrá el espacio en cualquier caso. Eventualmente mantendría el parquet en el salón.
Para las paredes de la sala también me gustan los colores cálidos y fuertes (como el color cereza en la foto de referencia), posiblemente pintando una pared con un color fuerte y las otras 3 con uno o dos tonos más claro. Por supuesto, tiene que armonizar con mis muebles (ver fotos adjuntas).
No excluyo 1 o 2 pufs / sillones de terciopelo barroco, que acompañan al sofá gris.
Se debe combinar una alfombra con el área de la sala.
Si la mesa no cabe, también puedo cambiarla. Pero quiero quedarme con las sillas.
Se debe diseñar un espacio para la TV
HABITACIONES:
En cambio, en las habitaciones cambiaría el parquet: me gustaría colocarlo en forma de espiga, de color claro y 8 cm de ancho.
En el dormitorio, es necesario realzar la pared larga, también colocando estantes (además de las pinturas en los tonos rosa y gris, ver foto), también de diseño.
En la pared larga apoyaría una cama matrimonial con base de barras de madera que tenga contenedores para las sábanas (el estilo de la cama no lo sabría). Pienso que el color de las paredes podría ser gris seda.
La pequeña habitación puede actuar como un estudio (probablemente mi armario espejo tendrá que estar ahí). No tengo ideas particulares.
ENTRADA:
Pondría una boiserie o un banco / sofá (no tengo una idea precisa del estilo).
NOTAS FINALES:
En el espacio entre la entrada y la segunda habitación, pensé en poner mi lavadora (Miele, l. 60cm, p. 65 cm, h. 85 cm). Se debe crear un espacio de lavandería.
Los gabinetes y / o estantes deben colocarse en los baños. Deben embellecerse un poco (por el momento no pienso reestructurarlos).
Los techos se pueden hacer con marcos de yeso.
Creo que mi estilo es ecléctico.
Leí en alguna parte: “Cada uno de nosotros tiene muchas facetas dentro de nosotros, que a menudo no nos permiten elegir de manera única el estilo que más nos convenga. Es por eso que preferimos no definir el estilo de nuestros muebles con demasiada rigidez, sino asociar más de uno para recrear un ambiente con mayor complejidad estética ". Aquí coincido mucho.
Para los materiales, prefiero una calidad buena, media-alta en lugar de media-baja. Si es posible, me gustaría tener 2 opciones en las tablas de materiales y acabados.
¡Buen trabajo!
ITA VERS:
Ciao a tutti,
nel mio nuovo appartamento devo:
- sostituire gli attuali radiatori e mettere dei nuovi Termo-arredo (serve anche calcolo termico) ovunque, che abbiano delle valvole termostatizzabili. Un'opzione che sto considerando è di fare l’impianto termico a pavimento, approfittando delle nuove disposizioni del Governo in materia di ristrutturazione con risparmio energetico. Quindi per ogni progetto, per favore, datemi entrambe le opzioni.
- mettere una caldaia a condensazione (meglio se modulante con controllo da remoto).
- mettere un cappotto termico con insufflazione nella camera d'aria.
- potete eventualmente cambiare di posto gli attuali condizionatori. E suggerirmi dei nuovi condizionatori a pompa di calore
- cambiare gli Infissi che ci sono con nuovi infissi in PVC, con doppio vetro camera, cassonetto coibentato resistente al vento; con avvolgibile in PVC coibentato motorizzato e zanzariere a carro armato non plissettato con elastico (posizionate fra avvolgibile e infisso).
- fare un nuovo impianto di illuminazione. Mi piacciono molto i faretti ma sul tavolo da pranzo anche delle lampade pendenti (importante avere 500 Lux sul tavolo). Voglio un appartamento luminoso.
- verosimilmente dovranno essere sostituite le tubature del bagno. Per cui vi pregherei di includere nel progetto anche il rifacimento dei due bagni (mi piace molto lo stile Bali/Spa ).
SALONE.
Vorrei abbattere la libreria in cartongesso che occupa un’intera parete del salone. (La parete-attrezzata delle foto non e’ mia ma dell’attuale proprietario ed andra’ via con lui, assieme al divano marrone ed al tavolo di vetro con sedie).
In generale, non devo abbattere muri, la suddivisione interna resta cosi’ com’e’.
Sono indecisa invece in merito alla chiusura o meno del salone con la cucina (il mobilio della cucina tendenzialmente resta) e sono molto interessata ad avere delle soluzioni in merito per vedere come verrà lo spazio nell’uno e nell’altro caso. Eventualmente manterrei il parquet nel salone.
Per le pareti del salone mi piacciono anche tinte forti calde (come il color ciliegio nella foto di riferimento), eventualmente colorando una parete con colore forte e le altre 3 con tinte di un tono o due piu’ chiare. Naturalmente deve armonizzarsi con i miei mobili (v. foto allegate).
Non escludo 1 o 2 puff/ poltrone barocche in velluto, che facciano compagnia al divano grigio.
Va abbinato un tappeto all’area salotto.
Il tavolo, se non entra, posso anche cambiarlo. Ma le sedie voglio tenerle.
Va trovato uno spazio per il televisore.
CAMERE
Nelle camere invece cambierei il parquet: lo vorrei posato sempre a spina di pesce italiana, ma con diversa direzione rispetto a quella attuale, e lo vorrei di colore chiaro possibilmente e largo 8 cm.
Nella camera da letto, occorre valorizzare la parete lunga, anche mettendo (oltre ai quadri sulle tinte rosa e grigio, v. foto) delle mensole, anche di design.
Sempre sulla parete lunga appoggerei un letto matrimoniale su rete a doghe che abbia contenitori per le lenzuola (per lo stile del letto non saprei). Pensavo per il colore delle pareti ad un grigio seta.
Occorre mettere una porta in camera da letto (scorrevole?)
La camera piccola puo’ fungere da studiolo (probabilmente dovra’ entrarci il mio armadio a specchio). Non ho idee particolari. I miei hobby sono la pittura (ho un cavalletto) e la lettura.
INGRESSO
Metterei una boiserie o una panca/divano (non ho un'idea precisa dello stile).
NOTE FINALI
Nello spazio fra l’ingresso e la seconda stanza pensavo di mettere la mia lavatrice (Miele, l. 60cm, p. 65 cm, h. 85 cm). Va ideato uno spazio lavanderia.
Attualmente soltanto nella camera da letto grande c'e' una controsoffittatura ma va rifatta.
Mi piacerebbe anche che i soffitti in tutte le stanze fossero fatti con cornici in gesso, ma vedete voi se sta bene.
Credo che il mio stile sia eclettico.
Ho letto da qualche parte: “Ciascuno di noi ha dentro di sé molte sfaccettature, che spesso non ci consentono di scegliere in maniera univoca lo stile che fa per noi. Per questo preferiamo non definire in maniera troppo rigida il nostro stile di arredo, ma associarne più di uno, in modo da ricreare un ambiente con una maggiore complessità estetica”. Ecco, mi ci ritrovo molto.
Per i materiali, prediligo una qualita’ buona, medio-alta piuttosto che medio-bassa. Se e’ possibile, vorrei avere 2 opzioni nelle schede-materiali.
Grazie a tutti e Buon lavoro!
Laura