
09170 Oristano, Province of Oristano, Italy
Residenziale - Appartamento
Descrizione
ENG:
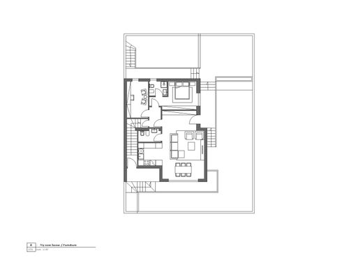
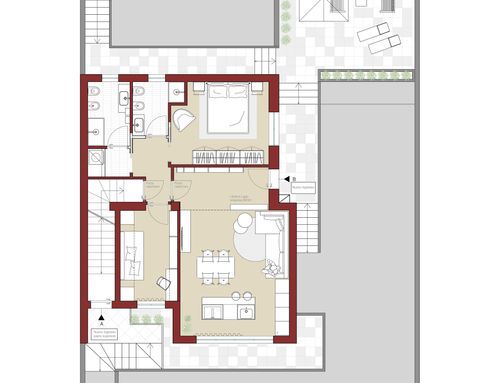
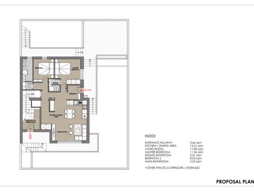
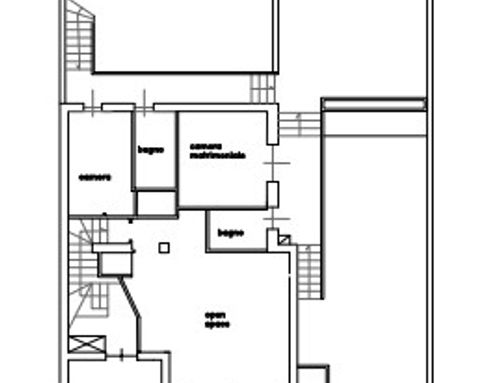
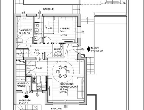
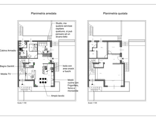
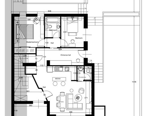
I have a house arranged on 4 levels, but I need to make changes only on the first floor, which is currently where I live. I would like to move the kitchen to the living area, eliminating the current storage room, thus creating an open space. I want to create a master bedroom and another small room. I need 2 bathrooms (one of them can be small). The entrance to my apartment will be moved laterally, where I currently have access from the balcony. The current entrance, on the other hand, should serve the upper area, so it needs to be moved to the left to have direct access to the upper floor. I prefer light colors with modern furnishings.
ESP:
Tengo una casa distribuida en 4 niveles, pero necesito hacer cambios solo en el primer piso, que es donde actualmente vivo. Me gustaría trasladar la cocina al área de estar, eliminando el actual cuarto de almacenamiento y creando así un espacio abierto. Quiero crear un dormitorio principal y otra habitación pequeña. Necesito 2 baños (uno de ellos puede ser pequeño). La entrada a mi departamento se trasladará lateralmente, donde actualmente tengo acceso desde el balcón. La entrada actual, por otro lado, deberá servir a la zona superior, por lo que debe desplazarse hacia la izquierda para tener acceso directo al piso superior. Prefiero colores claros con muebles modernos.
ITA:
Ho una casa disposta su 4 livelli , ma ho necessità di apportare delle modifiche solo sul primo primo, ossia il piano dove attualmente vivo. Vorrei trasferire la cucina nella zona soggiorno, eliminare l'attuale ripostiglio creando pertanto un open space. Ricavare una camera matrimoniale, più un'altra piccola stanza stanza. Mi occorrono 2 bagni (uno anche piccolino). L'ingresso del mio appartamento sarà spostato lateralmente, dove attualmente ho l'accesso dal balcone. L'attuale ingresso, invece dovrà servire la zona superiore, pertanto dovrà essere spostato verso sinistra per avere l'accesso diretto piano superiore. Prediligo i colori chiari con arredi moderni.