
Paris, France
Residenziale - Appartamento
Descrizione
English
GENERAL
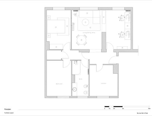
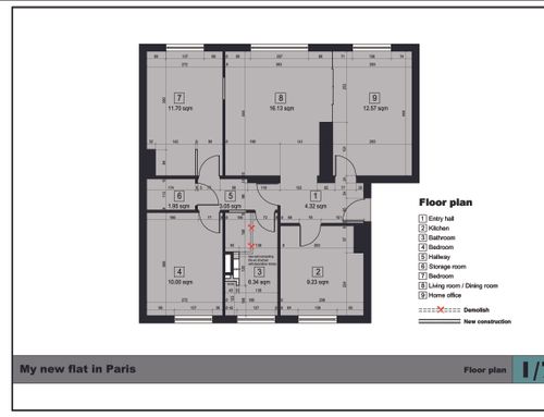
Projects: furnishing the double living-room and the bedroom (left side); renovating the bathroom
Style: design (for example, Kartell inspired) or pure/ethereal (for example, Scandinavian style)
Aim: taking advantage of all the space available, without overloading the flat (keep the luminosity, make sure the rooms do not seem overloaded)
Needs: two people work at home most of the week
Budget: not too expensive, 5,000/7,000 euro for furniture, 5,000/10,000 euro for the bathroom
DETAILS
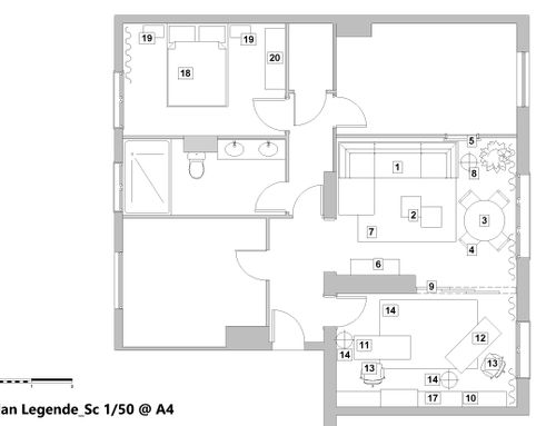
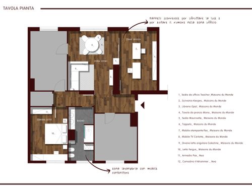
Regarding the double living-room:
• office in the first room (first door on the right) with a big library (ideally including some closed doors), a small piece of furniture for a printer, two desks with ergonomic seats
• living-room & dining-room in the second room (second door on the right) with a sofa bed (ideally with a corner sofa), a low table, a small TV stand, a dining table with 4 chairs
• carpets in order to avoid damaging the parquet floor
• curtains
• maybe, an idea to separate both rooms sometimes (in order to limit the noise) but not always (in order to enjoy the luminosity)
For the bedroom:
• a queen size bed (160x200)
• two bed tables
• a wardrobe
For the bathroom:
• combining the bathroom and the toilets into one single bathroom
• adding a bidet
---------------------------------------------------------------------------------------------------------------------------------------------------------------------------
Français
GÉNÉRAL
Projets : ameublement du double séjour et de la chambre (au fond à gauche) ; réfection de la salle de bain
Style : design (par exemple, inspiration Kartell) ou épuré (par exemple, style scandinave)
Finalité : exploiter toute la place, sans alourdir l’appartement (maintenir la luminosité, avoir des pièces qui ne paraissent pas trop remplies)
Besoins : plusieurs jours par semaine, deux personnes travaillent Ă la maison
Budget : pas trop onéreux, 5000/7000 euros pour l’ameublement, 5000/10000 euros pour la salle de bain
DÉTAILS
Pour le double séjour :
• bureau (première porte à droite), avec une grande bibliothèque (idéalement, avec quelques portes fermées), un petit meuble pour imprimante, deux tables de bureau avec fauteuils ergonomiques
• séjour et salle à manger (deuxième porte à droite), avec un canapé-lit (idéalement à angle), une table basse, un petit meuble télé, une table à manger et quatre chaises
• des tapis pour éviter d’abîmer le parquet
• des rideaux
• éventuellement, idée pour séparer les deux pièces parfois (pour éviter le bruit) mais pas toujours (pour profiter de la lumière)
Pour la chambre :
• un lit double 160x200
• deux tables de nuit
• une armoire
Pour la salle de bain :
• fusionner la partie salle de bain et la partie wc
• ajouter un bidet
-----------------------------------------------------------------------------------------------------------------------------------------------------------------------------
Italiano
GENERALE
Progetti: ammobiliare il doppio soggiorno e la camera (in fondo a sinistra) ; ristrutturare il bagno
Stile: design (ad esempio, ispirato a Kartell) o minimalista/depurato (ad esempio, stile scandinavo)
Finalità : sfruttare tutto lo spazio, senza appesantire l’appartamento (mantenere la luminosità , avere delle stanze che non sembrino troppo piene)
Bisogni: vari giorni a settimana, due persone lavorano da casa
Budget: non troppo costoso, 5000/7000 euro per i mobili, 5000/10000 euro per il bagno
DETTAGLI
Per il doppio soggiorno :
• ufficio (prima porta a destra), con una grande libreria (idealmente, con alcune ante), un piccolo mobile per stampante, due scrivanie con poltrone ergonomiche
• soggiorno e sala da pranzo (seconda porta a destra), con un divano-letto (idealmente ad angolo), un tavolino da salone, un piccolo mobile per il televisore, una tavola da pranzo e quattro sedie
• dei tappeti per evitare di rovinare il parquet
• delle tende
• eventualmente, un’idea per separare le due stanze a volte (per evitare il rumore) ma non sempre (per approfittare della luce)
Per la camera :
• un letto doppio 160x200
• due comodini
• un armadio
Per il bagno :
• Riunire la parte bagno e la parte wc
• Aggiungere un bidet