
70023 Gioia del Colle, Metropolitan City of Bari, Italy
Residenziale - Appartamento
Descrizione
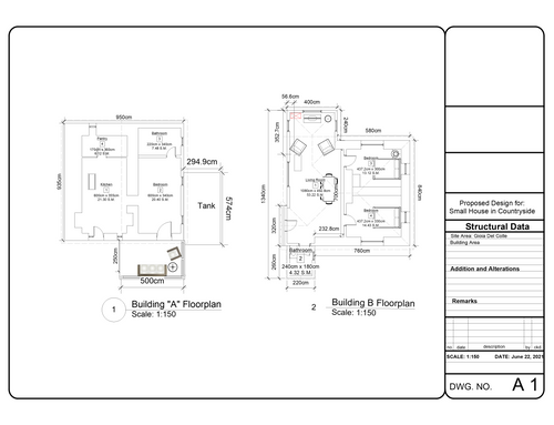
Nella planimetria sono riportate n.2 fabbricati, di cui uno (indicato con la lettera A) in condizioni accettabili internamente, mentre per lโesterno va sistemato; lโaltro fatiscente(B), un rustico in pietra da recuperare, anticamente fungeva da stalla, formato da 3 ambienti come si vede nelle foto, il tetto รจ crollato per cui inesistente. Mi piacerebbe recuperarlo realizzando una struttura per ospiti in pietra, come i casolari di una volta, inserendo un piccolo bagno, 2 camerette e un salone ampio, creando se possibile soppalco e lucernari. recuperando le finestrelle e le insenature presenti nei muri in pietra, valorizzando anche la quercia secolare posta davanti a questo fabbricato; al centro tra i due fabbricati si trova un altro albero. Mi piacerebbe realizzare una struttura che possa far comunicare i due fabbricati, che separi la zona antistante i fabbricati, da quella compresa tra i fabbricati, ad esempio una pensilina coperta e attrezzata; โฆ un bel giardino fiorito, pavimentato parzialmente, con prato naturale calpestabile, che ricordi un po' lโaia delle antiche masserie, che abbia sedute sparse in vari punti, zona relax, una zona parcheggio auto. Mi piacerebbe valorizzare anche i muretti a secco.
Naturalmente sono aperta a qualunque soluzione funzionale che possa spingermi ad acquistare questa proprietร per farla diventare un luogo in cui rifugiarmi la domenica o i giorni festivi, per immergermi nella natura, dopo una settimana trascorsa per lavoro davanti ad un pc e nel caos della cittร .
Ringrazio tutti per i vostri consigli e suggerimenti.
The plan shows 2 buildings, one of which (indicated with the letter A) in acceptable conditions internally, while externally it must be arranged; the other dilapidated (B), a stone cottage to be recovered, formerly served as a stable, consisting of 3 rooms as seen in the photos, the roof has collapsed so it does not exist. I would like to recover it by creating a stone structure for guests, like the cottages of the past, inserting a small bathroom, 2 bedrooms and a large living room, creating a mezzanine and skylights if possible. recovering the windows and inlets present in the stone walls, also enhancing the centuries-old oak placed in front of this building; in the center between the two buildings there is another tree. I would like to create a structure that can make the two buildings communicate, that separates the area in front of the buildings from that between the buildings, for example a covered and equipped shelter; ... a beautiful flower garden, partially paved, with natural walkable lawn, which reminds a little of the farmyard of the ancient farms, which has seats scattered in various points, a relaxation area, a car parking area. I'd also like to enhance the dry stone walls.
Of course I am open to any functional solution that could push me to buy this property to make it a place to take refuge on Sundays or holidays, to immerse myself in nature, after a week spent working in front of a PC and in the chaos of the city.
I thank everyone for your advice and suggestions.
El plano muestra 2 edificios, uno de los cuales (indicado con la letra A) en condiciones aceptables internamente, mientras que externamente debe ser arreglado; el otro ruinoso (B), una cabaรฑa de piedra a recuperar, antiguamente servรญa de establo, consta de 3 habitaciones como se ve en las fotos, el techo se ha derrumbado por lo que no existe. Me gustarรญa recuperarlo creando una estructura de piedra para invitados, como las cabaรฑas del pasado, insertando un pequeรฑo baรฑo, 2 dormitorios y una gran sala de estar, creando un entrepiso y claraboyas si es posible. recuperar las ventanas y entradas presentes en los muros de piedra, realzando tambiรฉn el roble centenario colocado frente a este edificio; en el centro entre los dos edificios hay otro รกrbol. Me gustarรญa crear una estructura que pueda hacer que los dos edificios se comuniquen, que separe el รกrea frente a los edificios de la que estรก entre los edificios, por ejemplo, un refugio cubierto y equipado; ... un hermoso jardรญn de flores, parcialmente pavimentado, con cรฉsped natural transitable, que recuerda un poco al corral de las antiguas granjas, que cuenta con asientos repartidos en varios puntos, una zona de relax, una zona de aparcamiento. Tambiรฉn me gustarรญa mejorar las paredes de piedra seca.
Por supuesto que estoy abierto a cualquier soluciรณn funcional que pueda empujarme a comprar esta propiedad para convertirla en un lugar de refugio los domingos o festivos, para sumergirme en la naturaleza, despuรฉs de una semana trabajando frente a un PC y en el caos. de la ciudad.
Agradezco a todos sus consejos y sugerencias.