
09010 Narcao, South Sardinia, Italy
Residenziale - Appartamento
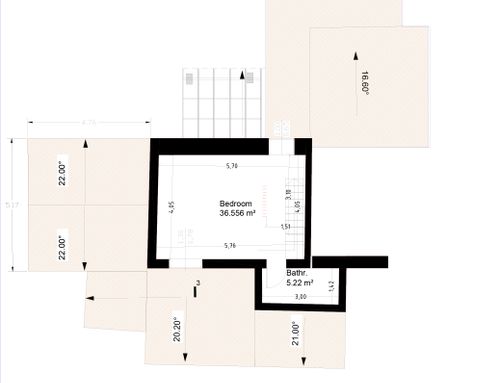
Descrizione
ITA
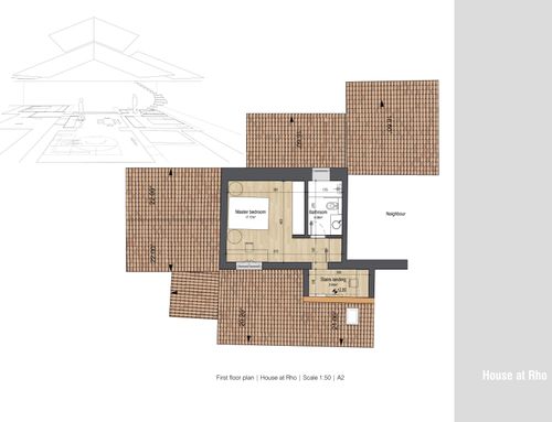
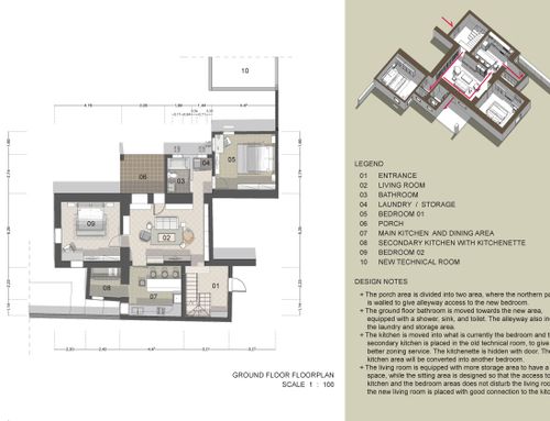
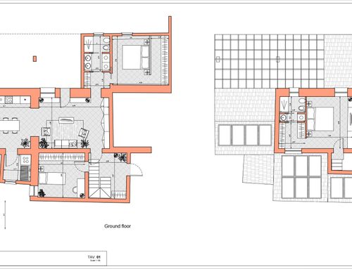
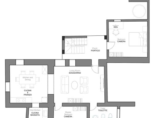
Vorrei ampliare la zona ingresso/soggiorno magari eliminando il bagno. I due bagni potrei ricavarli uno al Iato primo e l’altro creando un antibagno con accesso dalla finestra dell’attuale bagno adiacente al magazzino che a sua volta potrebbe diventare una terza camera. Nella legnaia farei una piccola zona cottura di servizio. Collegandomi dall’attuale cucina che sistemerei con la zona cottura e lavabo dalla parte opposta alla finestra. Dovrei creare un volume tecnico all'esterno dove allocare il boiler dell'impianto di riscaldamento e l'inverter dell'impianto fotovoltaico con l'accumulatore. Devo decidere se mettere il fotovoltaico nel tetto (nelle falde) oppure creare un loggiato in giardino.
ENG
I would like to expand the entrance / living area, perhaps eliminating the bathroom. The two bathrooms could be obtained one on the first side and the other by creating an anteroom with access from the window of the current bathroom adjacent to the warehouse which in turn could become a third bedroom. In the woodshed I would make a small service cooking area. By connecting from the current kitchen that I would arrange with the cooking area and sink on the side opposite the window. I should create a technical volume outside where to allocate the boiler of the heating system and the inverter of the photovoltaic system with the accumulator. I have to decide whether to put the photovoltaic in the roof (in the pitches) or create a loggia in the garden.
SPA
Me gustaría ampliar la entrada/sala de estar, tal vez eliminando el baño. Los dos baños se podrían obtener uno en el primer lado y el otro creando una antesala con acceso desde la ventana del baño actual contiguo al almacén que a su vez podría convertirse en un tercer dormitorio. En la leñera haría una pequeña zona de cocina de servicio. Conectando desde la cocina actual que dispondría con la zona de cocción y fregadero en el lado opuesto a la ventana. Debería crear un volumen técnico en el exterior donde ubicar la caldera del sistema de calefacción y el inversor del sistema fotovoltaico con el acumulador. Tengo que decidir si poner la fotovoltaica en el techo (en las parcelas) o crear una logia en el jardín.