Trapani, TP, Italia
Residenziale - Appartamento
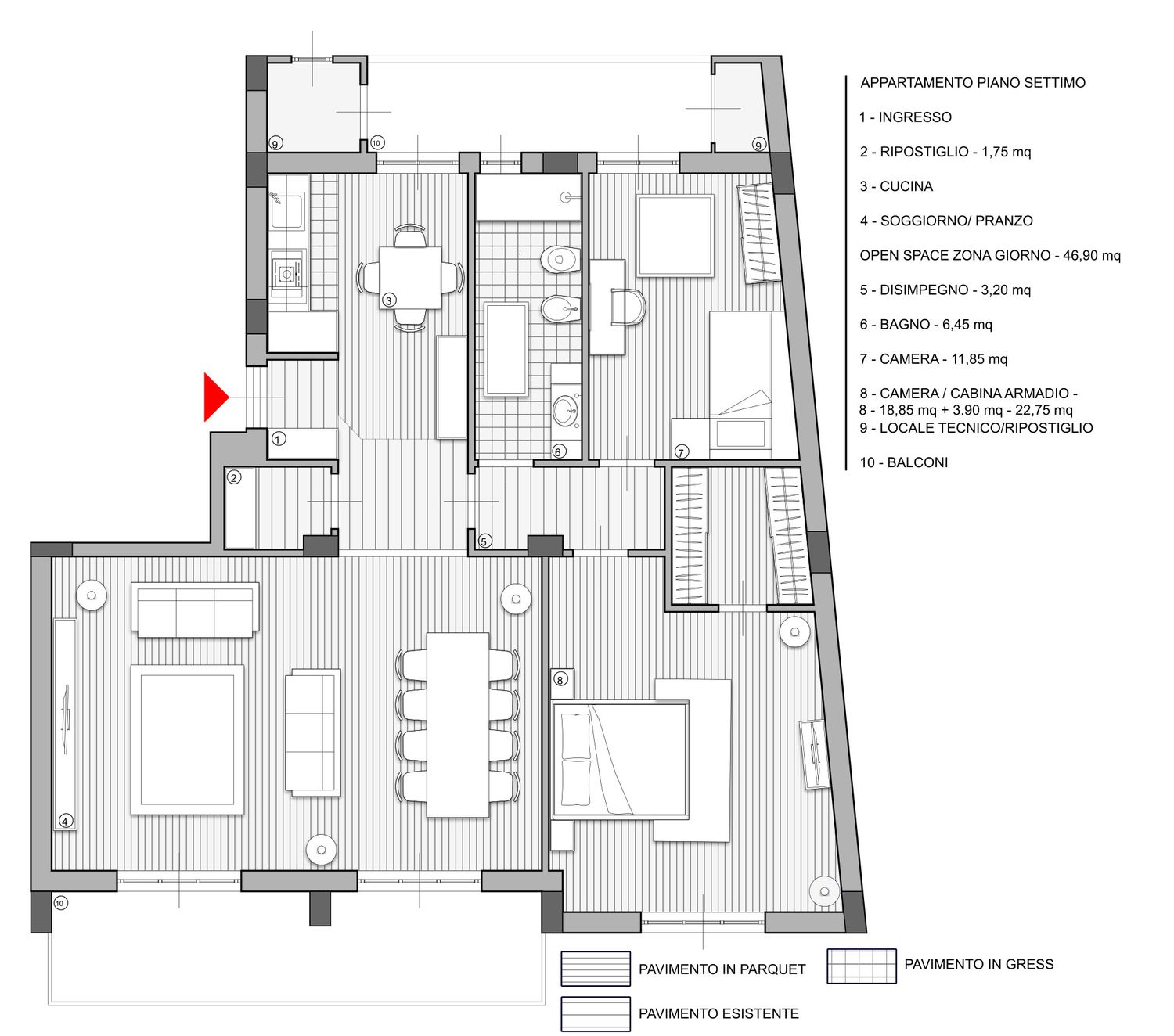
PROPOSTA: MY HOME LUCE NUOVA - TRAPANI (TP) – PIANO SETTIMO
Dalla planimetria presente nelle risorse del bando di gara, per poter soddisfare le vostre richieste è stato necessario apportare delle demolizioni e ricostruzioni delle tramezzature, cercando di preservare il più possibile la pavimentazione esistente.
Con il progetto che vi presento ho cercato di dividere la zona giorno, con un grande open space con un piccolo ripostiglio, dalla zona notte, dove un grande bagno e due camere di cui una con una bella cabina armadio, completano l’immobile.
Per l’open space mi sono ispirato dal titolo del contest My home LUCE NUOVA, una zona giorno di un’ appartamento al settimo piano non può che essere inondato dalla luce naturale. Eventualmente si po' pensare di separare l’ambiente cucina e la zona giorno con delle porte scorrevoli vetrate.E’ stata pensata anche una planimetria dell’illuminazione artificiale.
Pertanto le finiture della nuova planimetria sono: per quanto riguarda le pavimentazioni, a quella esistente si aggiungono il gress in parte in cucina e bagno ed il parquet negli altri ambienti.
Si preservano gli stucchi nei vari ambienti.
Nella zona ingresso è stata pensata una controsoffittatura che contenesse dei faretti per rendere l’illuminazione più gradevole.