
Trapani, TP, Italia
Residenziale - Appartamento
Dear Client,
I hope this proposal meets your needs and reflects your intentions for the spatial organization of your home.
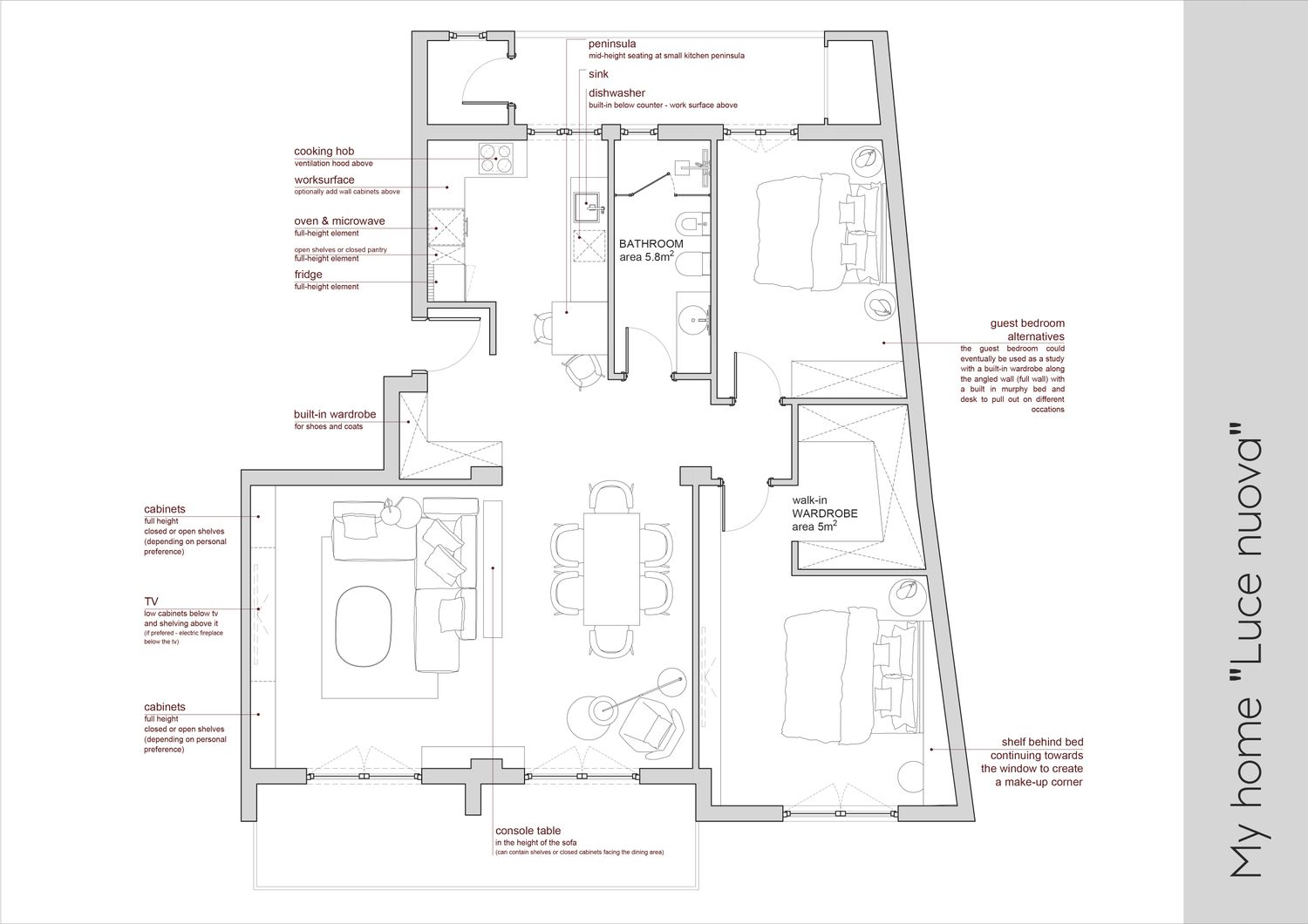
Upon entering the apartment, you are welcomed by a spacious built-in wardrobe designed to accommodate shoes, coats, and everyday items. This leads into a fully open-plan living area, where the kitchen connects seamlessly to the dining space through a small peninsula—ideal for morning coffee, casual meals, or seating while cooking. The living room features a large sofa with a TV unit opposite, while the dining area is positioned behind it, complemented by a cozy reading nook by the window.
The bathroom includes a generous walk-in shower by the window. I found that it was not necessary to alter the existing walls to achieve this, while still maintaining ample space for a large sink and vanity area.
The master bedroom now incorporates a spacious walk-in wardrobe as part of the room. It accommodates a king-size bed with bedside tables, and a cabinet with a TV mounted above it for comfortable viewing from the bed. A small desk or makeup area is also placed by the window to take advantage of natural light.
Please let me know if you have any questions or would like to explore any adjustments.
Kind regards