
Trapani, TP, Italia
Residenziale - Appartamento
Dear Client,
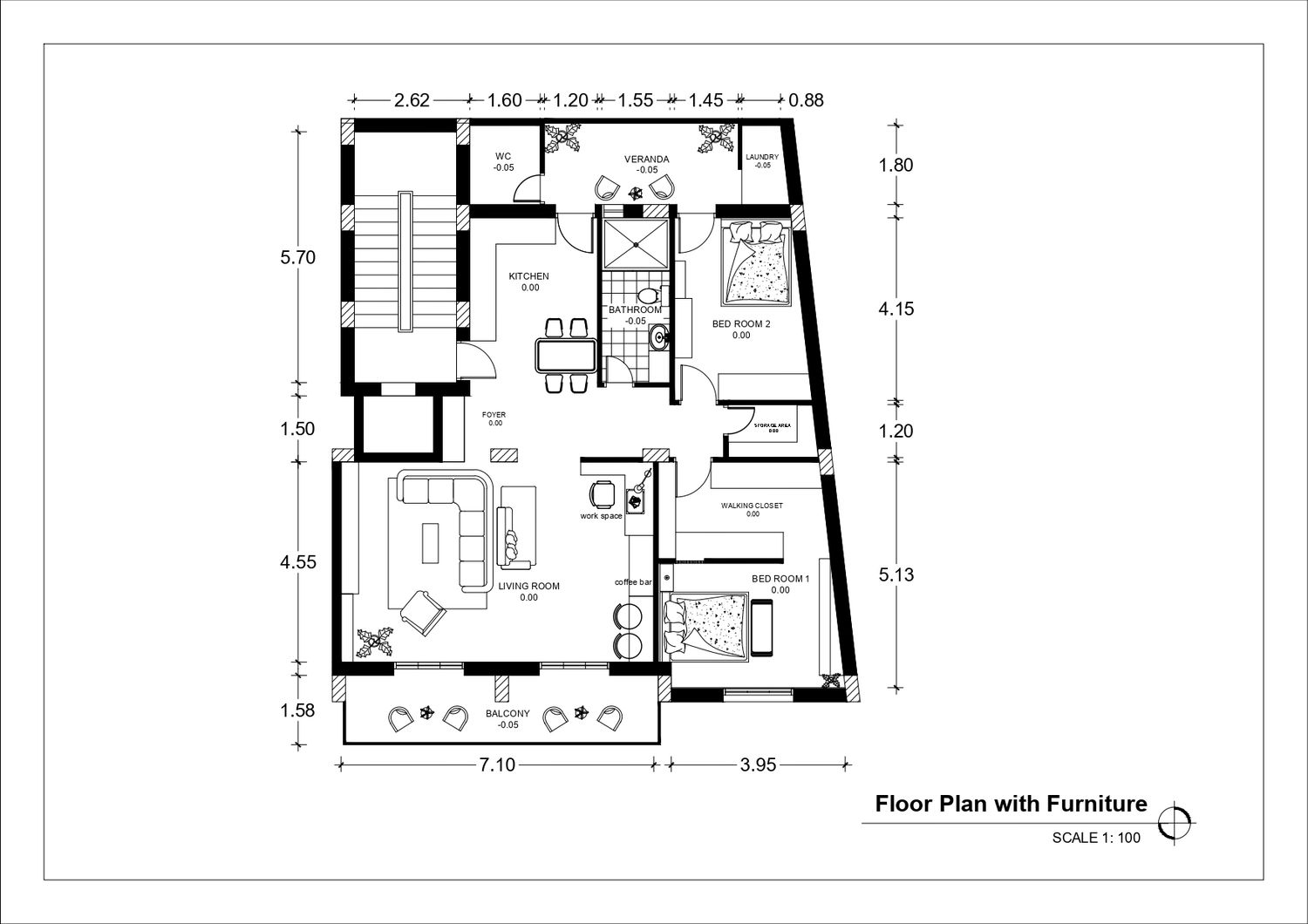
We have designed the layout based on the requirements you described. For the wall renovation, we made only minimal changes, specifically in the entrance area, to create an open-space concept. Although the space is not fully separated, the foyer function of the house is still maintained.
In the master bedroom, we added an internal partition wall to create a walk-in closet area. Considering that the current size of the master bedroom is already sufficient, there is no need to expand the bedroom area further.
We hope the design we have provided meets your expectations, and we truly hope you like it.
Kind regards,