
41012 Carpi MO, Italy
Residenziale - Appartamento
Descrizione
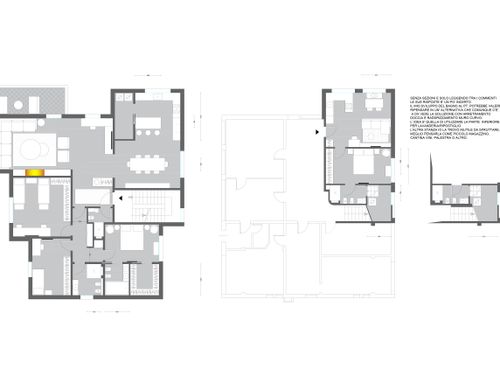
Il contest รจ richiesto per la rivisitazione di due unitร immobiliari nello stesso fabbricato: un appartamento al secondo piano e un piccolo mini appartamento a piano terra.
Le planimetrie di entrambe le unitร immobiliari sono in un unico file dwg, allegato sia in versione autocad 2013 che in quella 2018.
Le foto allegate hanno il riferimento alla unitร immobiliare di appartenenza.
MY FUTURE APARTMENT 2022
Lโimmobile situato a Carpi, nella provincia di Modena ( Emilia Romagna) รจ stato costruito nel 1963. I prospetti sono articolati con volumi a sbalzo e ampie finestrature. Si eleva su tre piani fuori terra, รจ proporzionato allโampia area di sedime e gode di armoniose proporzioni. Dal punto di vista tecnico il fabbricato รจ costruito in muratura portante con i piani in laterocemento resi solidali alla struttura a mezzo di cordoli in cemento armato, il tetto, anchโesso con struttura in laterocemento, ha una conformazione molto articolata.
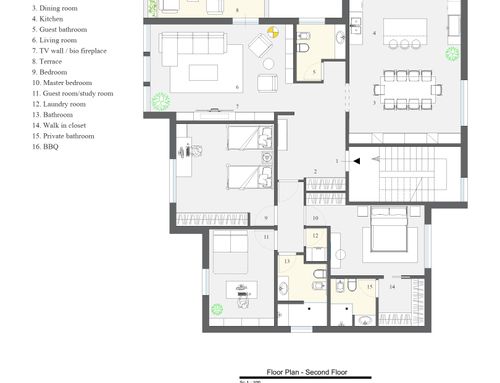
APPARTAMENTO 2ยฐ PIANO.
Per il secondo piano le altezze dei soffitti sono di 3 mt
ZONA GIORNO - obbiettivi
Vorremmo risolvere la criticitร della cucina troppo piccola e migliorare la disposizione degli spazi, abbattendo lโesistente muro non portante che separa la cucina attuale dal tinello a est e lโingresso verso nord, scambiando poi tra loro le zone.
Scambiare quindi lโattuale zona cucina/tinello con una nuova zona soggiorno e lโattuale soggiorno con la nuova zona pranzo/cucina, beneficiando dellโabbattimento del muro che ora separa lโingresso con la cucina e il tinello, creando una zona ingresso di raccordo tra ingresso - soggiorno - pranzo/cucina.
Va mantenuto obbligatorio il vincolo del posizionamento della colonna montante degli scarichi attuali (indicati nel file dwg). Lavello e lavastoviglie possono essere spostati ma i rispettivi scarichi devono raggiungere la esistente colonna verticale di scarico che non puรฒ essere spostata dato che attraversa in verticale tutto l'immobile. Utile prevedere in aggiunta nella zona cucina una posizione lavatrice di riserva.
Attualmente lavatrice e caldaia sono posizionati efficacemente in una zona sottotetto sopra allโappartamento, con areazione e altezza praticabile.
PRECISAZIONE LAVATRICE E CALDAIA
Lavatrice e caldaia attualmente sono ben posizionate e correttamente utilizzabili in una zona sottotetto servita da un lavatoio di pertinenza. Questa zona รจ posizionata direttamente sopra lโappartamento del secondo piano, si accede salendo 20 gradini dalle scale comuni.
Per la sola lavatrice, in prospettiva, pensando anche ad una etร piรน anziana, sarebbe piรน comodo prevedere il posizionamento allโinterno dellโappartamento (antibagno?), considerando che gli scarichi utilizzabili sono quelli nella zona bagno o cucina (libertร al progettista di scegliere dove).
La caldaia, giร collegata ad una centralina di comando dentro l'appartamento, potrebbe rimanere nel sottotetto dove รจ giร presente scarico fumi a tetto e impiantistica a norma di legge.
ZONA NOTTE - obbiettivi
Vorremmo rivedere la zona notte provando a creare un antibagno al bagno principale dove posizionare lavatrice e armadiatura di supporto, rivedendo funzionalmente il corridoio con gli accessi alle camere e conservando, solo se possibile, qualche armadiatura nel corridoio notte, sempre molto utile in una casa.
Per la camera matrimoniale manterremmo il bagno in camera con bidet (che condivide gli scarichi con il bagno principale) e dotandola di armadiature piรน capienti e disposizione piรน funzionale della zona bagno e armadio a muro, attigue fra loro, con pareti di separazione non piรน in muratura come esistenti ma piรน attuali e di minor spessore (cartongesso, altroโฆ)
I due bagni sono datati, vorremmo rivederli in chiave contemporanea mantenendo i bidet, con comodo accesso alla doccia. La vasca da bagno sarebbe gradita ma non vincolante, anche pensando ad una etร piรน anziana nel futuro.
BILOCALE PIANO TERRA.
OBBIETTIVI
Attualmente il bilocale a piano terra presenta una distribuzione critica degli spazi, datata e poco pratica, fortemente penalizzata da alcuni gradini da scendere per accedere al bagno.
La modifica principale dovrebbe portare ad avere lavatrice, bagno con bidet e doccia non semiinterrati, senza gradini da scendere, sfruttando eventualmente (se utile) anche il pianerottolo delimitato dalla parete curva per ampliare/sfruttare gli spazi.
La parte semiinterrata, attualmente destinata a bagno, potrร essere destinata a servizi di varia utilitร o ad intuizione del progettista.
Gli scarichi di bagno e cucina potrebbero essere mantenuti per facilitร approssimativamente nell'attuale posizione o anche ridistribuiti per miglior funzionalitร o ubicazione. La zona di giardino visibile dalle finestre del miniappartamento รจ di sua pertinenza nei lati ovest e sud.
L'ulteriore stanza al piano terra, attualmente studiolo, di pertinenza del bilocale ma separata da esso, al di lร delle scale comuni, confinante con un garage di pertinenza, puรฒ essere utilizzata al servizio del bilocale stesso, anche come possibile sede della caldaia di riscaldamento, ora situata in una zona comune della casa.
QUESTA STANZA NON Eโ COLLEGABILE AL BAGNO SOTTOINTERRATO ATTRAVERSO SCAVI O PASSAGGI.
PIANO TERRA
il bagno a piano terra รจ stato ricavato acquisendo un precedento bagno di servizio comune e semi interrato che utilizzava gli spazi sottoscale delle scale principali del fabbricato.
L'altezza del bagno, nel pianerottolo di ingresso con muro curvo prima dei 4 gradini a scendere, รจ controsoffittato con cartongesso a 240 cm che diventano in fondo nella zona della doccia attuale 2,02 cm. Le altezze sono influenzate dai piani inclinati delle scale del fabbricato.
La misura corretta della camera da letto a piano terra รจ 2.99 m x 5.05 m = 15.10 m2. NON 17 m2.
Grazie
ENGLISH VERSION
The contest is required for the revisiting of two real estate units in the same building: an apartment on the second floor and a small mini apartment on the ground floor.
The floor plans of both real estate units are in a single dwg file, attached in both the 2013 and 2018 autocad versions.
The attached photos refer to the real estate unit they belong to.
MY FUTURE APARTMENT 2022
The property located in Carpi, in the province of Modena (Emilia Romagna) was built in 1963. The elevations are articulated with cantilevered volumes and large windows. It rises on three floors above ground, is proportionate to the large area of โโthe grounds and enjoys harmonious proportions. From a technical point of view, the building is built in load-bearing masonry with the floors in brick and cement joined to the structure by means of reinforced concrete curbs, the roof, also with a brick structure, has a very articulated conformation.
2nd FLOOR APARTMENT.
For the second floor the ceiling heights are 3 meters.
LIVING AREA - objectives
We would like to solve the criticality of the kitchen that is too small and improve the layout of the spaces, knocking down the existing non-load-bearing wall that separates the current kitchen from the dining room to the east and the entrance to the north, then exchanging the zones.
Therefore, exchange the current kitchen / dining area with a new living area and the current living room with the new dining / kitchen area, benefiting from the demolition of the wall that now separates the entrance from the kitchen and the dining room, creating an entrance area connection between entrance - living room - dining room / kitchen.
The constraint of the positioning of the riser column of the current drains (indicated in the dwg file) must be kept mandatory. The sink and dishwasher can be moved but the respective drains must reach the existing vertical drain column which cannot be moved as it crosses the entire building vertically. It is useful to provide a spare washing machine position in the kitchen area.
Currently, the washing machine and boiler are efficiently positioned in an attic area above the apartment, with practicable ventilation and height.
WASHING MACHINE AND BOILER ACCURACY
The washing machine and boiler are currently well positioned and can be used correctly in an attic area served by a relevant sink. This area is located directly above the second floor apartment, accessed by climbing 20 steps from the common stairs.
For the washing machine alone, in perspective, also thinking of an older age, it would be more convenient to foresee the positioning inside the apartment (anteroom?), Considering that the drains that can be used are those in the bathroom or kitchen area (freedom for the designer to choose where).
The boiler, already connected to a control unit inside the apartment, could remain in the attic where there is already a flue gas exhaust on the roof and plant engineering according to law.
SLEEPING AREA - objectives
We would like to review the sleeping area by trying to create an anteroom to the main bathroom where to place the washing machine and support wardrobe, functionally revising the corridor with the accesses to the bedrooms and keeping, only if possible, some wardrobes in the night corridor, always very useful in a home.
For the master bedroom we would keep the ensuite bathroom with bidet (which shares the drains with the main bathroom) and equipping it with more capacious wardrobes and a more functional arrangement of the bathroom area and built-in wardrobe, adjacent to each other, with separation walls no longer in masonry as existing but more current and less thick (plasterboard, other ...)
The two bathrooms are dated, we would like to revise them in a contemporary way while keeping the bidets, with convenient access to the shower. The bathtub would be welcome but not binding, even thinking of an older age in the future.
GROUND FLOOR APARTMENT.
OBJECTIVES
Currently the two-room apartment on the ground floor has a critical distribution of spaces, dated and impractical, heavily penalized by some steps to go down to access the bathroom.
The main modification should lead to having a washing machine, bathroom with bidet and shower not semi-underground, without steps to go down, possibly exploiting (if useful) also the landing bordered by the curved wall to expand / exploit the spaces.
The semi-underground part, currently used as a bathroom, can be used for services of various utility or at the intuition of the designer.
Bathroom and kitchen drains could be kept roughly in their current location for ease or even redistributed for better functionality or location. The garden area visible from the windows of the mini-apartment belongs to him on the west and south sides.
The additional room on the ground floor, currently a study, belonging to the two-room apartment but separated from it, beyond the common stairs, bordering a garage of relevance, can be used for the service of the two-room apartment itself, also as a possible location for the boiler. heating, now located in a common area of โโthe house.
THIS ROOM CANNOT BE CONNECTED TO THE UNDERGROUND BATHROOM THROUGH EXCAVATIONS OR PASSAGES.
The bathroom on the ground floor was obtained by acquiring a previous shared and semi-underground service bathroom which used the spaces under the stairs of the main stairs of the building.
The height of the bathroom, in the entrance landing with curved wall before the 4 steps down, is suspended with plasterboard at 240 cm which become 2.02 cm at the bottom in the current shower area. The heights are influenced by the inclined planes of the building's stairs.
The correct size of the bedroom on the ground floor is 2.99 m x 5.05 m = 15.10 m2. NOT 17 m2.
Thank you
SPA
El concurso se requiere para la revisiรณn de dos unidades inmobiliarias en el mismo edificio: un apartamento en el segundo piso y un pequeรฑo mini apartamento en la planta baja.
Los planos de planta de ambas unidades inmobiliarias se encuentran en un solo archivo dwg, adjuntos en las versiones de autocad 2013 y 2018.
Las fotos adjuntas se refieren a la unidad inmobiliaria a la que pertenecen.
MI FUTURO APARTAMENTO 2022
El inmueble ubicado en Carpi, en la provincia de Mรณdena (Emilia Romagna) fue construido en 1963. Los alzados se articulan con volรบmenes en voladizo y grandes ventanales. Se eleva en tres plantas sobre rasante, es proporcionado a la gran superficie del terreno y goza de proporciones armoniosas. Desde el punto de vista tรฉcnico, el edificio estรก construido en mamposterรญa de carga con los pisos de ladrillo y cemento unidos a la estructura mediante brocales de hormigรณn armado, la cubierta, tambiรฉn con estructura de ladrillo, tiene una conformaciรณn muy articulada.
APARTAMENTO EN 2ยช PLANTA.
Para el segundo piso las alturas de los techos son de 3 metros
ZONA DE ESTAR - objetivos
Nos gustarรญa solucionar la criticidad de la cocina demasiado pequeรฑa y mejorar la distribuciรณn de los espacios, derribando el muro de carga existente que separa la cocina actual del comedor por el este y la entrada por el norte , luego intercambiando las zonas.
Por lo tanto, cambiar la cocina/comedor actual por una nueva sala de estar y la sala de estar actual por la nueva รกrea de comedor/cocina, beneficiรกndose de la demoliciรณn del muro que ahora separa la entrada de la cocina y el comedor, creando una entrada รrea de conexiรณn entre entrada - living - comedor/cocina.
La restricciรณn del posicionamiento de la columna ascendente de los drenajes actuales (indicada en el archivo dwg) debe mantenerse obligatoria. El fregadero y el lavavajillas se pueden mover, pero los desagรผes respectivos deben llegar a la columna de desagรผe vertical existente que no se puede mover ya que cruza todo el edificio verticalmente. Es รบtil proporcionar una posiciรณn de lavadora de repuesto en el รกrea de la cocina.
Actualmente, la lavadora y la caldera estรกn efectivamente ubicadas en un รกtico sobre el apartamento, con ventilaciรณn y altura practicable.
ZONA DE DORMIR - objetivos
Nos gustarรญa revisar la zona de noche intentando crear una antesala al baรฑo principal donde colocar la lavadora y el armario de apoyo, revisando funcionalmente el pasillo de acceso a los dormitorios y manteniendo, sรณlo si es posible, algunos armarios de noche. pasillo, siempre muy รบtil en un hogar.
Para el dormitorio principal mantendrรญamos el baรฑo en suite con bidรฉ (que comparte desagรผe con el baรฑo principal) y lo equiparรญamos con armarios mรกs amplios y una disposiciรณn mรกs funcional de la zona de baรฑo y armario empotrado, contiguos entre sรญ, con Muros de separaciรณn ya no en mamposterรญa como los existentes sino mรกs actuales y de menor espesor (pladur, otros...)
Los dos baรฑos estรกn anticuados, nos gustarรญa revisarlos de una manera contemporรกnea manteniendo los bidรฉs, con un cรณmodo acceso a la ducha. La baรฑera serรญa bienvenida pero no vinculante, incluso pensando en una edad mayor en el futuro.
APARTAMENTO EN PLANTA BAJA.
OBJETIVOS
Actualmente el apartamento de dos habitaciones en planta baja tiene una distribuciรณn de espacios crรญtica, anticuada y poco prรกctica, muy penalizada por unos escalones para bajar para acceder al baรฑo.
La modificaciรณn principal deberรญa llevar a tener lavadora, baรฑo con bidรฉ y ducha no semienterrada, sin escalones para bajar, posiblemente aprovechando (si es รบtil) tambiรฉn el rellano bordeado por el muro curvo para ampliar/aprovechar los espacios.
La parte semisubterrรกnea, actualmente utilizada como baรฑo, puede destinarse a servicios de diversa utilidad oa la intuiciรณn del proyectista.
Los desagรผes de baรฑos y cocinas se pueden mantener mรกs o menos en su ubicaciรณn actual para facilitar o incluso redistribuir para una mejor funcionalidad o ubicaciรณn. El รกrea del jardรญn visible desde las ventanas del mini-apartamento le pertenece en los lados oeste y sur.
La habitaciรณn adicional en la planta baja, actualmente un estudio, perteneciente al apartamento de dos habitaciones pero separado de รฉl, mรกs allรก de las escaleras comunes, lindando con un garaje de relevancia, se puede utilizar para el servicio del propio apartamento de dos habitaciones, tambiรฉn como posible ubicaciรณn de la caldera de calefacciรณn, ahora ubicada en una zona comรบn de la vivienda.
ESTA HABITACIรN NO SE PUEDE CONECTAR AL BAรO SUBTERRรNEO A TRAVรS DE EXCAVACIONES O PASAJES.
PLANTA BAJA
el baรฑo de la planta baja se obtuvo mediante la adquisiciรณn de un baรฑo de servicio compartido y semisรณtano anterior que aprovechaba los espacios bajo las escaleras de la escalera principal del edificio.
La altura del baรฑo, en el rellano de entrada con pared curva antes de los 4 peldaรฑos de bajada, se suspende con placa de yeso a 240 cm que se convierte en 2,02 cm en la parte inferior de la actual zona de ducha. Las alturas estรกn influenciadas por los planos inclinados de las escaleras del edificio.
El tamaรฑo correcto del dormitorio en la planta baja es de 2,99 m x 5,05 m = 15,10 m2. NO 17 m2.
Gracias