
Cagliari, Metropolitan City of Cagliari, Italy
Residenziale - Appartamento
Descrizione
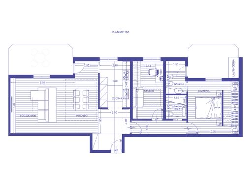
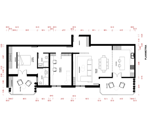
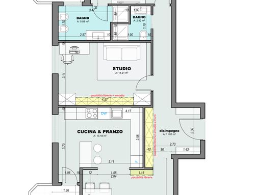
Salve a tutti. Ho un appartamento di 100 mq a Cagliari in zona residenziale in condominio. L'appartamento ha una unica esposizione a sud. Quindi tutte le finestre sono sulla stessa facciata sud. L'appartamento risulta molto luminoso. Si tratta di un trivano al primo piano. Avrei necessità di realizzare una zona living open space ma con una cucina non completamente open. Ho necessità di avere uno studio che all'occorrenza possa ospitare una o due persone al massimo. Al momento c'è un solo bagno, ma ho necessità di ricavarne due: uno padronale, con accesso direttamente dalla camera da letto matrimoniale e uno per gli ospiti. Pertanto il bagno per ospiti sarà senza bidet. Nella camera matrimoniale mi piacerebbe avere la cabina armadio. Nella terrazza della camera matrimoniale vorrei sistemare un ripostiglio in legno e fare la zona lavanderia possibilmente non visibile dall'esterno. Il mio stile preferito è il moderno-minimalista. La pavimentazione che amo di più è il parquet. Non amo le tinte forti se non in piccole dosi. Ad ogni modo ho dei mobili e arredi che vorrei utilizzare (tavolo bianco con gambe in alluminio, cassettone bianco con pomelli in alluminio (profondità 55 cm/larghezza 99 cm.), sedie similpelle grigie, divano rosso, comodini e tavolini Kartell, due casse altoparlanti). Ho bisogno di ricavare qualche armadio a muro per ricavare delle nicchie. Ho necessità di ricavare delle librerie in vari punti della casa ad esempio nell'ingresso, in soggiorno e nello studio. Grazie per l'aiuto!
Hi everybody! I’ve got a100 metres square apartment in a condo in Cagliari. The apartment has a southern exposure that provides lots of natural light, but, unfortunately, the windows are all on one side too. It’s a three-room apartment plus kitchen and a bathroom situated on the first floor with two large balconies. I’d like an open space living area where to place a sofa, table and chairs and some furniture for the TV. I don’t like closed kitchens, but I fear that an open kitchen is not easy to manage, I’d rather go for a semi-open kitchen. The second bedroom is meant to be used for inviting guests for very short periods of time but mainly used to work with my computer. There is one bathroom in the house, and I need to transform it into two small bathrooms, one of them with direct access to the master bedroom, which is the one with the balcony, while the other bathroom would be for the guests. In order to save space, the guest’s bathroom will have no bidet. I would like to have a walk-in closet in the master’s bedroom. I’d like to have a big wooden closet on the balcony next to the master’s room and I’d like to arrange a laundry on the balcony just out of the bathroom’s door and keep it hidden as much as possible. I need closets or a second wardrobe, and bookcases in the hall, the guest room and the living room. Wood flooring is my favourite, but I’m not keen on paying too much money as it is very expensive. My favourite style is something between modern, contemporary and minimalist. I still have some furniture that I like very much and I’d like to use in my new flat: a red sofa, two big speakers, a white table with aluminium legs, grey imitation leather chairs, a white chest of drawers, two Kartell bedside tables, plastic chandeliers and lamps of different colours. I took a picture of them that you can find in the "reference pictures" section. Thank you for reading and helping me with this project!