
Palermo, PA, Italy
Residenziale - Appartamento
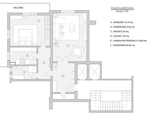
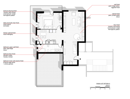
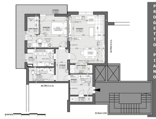
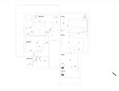
Descrizione
ENG:
Hello everyone ! I have an apartment of about 100 m2 that I want to renovate. I'm considering renovating the entire apartment which dates back to the 60s, starting with the bathroom. The changes I would like to make would serve to enhance the house in an aesthetic and functional way to make it attractive to demanding temporary tourists. Furthermore, the changes will concern the external and internal fixtures, also with the aim of improving brightness as it is exposed on 2 sides to light points during the day.
SPA:
Hola a todos ! Tengo un piso de unos 100 m2 que quiero reformar. Estoy pensando en renovar todo el apartamento que data de los años 60, empezando por el baño. Los cambios que me gustaría hacer servirían para realzar la casa de forma estética y funcional para hacerla atractiva para los turistas temporales exigentes. Además, los cambios afectarán a las luminarias exteriores e interiores, también con el objetivo de mejorar la luminosidad, ya que durante el día está expuesta por dos lados a puntos de luz.
ITA:
Salve a tutti ! ho un appartamento di circa 100 mq che voglio rinnovare. Sto valutando di ristrutturare tutto l'appartamento che risale agli anni 60 iniziando dal bagno. Le modifiche che vorrei appartare servirebbero a valorizzare in modo estetico e funzionale la casa per renderla appetibile a turisti temporanei esigenti. Inoltre le modifiche riguarderanno gli infissi esterni e interni, al fine anche di migliorare la luminosità in quanto esposta su 2 lati a punti luce durante il giorno.