
67037 Roccaraso, Province of L'Aquila, Italy
Residenziale - Appartamento
Descrizione
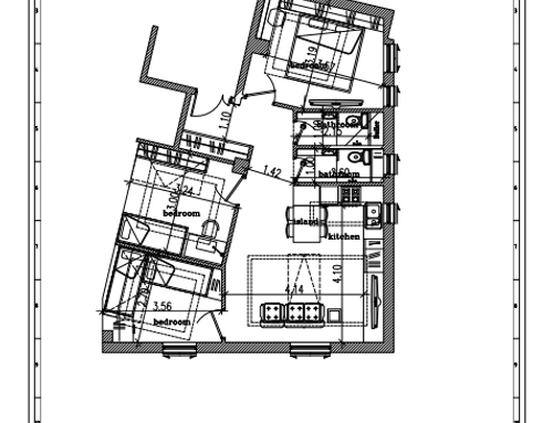
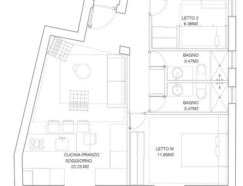
Vorrei ristrutturare questo appartamento di circa 76 mq. in montagna che utilizzeremo sia in inverno con la neve che in estate. Vorrei poter sfruttare al massimo gli spazi interni in modo strategico, modificando la disposizione interna di muri e stanze (dove possibile, tenendo in considerazione i muri portanti). Vorrei ricavarne 3 stanze da letto, 2 bagni, un open space soggiorno-cucina e un ripostiglio.
-Stanze da letto: 1 matrimoniale con un piccolo armadio, 1 camera con letto a castello e 1 con letto a castello e "letti armadio" (nell'eventualità di una necessità di altri posti letto) entrambe devono essere dotate di un piccolo armadio, e almeno in una delle due camere necessiterei di una scrivania. Desidererei avere un totale di almeno 10 posti letto in tutto l'appartamento, sfruttando anche la zona living inserendo un divano che funga anche da letto in caso di necessità.
-Bagni: in entrambi i bagni vorrei una doccia, da lasciare in uno dei due la caldaia (coprendola in qualche modo se possibile).
-Open space: ampio soggiorno-cucina luminoso e confortevole, con uno stile moderno ma allo stesso tempo accogliente per una casa in montagna, cucina con isola/penisola, ampio divano con tv. Preferirei un infisso interno con un unico vetro che porta sul balcone (vedi esempio da foto).
-Ripostiglio: da valutare se occorre farlo come una piccola stanza e/o come un soppalco ripostiglio (in modo da non occupare ulteriori metri quadrati), dove riporre tutto l'occorrente per la neve (scii, giubbotti pesanti, tute da scii), e cose domestiche (elettrodomestici), il soppalco solo nel corridoio e non in tutta la casa.
Per il pavimento preferirei avere il grès porcellanato in tutta la casa.
I termosifoni vorrei coprirli con dei copri termosifoni.
Dov’è possibile vorrei avere delle porte scorrevoli per non occupare troppo spazio.
Le porte e le finestre da esterno sono dotate sia di porte esterne che di porte interne.
Vorrei un budget per le tavole arredi e porte medio.
Ho inserito anche il file dwg, per facilitarvi nell'elaborazione del progetto.
Grazie e buon lavoro!
I would like to renovate this apartment of about 76 square meters. in the mountains that we will use both in winter with snow and in summer. I would like to be able to make the most of the internal spaces in a strategic way, modifying the internal layout of walls and rooms (where possible, taking into account the load-bearing walls). I would like to make 3 bedrooms, 2 bathrooms, an open space living room-kitchen and a closet.
-Bedrooms: 1 double with a small wardrobe, 1 bedroom with bunk bed and 1 with bunk bed and "wardrobe beds" (in the event of a need for other beds) both must be equipped with a small wardrobe, and at least in one of the two rooms I would need a desk. I would like to have a total of at least 10 beds in the whole apartment, also taking advantage of the living area by inserting a sofa that also acts as a bed in case of need.
-Bathrooms: in both bathrooms I would like a shower, to leave the boiler in one of them (covering it in some way if possible).
-Open space: large bright and comfortable living room-kitchen, with a modern but at the same time welcoming style for a house in the mountains, kitchen with island / peninsula, large sofa with TV. I would prefer an internal frame with a single glass that leads to the balcony (see example in the photo).
-Storage: to be evaluated if it is necessary to do it as a small room and / or as a storage loft (so as not to occupy additional square meters), where you can store everything you need for the snow (skis, heavy jackets, ski suits), and household things (household appliances), the loft only in the corridor and not in the whole house.
For the floor I would prefer to have porcelain stoneware throughout the house.
I would like to cover the radiators with radiator covers.
Where possible I would like to have sliding doors so as not to take up too much space.
The exterior doors and windows are equipped with both external and internal doors.
I would like a budget for the furniture and doors medium tables.
I have also included the dwg file, to facilitate you in the development of the project.
Thanks and good job!
Me gustaría renovar este piso de unos 76 metros cuadrados. en la montaña que usaremos tanto en invierno con nieve como en verano. Me gustaría poder aprovechar los espacios interiores de forma estratégica, modificando la distribución interior de muros y habitaciones (en lo posible, teniendo en cuenta los muros de carga). Me gustaría hacer 3 recámaras, 2 baños, sala-cocina diáfana y closet.
-Dormitorios: 1 doble con pequeño armario, 1 dormitorio con litera y 1 con litera y "armario camas" (en caso de necesitar otras camas) ambos deben estar equipados con un pequeño armario, y al menos en uno. de las dos habitaciones necesitaría un escritorio. Me gustaría tener un total de al menos 10 camas en todo el apartamento, aprovechando también la zona de estar insertando un sofá que también actúa como cama en caso de necesidad.
-Baños: en ambos baños quisiera ducha, para dejar la caldera en uno de ellos (cubriéndolo de alguna forma si es posible).
-Espacio abierto: amplio salón-cocina luminoso y confortable, con un estilo moderno pero a la vez acogedor para una casa en la montaña, cocina con isla / península, amplio sofá con TV. Preferiría un marco interno con un solo vidrio que conduzca al balcón (ver ejemplo en la foto).
-Almacenamiento: a evaluar si es necesario hacerlo como una habitación pequeña y / o como un loft de almacenamiento (para no ocupar metros cuadrados adicionales), donde se puede guardar todo lo necesario para la nieve (esquís, chaquetas pesadas , trajes de esquí), y enseres domésticos (electrodomésticos), el desván solo en el pasillo y no en toda la casa.
Para el suelo preferiría tener gres porcelánico en toda la casa.
Me gustaría cubrir los radiadores con cubiertas de radiador.
Siempre que sea posible, me gustaría tener puertas correderas para no ocupar demasiado espacio.
Las puertas y ventanas exteriores están equipadas con puertas exteriores e interiores.
Quisiera un presupuesto para los muebles y puertas de mesas medianas.
También he incluido el archivo dwg, para facilitaros el desarrollo del proyecto.
¡Gracias y buen trabajo!