
Limone Piemonte, CN, Italia
Commerciale - Retail
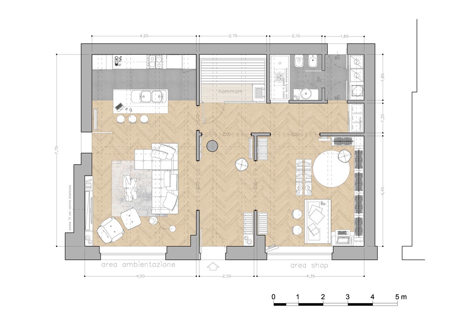
La nostra proposta realizza uno spazio grazioso in stile chalet moderno, per un craftman shop/atelier d'artigianato dai toni rustici ma non troppo, luminoso e profumato di legno e montagna.
Lo spazio viene suddiviso, tramite la creazione di nuovi archi, nelle sue funzioni principali: spazio shop, spazio vetrina con ambientazione living-cucina, spazio hammam e bagno, spazio servizio con armadio lavanderia e armadio ripostiglio.
Gli archi e le travi, lasciate a vista, contribuiscono a creare la scenografia d'insieme, con vista sull'hammam e sul bagno rivestito in legno e sulla vasca in pietra, posizionata dietro una piccola vetrata vedo-non vedo.
Il camino รจ rivestito da lastre di pietra locale; pietra per i top di cucina ed isola, abbinato a legno naturale come quello degli scaffali e del banco dell'area shop.