
Milan, Metropolitan City of Milan, Italy
Residenziale - Appartamento
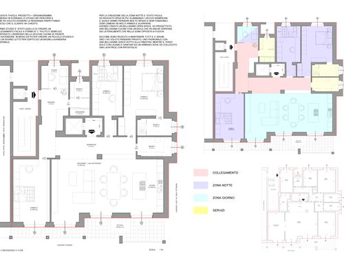
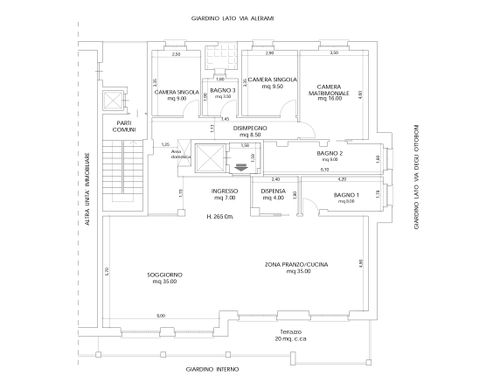
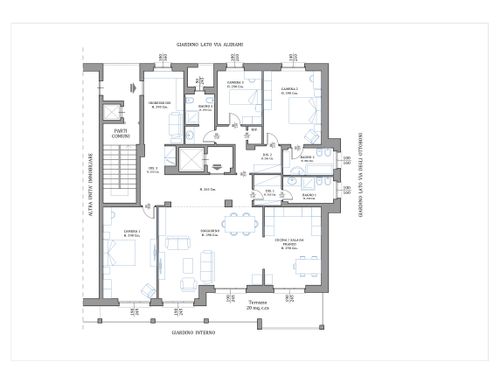
Descrizione
If you want the description in Eglish or Spanish read further!!
La richiesta principale del progetto e' di rinnovare l'immobile seguendo uno spirito maggiormente aggiornato agli standard odierni.
Limitazioni che non si possono toccare sono le seguenti:
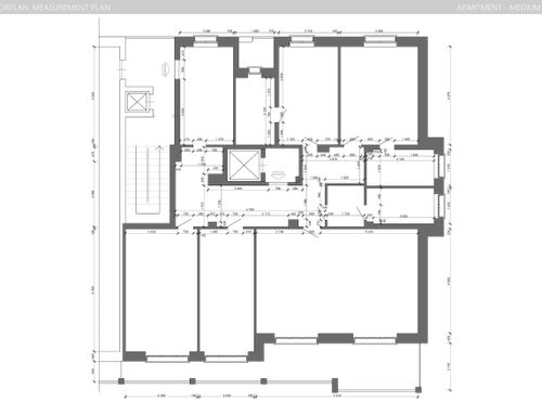
Gli scarichi sono e devono rimanere li dove sono ora (Se li volete spostare, pensateci mooooolto bene!!!)
La porta della cucina si puo' spostare al massimo fino a fronte l'ascensore. Non oltre.
Naturalmente i muri attorno all'ascenscore centrale non si posso toccare.
Le richieste sono:
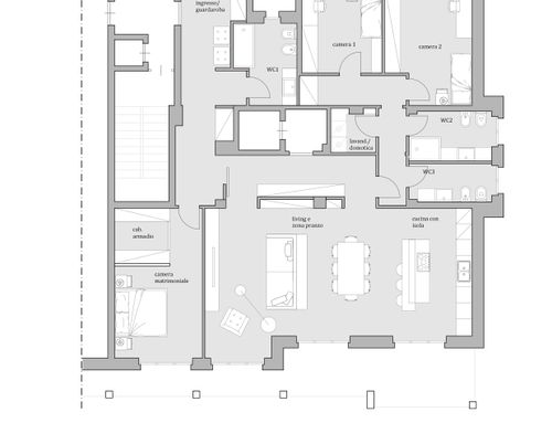
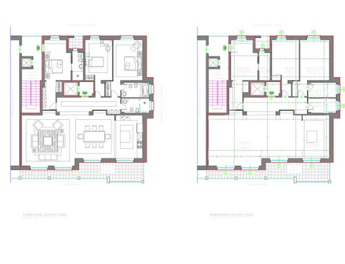
Idealmente la cucina andrebbe spostata da dove si trova ora a quelle che viene indicata come camera 1 al fine di poter utilizzare il terrazzo
Idealmente si puo' collegare attraverso il muro la nuova con il soggiorno facendo un'ampia finestra
Per gli scarichi della cucina naturalmente si utilizzerebbero quelli presenti nel bagno 1
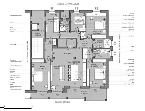
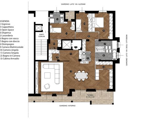
Devono rimanere 3 (o anche ricavare una 4a) camera in considerazione di una famiglia di 2 adulti + 2 figli ed eventuale stanza aggiuntiva.
Devono rimanere 3 bagni di cui almeno due padronali (uno dei bagni deve essere con la vasca, l'altro con la doccia min 80x110)
Non sono certo di poter apportare modifiche al piccolo terrazzino tra la attuale cucina, camera 3 e bagno 3. (Devo capire se viene considerato comunque come modifica di facciata)
In generale tutti i muri si dovrebbero riuscire a toccare, tranne alcuni di cui non sono sicuro al 100% e per i quali andranno fatti dei controlli ulteriori. Nel dubbio potete scrivermi tranquillamente.
Molta attenzione verra' prestata al dettagli del progetto e come verra' giustificato ogni modifica strutturale (impatto economico)
La casa verra' anche concepita con un occhio verso la domotica quindi sarebbe utile trovare uno spazio dove organizzare la parte "intelligente" della casa (centro stella). Per questioni di connessione all'impianto condominiale esistente meglio se vicino all'uscita dell'ascensore.
IN ENGLISH
The main request of the project is to renovate the property following a spirit more updated to today's standards.
Limitations that cannot be touched are as follows:
The drains are and must remain where they are now (If you want to move them, think sooooo well !!!)
The door in the actual kitchen can be moved max to the front of the elevator. Not more than that!
Of course, the walls around the central lift cannot be touched.
The requests are:
Ideally the kitchen should be moved from where it is now to what is referred to as bedroom 1 in order to use the terrace.
Ideally you can connect the new kitchen with the living room through the wall by making a large window
Of course the drains in bathroom 1 would be shared with the new kitchen.
3 (or even get a 4th) room must remain in consideration of a family of 2 adults + 2 children and an additional room (guests, nanny, ...) .
There must be 3 bathrooms, at least two of which are master (one must be with a bathtub, the other with a shower min 80x110 cm)
I'm not sure I can make changes to the small terrace between the current kitchen, bedroom 3 and bathroom 3. (I have to understand if it is considered as a facade modification anyway for the italian law)
In general, all walls should be able to be moved, except some that I am not 100% sure of and for which further checks will be made.
If in doubt you can write me safely.
Much attention will be paid to the details of the project and how each structural change will be justified (economic impact)
The house will also be designed with an eye towards home automation, so it would be useful to find a space to organize the "intelligent" part of the house (star center). For reasons of connection to the existing condominium system, it is better if close to the elevator exit.
SPANISH VERS:
El principal pedido del proyecto es renovar la propiedad siguiendo un espíritu más actualizado a los estándares actuales.
Las limitaciones que no se pueden tocar son las siguientes:
Los desagües están y deben permanecer donde están ahora (si quieres moverlos, ¡piénsalo muy bien!)
La puerta de la cocina se puede mover lo más posible hacia la parte delantera del ascensor. No más de eso.
Por supuesto, las paredes alrededor del ascensor central no se pueden tocar.
Las solicitudes son:
Lo ideal es trasladar la cocina de donde está ahora a lo que se conoce como dormitorio 1 para poder utilizar la terraza.
Lo ideal es conectar el nuevo con la sala de estar a través de la pared haciendo una ventana grande.
Naturalmente, los del baño 1 se usarían para los desagües de la cocina.
Deben quedar 3 (o incluso obtener una cuarta) habitaciones en consideración de una familia de 2 adultos + 2 niños y cualquier habitación adicional.
Deben quedar 3 baños, al menos dos de los cuales son principales (uno de los baños debe ser con bañera, el otro con ducha min 80x110)
No estoy seguro de poder hacer cambios en la pequeña terraza entre la cocina actual, el dormitorio 3 y el baño 3. (De todos modos, tengo que entender si se considera una modificación de la fachada).
En general, todas las paredes deben poder tocarse, excepto algunas de las que no estoy 100% seguro y para las que se realizarán más comprobaciones. En caso de duda puede escribirme tranquilamente.
Se prestará mucha atención a los detalles del proyecto y cómo se justificará cada cambio estructural (impacto económico)
La casa también se diseñará con miras a la domótica, por lo que sería útil encontrar un espacio para organizar la parte "inteligente" de la casa (centro estrella). Por razones de conexión al sistema de condominios existente, es mejor si está cerca de la salida del ascensor.