Bologna, Emilia-Romagna, Italy
Residenziale - Appartamento
Descrizione
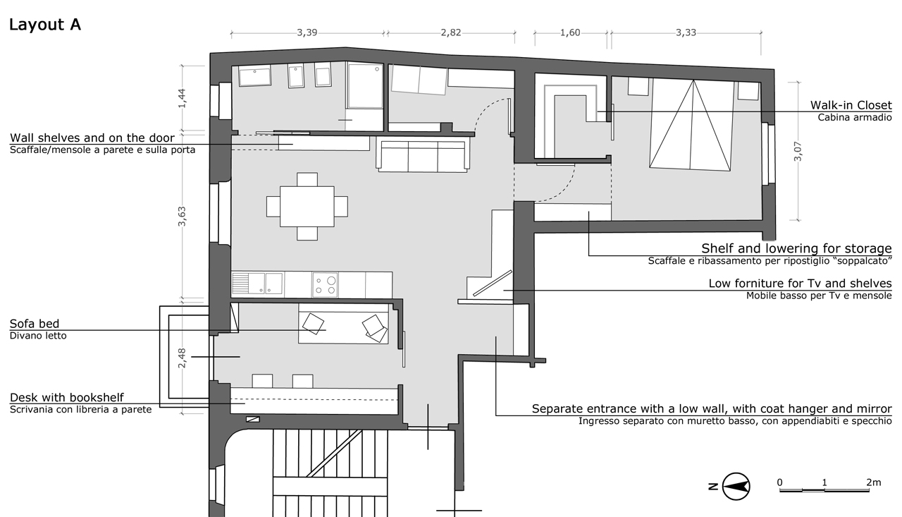
Hi! We are a 33-year old couple. We're going to buy our first flat and so we're very excited (we're looking for our dream-house...). We'd need two bedrooms: a master room and a single room (could be the actual kitchen). Then we'd enjoy a big living+kitchen. Then we have two bathrooms, but maybe 1 could be enough for us (so the other one could become an utility room?). Our budget is not so high (furniture will be IKEA-like), but we really hope you can help us out with this... Thanks!!! Ciao. Siamo una coppia di 33 anni di Bologna. Abbiamo comprato il nostro primo appartamento e quindi siamo molto eccitati (stiamo immaginando la nostra casa dei sogni). Avremmo bisogn di almeno due camere: una matrimoniale e una singola (potrebbe essere l'attuale cucina? spazio alla vostra creatività). Poi ci piacerebbe un grande soggiorno+angolo cottura. Poi, attualmente noi abbiamo due bagne, ma forse può bastare (l'altro potrebbe diventare un ripostiglio?). Il nostro budget non è molto alto (i mobili tipo-Ikea), ma speriamo davvero che potete aiutarci. Grazie mille!!!
Risorse