
48018 Faenza, Province of Ravenna, Italy
Residenziale - Appartamento
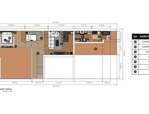
Descrizione
ENG
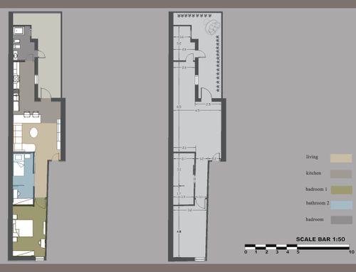
The apartment is narrow and long, with windows only at both ends. It has a very large bedroom, an entrance-living room that is too large, a bathroom that is too small. I would like to create a second bedroom and create a "standard" bathroom with shower by repositioning the kitchen.
*NOTE about cadastral plan: in the bedroom there is a large window and the wall between living room and first chamber has been replaced by a large arch. Both changes not marked in the floor plan (look at the photos)
* Style: open to solutions both in minimal/industrial style (to give more brightness) and ethnic style, therefore accepting the little lighting in the apartment and working on the light points
ES
El apartamento es estrecho y largo, con ventanas sólo en ambos extremos. Tiene un dormitorio muy grande, un salón-entrada demasiado grande, un baño demasiado pequeño. Me gustaría crear un segundo dormitorio y crear un baño "estándar" con ducha reposicionando la cocina.
* NOTA sobre plano catastral: en el dormitorio hay un gran ventanal y la pared entre el salón y la primera cámara ha sido sustituida por un gran arco. Ambos cambios no están marcados en el plano de planta (mira las fotos)
* Estilo: abierto a soluciones tanto en estilo minimalista/industrial (para dar más luminosidad) como en estilo étnico, aceptando así la poca iluminación del apartamento y trabajando en los puntos de luz.
ITA
L'appartamento è stretto e lungo, con finestre solo alle due estremità. Ha una stanza da letto molto grande, un ingresso-soggiorno troppo grande, un bagno troppo piccolo. Vorrei ricavare una seconda stanza da letto e creare un bagno "standard" con doccia riposizionando la cucina.
*NOTA sulla planimetria catastale: nella camera da letto è presente un'ampia finestra e la parete tra soggiorno e prima camera è stata sostituita da un grande arco. Entrambe le modifiche non segnalate in planimetria (guardare le foto)
* Style: aperto a soluzioni sia in stile minimal/industrial (per dare più luminosità) sia in stile etnico, quindi accettando la poca illuminazione dell'appartamento e lavorando sui punti luce