
80035 Nola, Metropolitan City of Naples, Italy
Residenziale - Appartamento
Descrizione
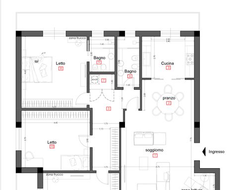
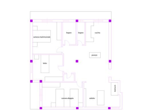
Salve, ho un appartamento di circa 130 metri quadri ,vorrei rimodernarlo e riorganizzare gli spazi interni. Mi piacerebbe avere un open space con cucina e soggiorno,un ambiente ampio dove trascorrere la maggior parte del tempo,con un angolo relax con divani e tv. Mi piacerebbe un ambiente luminoso, con colori chiari.Per le nostre necessità,vorrei ricavare dal salone che è piuttosto grande due camere: una camera da letto ed uno studio. Inoltre,come si evince dalla pianta, la mia casa ha uno spazio centrale che da sulle camere ,abbastanza grande che mi piacerebbe sfruttare per allargare l'open space.
ENG
Hi, I have an apartment of about 130 square meters, I would like to modernize it and reorganize the interior spaces. I would like to have an open space with kitchen and living room, a large space where to spend most of the time, with a relaxation corner with sofas and TV. I would like a bright environment, with light colors. For our needs, I would like to obtain two rooms from the living room which is rather large: a bedroom and a study. Furthermore, as can be seen from the plan, my house has a central space that overlooks the bedrooms, large enough that I would like to use to enlarge the open space.
SPA
Hola, tengo un piso de unos 130 metros cuadrados, me gustaría modernizarlo y reorganizar los espacios interiores. Me gustaría tener un espacio diáfano con cocina y sala de estar, un espacio amplio donde pasar la mayor parte del tiempo, con un rincón de relajación con sofás y TV. Me gustaría un ambiente luminoso, con colores claros, para nuestras necesidades me gustaría obtener dos habitaciones del salón que es bastante grande: un dormitorio y un estudio. Además, como se puede ver en el plano, mi casa tiene un espacio central que da a los dormitorios, lo suficientemente grande por lo cual me gustaría ampliar el espacio abierto.