82037 Telese Terme BN, Italy
Residenziale - Appartamento
Descrizione
Hi everyone,
We have an apartment of about 100 square meters that we would like to renovate almost completely: we love the Scandinavian style or similar.
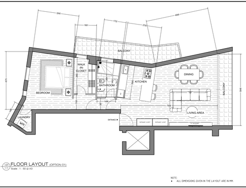
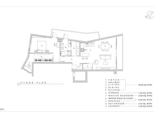
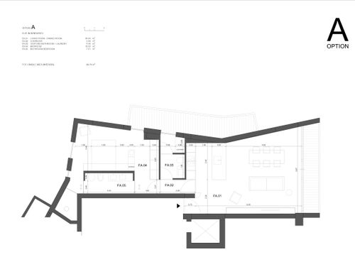
The strong point of this apartment is the large window that frames the living room / kitchen. At the moment we have a second bedroom used as a "walk-in closet" that we would like to modify to give more space to an open space living room / kitchen. In particular, the 2 bathrooms must be COMPLETELY renovated. The bedroom also needs to be reviewed. To recover space, we are currently evaluating closing the second balcony to transform it into the laundry area.
Salve a tutti,
Abbiamo un appartamento di circa 100mq che vorremmo ristrutturare quasi completamente: amiamo lo stile scandinavo o similari.
Il punto di forza di questo appartamento è la grande vetrata che incornicia il soggiorno/cucina. Al momento disponiamo di una seconda camera adibita a "cabina armadio" che vorremmo modificare per dare maggiore spazio a un soggiorno/cucina open space. In particolare i 2 bagni devono essere COMPLETAMENTE ristrutturati. Anche la camera da letto è da rivedere. Per recuperare spazio al momento stiamo valutando di chiudere il secondo balcone per trasformarlo nella zona lavanderia.
Hola a todos,
Tenemos un piso de unos 100m2 que nos gustaría reformar casi por completo: nos encanta el estilo escandinavo o similar.
El punto fuerte de este apartamento es el gran ventanal que enmarca el salón/cocina. Actualmente tenemos un segundo dormitorio que se utiliza como "vestidor" que nos gustaría modificar para dar más espacio a una sala de estar/cocina de planta abierta. En concreto hay que reformar COMPLETAMENTE los 2 baños. El dormitorio también necesita ser revisado. Para recuperar espacio actualmente estamos considerando cerrar el segundo balcón para transformarlo en la zona de lavado.