
Rome, Metropolitan City of Rome Capital, Italy
Residenziale - Appartamento
Descrizione
ENG:
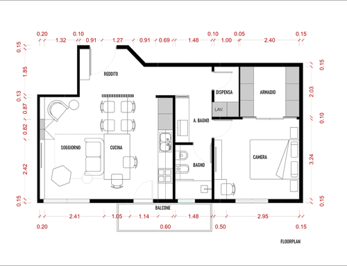
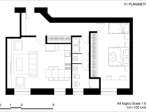
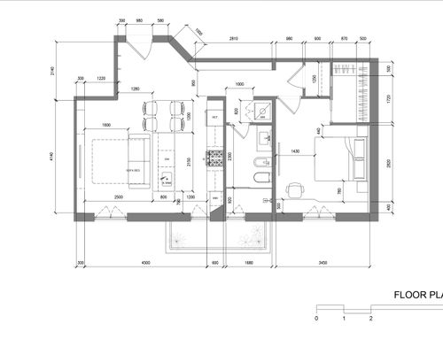
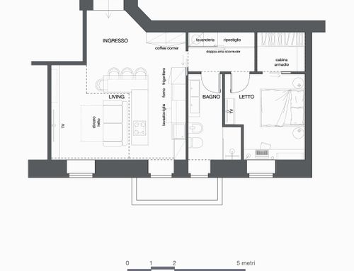
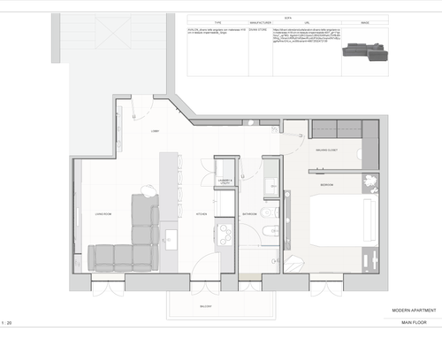
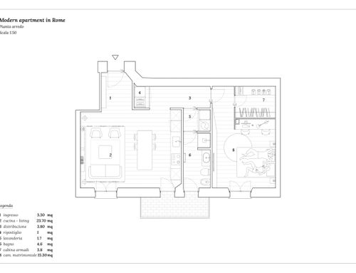
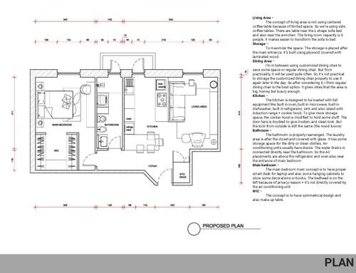
Hi everyone, I would like to renovate an apartment of around 60m2 and use it for hospitality purposes with the possibility of being able to live in it personally if it is available. The property is located in the Ostiense district a few steps from the Piramide Cestia in a building from the late 1930s. The division of the rooms (see floor plan) should be modified by creating a large open space between the entrance, the first bedroom and the kitchen, keeping the sleeping area separate. I do not intend to remove the current flooring, except where the renovation of the systems requires it, but rather to cover it with a modular floor made of large planks of light and contemporary color but above all resistant to the continuous walking of guests as well as easy to maintain. This house can accommodate a maximum of 4 people: two in the double bedroom and two in the open space with a sofa bed.
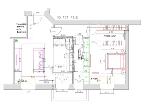
The wall that divides the first room from the kitchen will have to be demolished and the meal preparation and consumption area will have to be reorganized, inserting a peninsula/island which will function as a dining and breakfast table. We envisage a kitchen complete with all appliances (dishwasher, microwave oven, induction hob and fridge) and we would also like to demolish the current arch inside the kitchen. The bathroom must be equipped with a comfortable shower, aligned sanitary ware and sink with mirror and create a small laundry room. The good-sized bedroom has a double bed (1.60x1.90) complete with 2 bedside tables, a walk-in wardrobe and, where possible, also a smart work station. The entire house must be air-conditioned hot-cold by channeling the condensation water from the air conditioning motor into the system drain.
Two critical aspects currently appear to be the French windows in the kitchen and bathroom which despite their generous height (about 2.7m) are very narrow (about 0.6m) for entry and exit to the outside and the need to design a storage room (even 1x1m) to store tools useful for cleaning the house (broom, bucket, ladder, etc.) It is possible to widen the kitchen French window, i.e. have an opening of 60 to 70.
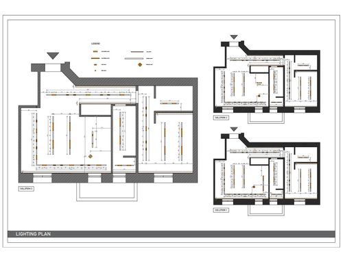
The entire apartment currently has a false ceiling and has a height of 2.9m but still has around 35m2 to be exploited which divides the current ceiling from the attic. As in the reference images we would like a false ceiling game. Above the apartment there is a terrace, we expect excellent hot-cold insulation.
We like light colors and a modern-contemporary style.
SPA:
Hola a todos, Me gustaría reformar un piso de unos 60m2 y destinarlo a hostelería con posibilidad de poder vivir en él personalmente si estuviera disponible. La propiedad está ubicada en el barrio Ostiense a pocos pasos de la Pirámide Cestia en un edificio de finales de los años 30. Se debe modificar la división de las habitaciones (ver plano) creando un gran espacio abierto entre la entrada, el primer dormitorio y la cocina, manteniendo separada la zona de dormitorio. No pretendo retirar el pavimento actual, salvo cuando la renovación de los sistemas lo requiera, sino revestirlo con un suelo modular formado por grandes lamas de colores claros y contemporáneos pero sobre todo resistentes al continuo paso de los invitados. tan fácil de mantener. Esta casa tiene capacidad para un máximo de 4 personas: dos en la habitación doble y dos en el espacio abierto con sofá cama.
Se deberá derribar el muro que divide la primera estancia de la cocina y se deberá reorganizar la zona de preparación y consumo de comidas, insertando una península/isla que funcionará como mesa de comedor y desayuno. Prevemos una cocina completa con todos los electrodomésticos (lavavajillas, microondas, placa de inducción y frigorífico) y también nos gustaría derribar el arco actual del interior de la cocina. El baño debe estar equipado con una cómoda ducha, sanitarios alineados y lavabo con espejo y crear un pequeño lavadero. El dormitorio, de buen tamaño, tiene una cama doble (1,60x1,90) con 2 mesitas de noche, un vestidor y, cuando es posible, también un elegante puesto de trabajo. Toda la casa debe estar climatizada frío-calor canalizando el agua de condensación del motor del aire acondicionado hacia el desagüe del sistema.
Dos aspectos críticos actualmente parecen ser las cristaleras de la cocina y el baño que, a pesar de su generosa altura (unos 2,7 m), son muy estrechas (unos 0,6 m) para la entrada y salida al exterior y la necesidad de diseñar un trastero (incluso 1x1m) para guardar herramientas útiles para la limpieza de la casa (escoba, cubo, escalera, etc.) Es posible ampliar la ventana francesa de la cocina, es decir, tener una apertura de 60 a 70.
Todo el apartamento actualmente tiene falso techo y tiene una altura de 2,9m pero aún le quedan unos 35m2 por explotar que dividen el techo actual del ático. Como en las imágenes de referencia nos gustaría un juego de falso techo. Encima del apartamento hay una terraza, esperamos un excelente aislamiento frío-calor.
Nos gustan los colores claros y un estilo moderno-contemporáneo.
ITA:
Salve a tutti, vorrei ristrutturare un appartamento di circa 60mq e adibirlo a uso ricettivo con la possibilità di poterlo anche vivere personalmente qualora fosse disponibile. L'immobile è collocato nel quartiere Ostiense a pochi passi dalla Piramide Cestia in un edificio di fine anni '30. La suddivisione degli ambienti (vedi planimetria) dovrebbe essere modificata creando tra ingresso, la prima camera e la cucina un ampio open space mantenendo separata la zona notte. Non intendo rimuovere l'attuale pavimentazione, se non laddove il rifacimento degli impianti lo richiederà, bensì coprirla con un pavimento componibile a grandi listoni di colore chiaro e contemporaneo ma soprattutto resistenti al camminamento continuo degli ospiti nonchè di facile manutenzione. Questa abitazione potrà accogliere massimo 4 persone: due nella camera da letto matrimoniale e due nell'open space con un divano letto.
Dovrà essere abbattuta la parete che divide la prima stanza dalla cucina e riorganizzata la zona preparazione e consumazione dei pasti, inserendo una penisola/isola che avrà la funziona di tavolo da pranzo e colazione. Prevediamo una cucina completa di tutti gli elettrodomestici (lavastoviglie, forno a microonde, piano cottura a induzione e frigo) e inoltre vorremmo abbattere l'arco attuale all'interno della cucina. Il bagno dovrà essere attrezzato con una comoda doccia, sanitari allineati e lavabo con specchio e ricavare una piccola lavanderia. La camera da letto di buone dimensioni prevede un letto matrimoniale (1,60x1,90) completo di 2 comodini, una cabina armadio inserendo , laddove fosse possibile, anche una postazione per il lavoro in smart. L'intera abitazione deve essere climatizzata caldo-freddo convogliando nello scarico degli impianti l'acqua di condensa del motore dei climatizzatori.
Due aspetti critici attualmente risultano le porte-finestre di cucina e bagno che pur nella loro generosa altezza (circa 2,7m) sono molto strette (circa 0,6m) per l'entrata e uscita all'esterno e la necessità di progettare un ripostiglio (anche 1x1m) per riporre gli attrezzi utili alla pulizia della casa (scopa,secchio,scala ecc.). E' possibile allargare la porta finestra della cucina, avere cioè un’apertura da 60 a 70.
L'intero appartamento attualmente è controsoffittato ed ha un altezza di 2,9m ma da sfruttare ancora circa 35mq che dividono il l'attuale soffitto dal solaio. Come nelle immagini di riferimento ci piacerebbe un gioco di controsoffittatura. Sopra l'appartamento è presente una terrazza, prevediamo un'ottima coibentazione caldo-freddo.
Ci piacciono colori chiari ed uno stile moderno-contemporaneo.