
52100 Arezzo, Province of Arezzo, Italy
Residenziale - Appartamento
Descrizione
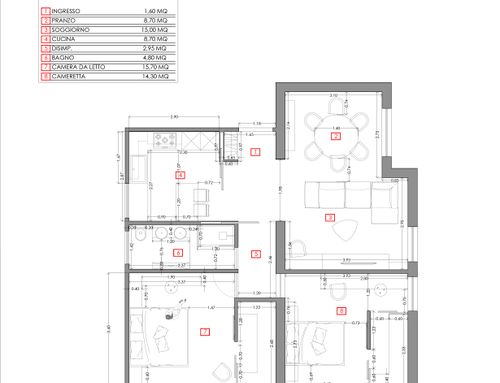
Salve a tutti ho un appartamento di 75mq ad un piano rialzato di una piccola palazzina: Vorrei ridistibuire gli spazi della zona giorno creando un ambiente spazioso e luminoso dove, se possibile, ricavare un angolo studio. Nella zona notte creare al posto del ripostiglio una cabina armadio o un secondo bagno e riorganizzare il bagno con una doccia più grande.
Hi everyone, I have a 75sqm apartment on a mezzanine floor of a small building: I would like to redistribute the spaces of the living area by creating a spacious and bright environment where, if possible, to obtain a study corner. In the sleeping area, create a walk-in closet or a second bathroom instead of the closet and reorganize the bathroom with a larger shower.
Hola a todos, tengo un piso de 75m2 en una entreplanta de un pequeño edificio: me gustaría redistribuir los espacios de la sala de estar creando un ambiente amplio y luminoso donde, si es posible, obtener un rincón de estudio. En el área de dormir, crear un vestidor o un segundo baño en lugar del armario y reorganizar el baño con una ducha más grande.