
Brescia BS, Italy
business - large-office
Descrizione
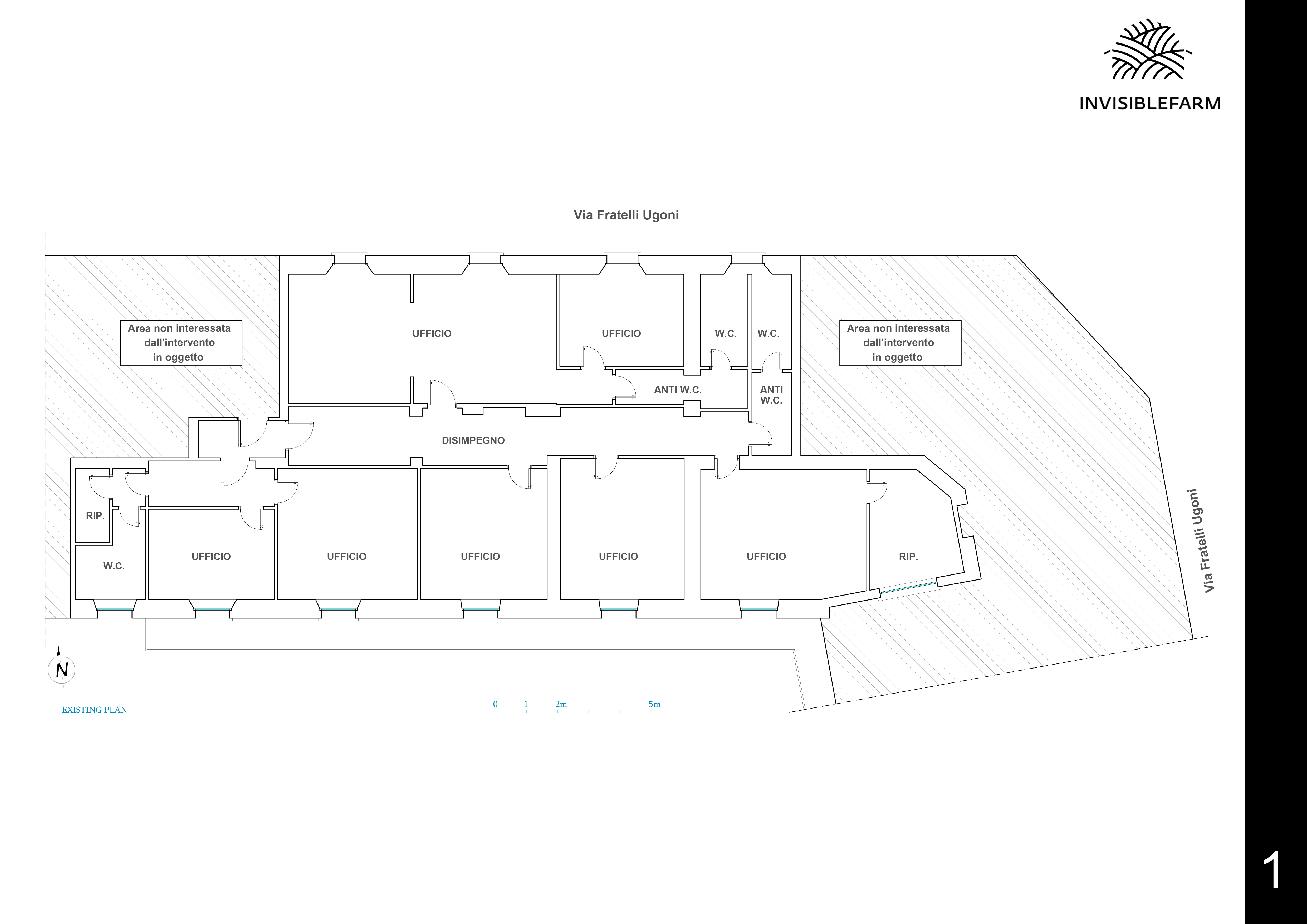
This office will be the new home of Invisiblefarm, a very innovative software company that works with open source technologies. The typical colors of the company are white and charcoal gray, and logo is a factory whith no contours, to leave space to the substance. Our motto is "Innovation transparent": we do everything is possible because our client continues to work and not being aware of our technical intervention, until its complete resolution. We are enterprising and engaged in research and development. Our office must reflect our philosophy: invisibility, minimalism and innovation. Our idea is to split the office into two environments, as you seen from the image attached. In the greater, should be placed the space work (we like the open space), 3 separate offices, a meeting room and smoll room for server bay. We don't want move the bathrooms, but only renovate its. The smaller area should be devoted to relaxation / play corner (dining, coffee area..), but it must also be converted into a work area in case of need. For reasons of architectural constraints, external openings can't be changed. We will use a floating floor under which the plants will pass.
Questo ufficio sarà la nuova sede di Invisiblefarm, una softwarehouse molto innovativa che lavora con tecnologie opensource. I colori sociali sono il bianco e il grigio antracite e il logo rappresenta una fabbrica i cui contorni sono invisibili per lasciare spazio alla sostanza. Il nostro motto è l'innovazione è trasparente ovvero facciamo il possibile perchè il nostro cliente continui a lavorare e non si accorga del nostro intervento tecnico fino alla sua completa risoluzione. Siamo orientati all'innovazione e impegnati nella ricerca e nello sviluppo.
Il nostro ufficio deve rispecchiare la nostra filosofia: invisibilità, minimalismo e innovazione.
La nostra idea è dividere l'ufficio in due ambienti come si vede dall'immagine allegata. Nella zona più grande deve essere collocato lo spazio lavoro; ben accetto l'open space, 3 uffici distinti, aula riunioni e piccolo locale per alloggiamento server. Non si vogliono spostare i bagni ma solo ristrutturarli.
Mentre la zona più piccola deve essere dedicata al relax/angolo ludico (zona pranzo, caffè..) ma anche convertibile in zona lavoro in caso di necessità.
Per motivi di vincoli architettonici le aperture esterne non possono essere cambiate. Verrà utilizzato un pavimento flottante sotto il quale passeranno gli impianti.