
Singapore
Residenziale - Casa
Descrizione
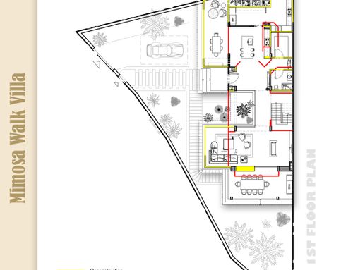
Mimosa Walk - A Modern Villa and Tropical Oasis
Project Documents Download Link
https://www.dropbox.com/sh/8ttsk1dulkjsves/AADbTSGEtASnwaUOzVrzdGsOa?dl=0
Table of Contents
1) Introduction about the project
2) Description about the property’s topography and climate
3) Description about the building in general
4) Main themes of the project
5) Space planning and requirements overview
6) Technical and Urban Planning Constraints and Requirements
7) Building Budget
8) Project Related Material
9) Project Deliverables
10) Other Notes
Section 1 - Introduction
This content is for a complete remodelling, including additions of a Semi-Detached house on a triangular plot of 431 square meters with a 38 meter frontage and built up area of approximately 320 square meters. The house on the land was built in 1986 and went through a round of makeovers in 2002.
The neighborhood that the house is in is a private villa housing area consisting of mainly detached and semi-detached housing. The overall environment around the house is quiet and with plentiful greenery. As you can see in the Google Maps and Google Earth screenshots, most of the houses along the same stretch of road are of a similar style, because they were built by a common developer.
We would like to preserve the current structure of the building but add on additional roofings to increase the amount of usable indoor space by 100 square meters. The design and architectural theme for this project will be a modern, contemporary build with natural elements and materials. Although the house is on a triangular plot, we really like the 38 meter frontage and we hope that the submitted designs can complement the frontage while working around the limitations of the plot.
The aim is to have a multi-functional living space that caters to the need of modern living and working but at the same time having natural elements and greenery to allow the inhabitants to unwind, relax and enjoy when they are in the space. We are not in favor of overly modern or industrial houses that look cold and void of character.
One of the key goals is to reinterpret the limitation and the boundaries of internal living spaces and outdoor areas. We would like to challenge the traditional concept on the division of space between the interior and exterior. Designers should take note that the designs should incorporate elements to allow plenty of natural light and air into the house to maximize the comfort of being around in the space of the house.
We give you complete autonomy and freedom to work on this project, according to your personal tastes and style. The images and references provided are to convey a general guideline of our tastes but there are in no way to act as a set of rules that you have to follow. The only things to take special care of are the Technical and Urban Planning Constraints in Section 7.
We wish you all the best in this project and let your creativity flourish!
Section 2 - Description about the land, topography and climate
Frontage - 38m
Length - 34.5m
Depth – 24.3m
Total – 431 square meters
The plot of land is on a gentle downward slope starting from the front garden to the side garden. We do not have the equipment to make precise measurements on the slope but estimates would put it at approximately at 2 meters between the highest and lowest points of the plot. If this is an important piece of information for your design, please let me know and we will try to obtain accurate measurements.
The climate for the area is tropical with temperatures around 23 degrees C to 34 degrees C all year. There is copious amount of rainfall throughout the year. The warm climate of the area is also another reason that we would like a house that is in touch with nature.
Google Earth Link can be found below:
https://earth.google.com/web/search/15+Mimosa+Walk,+Singapore/@1.3826056,103.8614219,24.1523016a,159.88085347d,35y,157.18022129h,0t,0r/data=CoMBGlkSUwokMHgzMWRhMTY4Y2IzNDhlYTJmOjB4ODc0M2E2NWYxZDM3MjYzGWlDtAwnH_Y_IbkjUokh91lAKhkxNSBNaW1vc2EgV2FsaywgU2luZ2Fwb3JlGAIgASImCiQJy9DmCi7xNUARyNDmCi7xNcAZK6As7a_0QEAhQNeszyaSUcA
Section 3 - Description about the building in general
The area that the house is in comes with complete infrastructure such as electricity, gas, water, drainage, gigabit internet, phone networks and more.
This particular building has maintained its existing structure that was built in 1986 but it had went through major renovation works in 2002. Current built up area of the building is approximately 320 square meters, inclusive of the ground floor, second floor and top floor.
There were additions such as roofing shelters, car porch roofing, external cladding, interior renovation and landscaping works done in the 2002 remodelling. The works that were performed in the 2002 remodelling can be found in the resources page with filenames starting with “(2002 Remodel)”.
The current stairwells of the house are quite dark and stuffy due to the design and layout of the current house; this is something to take note of as one of the areas for major improvements to be made.
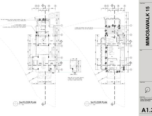
There are 3 balconies in total, 1 large, 1 medium and 1 small. To increase the amount of usable space, we are open to cover these balconies up with a roof and enclose them with full length windows.
You may also notice in the images of the current house that some of the ceilings in the current rooms are quite short. Especially in the washroom of the master room, the false ceiling height is just approximately 2.3 meters. This is another critical area for improvement as we prefer higher ceilings to convey a sense of space and freedom.
The current roof of the house is made from a dome like wooden structure. The condition of the roof is not in very good shape and leaking water during periods of high rainfall. There is a shared roof with the neighbor that is the roof of the stairwell from the second storey to the top storey. We would like to have the stairwell roof looked into and the submitted designs should allow a lot of natural light in through the roof to light up the stairwells.
Goggle Maps Link can be found below:
https://goo.gl/maps/Hh8HujsQiTKCBLeF7
Section 4 - Main themes of the project
The main theme of the building should be modern, contemporary with copious natural elements that gives the house a character of its own and allows it to stand out amongst the others. The architecture and interior designs should focus on livability of the inhabitants in the designed spaces with an emphasis on elegance and comfort.
The interior of the house should convey a feeling of warmth and comfort with the use of natural materials and elements.
Themes that the inhabitants of the house would like are those with more wood and earthier materials:
• Modern
• Tropical
The styles in the following list are those that we are to avoid:
• Traditional
• Victorian
• Rustic
• Industrial
Section 5 - Space planning and requirements overview
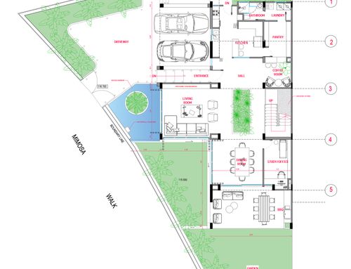
We are a family of 3, with an infant that will be around 1 year of age when the house is ready. The remodelled house should be able to accommodate 1 more kid that we are planning for in the near future.
Privacy is important to us. You will notice in the images provided in the Resource section that currently the living areas of the house is visible from the neighboring houses and the road outside the house. Please consider adding privacy features in the architecture and design such as green features, while not sacrificing too much of the view from inside the house to the external environment.
There are 4 main architectural and design objectives that we are looking to accomplish with this project and they are as follows:
1) Spaces that go beyond conventional designs
2) Space concepts that amplify the amount of usable areas
3) Architecture and design themes
4) Fluidity of Spaces (Connection between the Interior and Exterior spaces)
Spaces that go beyond conventional designs
The proposals that are submitted should interpret the ideas of today’s modern living and consider the concept of space. There should be a union between the indoors and outdoors, and synergy of private and common areas that challenges the boundaries of conventional designs.
You are given the autonomy and freedom to modify the layout, roofing, spaces of the building, as long as the original structure is kept intact.
Space concepts that amplify the amount of usable areas
The current built up area of the house may not be able to accommodate all the spaces that we would like. Thus, considering adding structural elements to increase the amount of livable built in space will be one of the key considerations.
These are the spaces that the inhabitants of the house would like after the remodelling project:
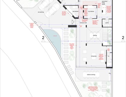
Common Use Spaces – Indoor
1) Living - Spacious hall for living and dining with plenty of light and air
2) Kitchen – An open concept dry kitchen for light cooking and a wet kitchen for heavier cooking
3) Pantry - For making and enjoying coffee
4) Gym – Simple and not too elaborate exercise area
5) Study ¬– Table with ample space for writing and for a computer. A reading area for with a nice lounge chair and warm lighting with plenty of space for books storage
6) Entertainment Room ¬- For Hifi/Home Theatre/Media
Common Use Spaces – Outdoor
1) Outdoor Dining – For outdoor dining to accommodate 8-10 with an optional bbq area
2) Garden – Nice garden with an abundance of trees, plants and flowers
3) Water Feature – A small water feature will be a good option to have (not mandatory)
4) Car Porch – For 2 cars
Private Use Spaces
1) Master Bedroom (Parents) – Walk in wardrobe with attached toilet. Toilet should have high ceilings and sufficient space for a small steam room
2) Baby Bedroom – Room for an infant boy to grow up in
Other Spaces
1) Storage ¬– Would appreciate novel and creative ideas to increase storage space
2) Laundry area – To allocate an area for laundry machines
Section 6 - Technical and Urban Planning Constraints and Requirements
Important Notes
Please refer to the following resources for a better understanding of the Urban Planning Constraints and requirements:
https://www.ura.gov.sg/Corporate/Guidelines/Development-Control/Residential/Semi-Detached-Houses/Advisory-Notes
https://www.ura.gov.sg/-/media/Corporate/Guidelines/Development-control/Landed-Housing/Summary-Semi-Detached.pdf
or
https://www.ura.gov.sg/-/media/Corporate/Guidelines/Development-control/Landed-Housing/Summary-Semi-Detached.pdf
Build Areas
• Proposed additional gross floor area shall not exceed 50% of the approved (current) gross floor area;
• External walls that are to be removed and replaced with new walls shall not exceed 50% of the approved external walls;
• Structural changes to the existing landed dwelling house (eg replacing or constructing new columns/beams and reconstructing existing floor slabs) shall not exceed 50% of existing building;
• Changes/replacement of entire roof (with/without resultant increase in height) shall not involve an additional storey;
• Where an attic is added, the increase in GFA shall be less than 50%.
Proposals that do not comply with the above criteria for Additions & Alterations shall be considered as Reconstruction proposals. Works resulting in the following outcomes shall also be deemed as reconstruction, regardless of whether the works exceed 50% of the existing building GFA:
• Increase in storey height (including changes/replacement of any part of the roof involving an additional storey)
• Change in landed dwelling housing form (for example, from semi-detached house to a detached).
In order to not overcomplicate the process, we would prefer to keep within the building guidelines above and avoid the project being classified as a Reconstruction.
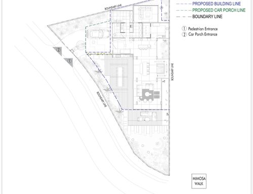
Setbacks
Main building:
Setback from Road Buffer: 7.5m (including greenery and garden)
Maximum depth of car porch protrusion into the road : 2.4m
Main building, car porch column, patio/terrace: 2m
Main roof eaves, car porch roof eaves: 1m
***For other permissible building envelopes, please refer to the drawing of the Envelope Control Guidelines under the Urban Planning Guidelines – Semi-Detached Houses.pdf in Resources section.
Retaining and Boundary walls
Retaining Walls - Outward facing retaining walls are not encouraged. If allowed, they shall not be more than 1m high.
Retaining walls more than 1m high may be considered if suitably tiered and planted.
Boundary walls - Boundary walls shall not exceed 1.8m.
Boundary-cum-retaining wall - The total visible height of the solid boundary-cum-retaining wall shall not exceed 2.8m, of which the solid boundary wall shall not exceed 1.8m.
Section 7 – Building Budget
Building costs in our location (Singapore) are higher than most places. As a point of reference, lets assume that building costs are similar to the costs in Europe.
Budget for the Renovation of the Building, Interior – €1500-€2000 per square meter (~US$150-200 per square feet)
Budget for Landscaping – €30000-€50000 (US$35,000-US$55,000)
Desirable elements of the current house (from your perspective) can be preserved for more budget to be allocated to other areas.
Section 8 – Project Related Material
Google Maps 2D View Link - https://goo.gl/maps/vRE3dCjRB8Sw8Rc9A
Google Maps Street View Link - https://goo.gl/maps/VpSaKGkFRi3D42Cc7
Google Earth Link -https://earth.google.com/web/search/15+Mimosa+Walk,+Singapore/@1.3826056,103.8614219,24.1523016a,159.88085347d,35y,157.18022129h,0t,0r/data=CoMBGlkSUwokMHgzMWRhMTY4Y2IzNDhlYTJmOjB4ODc0M2E2NWYxZDM3MjYzGWlDtAwnH_Y_IbkjUokh91lAKhkxNSBNaW1vc2EgV2FsaywgU2luZ2Fwb3JlGAIgASImCiQJy9DmCi7xNUARyNDmCi7xNcAZK6As7a_0QEAhQNeszyaSUcA
Plot Shape and Measurements - Plot Shape Dimensions.jpeg
Current House Images –The images are grouped according to their location in the house. You will find a description of the image in the filename of each image.
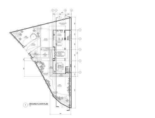
Plans – There are in total 25 plans of the house. For filenames beginning with 2002, they are plans from the 2002 renovation. For filenames beginning with 1986, they are the original plans from the builder.
Section 9 – Project Deliverables
It will be preferred if the submissions are written in English. However, we do not want to compromise on the submissions because of language. If you are not comfortable to submit in English, you can submit the proposal in your native language and we can have it translated.
Please take note that you submissions should be complete with all details that is required for the builders to commence construction.
• FURNISHED FLOORPLAN AND DESCRIPTION
• 3D FLOORPLAN
• EXTERNAL PERSPECTIVE FROM 4 SIDES WITH DIMENSIONS
• AXONOMETRIC CROSS-SECTION
• SECTION WITH TECHNICAL DIMENSIONS
• CONSTRUCTION DETAIL SECTION
• DEMOLITION AND RECONSTRUCTION PLAN
• LIGHTING PLAN
• LIGHTS SCHEME
• FINISHES LIST
• CEILING/FALSE-CEILING PLAN
• FLOORING MATERIALS LIST
• PLAN AND ABACUS OF PLANT SPECIES
• RENDER VIEW – At least 1 render view for each room/area of the house in Section 5
Section 10 – Other Notes
The house is currently empty and I have full access to it.
In the event that you require more photos, videos or clarifications on the plan or layout, feel free to post it in the message board.
Thank you very much for your interest and for reading this long brief.
Looking forward to the submissions!
TRADUZIONE IN ITALIANO:
Mimosa Walk - Una villa moderna e un'oasi tropicale
Link per il download dei documenti del progetto: https://www.dropbox.com/sh/8ttsk1dulkjsves/AADbTSGEtASnwaUOzVrzdGsOa?dl=0
Sommario
1) Introduzione al progetto
2) Descrizione della topografia e del clima della proprietà
3) Descrizione dell'edificio in generale
4) Temi principali del progetto
5) Panoramica sulla pianificazione dello spazio e sui requisiti
6) Vincoli, Requisiti Tecnici e Urbanistici
7) Budget di costruzione
8) Materiale relativo al progetto
9) Risultati del progetto
10) Informazioni aggiuntive
Sezione 1 - Introduzione
L’obbiettivo della progettazione è una ristrutturazione complete di una casa semi-indipendente su un terreno triangolare di 431 metri quadrati con una facciata di 38 metri e un'area edificata di circa 320 metri quadrati. La casa è stata costruita nel 1986 e ha subito una serie di ristrutturazioni nel 2002.
Il quartiere in cui si trova la casa è una zona residenziale di ville private composta principalmente da abitazioni unifamiliari e bifamiliari. L'ambiente generale intorno alla casa è tranquillo e ricco di verde. Come si puo vedere dagli screenshot di Google Maps e Google Earth, la maggior parte delle case lungo lo stesso tratto di strada hanno uno stile simile, perché sono state costruite dallo stesso costruttore edile.
Vorremmo preservare l'attuale struttura dell'edificio ma aggiungere ulteriori coperture per aumentare la quantità di spazio interno utilizzabile di 100 metri quadrati. Il tema progettuale e architettonico di questo progetto sarà una costruzione moderna e contemporanea con elementi e materiali naturali. Sebbene la casa sia su un terreno triangolare, ci piace molto la facciata di 38 metri e speriamo che i progetti presentati possano completare la facciata mentre si aggirano i limiti della trama.
L'obiettivo è quello di avere uno spazio abitativo multifunzionale che soddisfi le esigenze della vita e del lavoro moderni, ma allo stesso tempo con elementi naturali e verde per consentire agli abitanti di rilassarsi e divertirsi. Non siamo a favore di case eccessivamente moderne o industriali che sembrano fredde e prive di carattere.
Uno degli obiettivi chiave è reinterpretare i limiti e i confini degli spazi abitativi interni e delle aree esterne. Vorremmo sfidare il concetto tradizionale sulla divisione dello spazio tra interno ed esterno. I progettisti dovrebbero prendere atto che i progetti dovrebbero incorporare elementi per consentire molta luce naturale e aria nella casa per massimizzare il comfort.
Diamo completa autonomia e libertà di lavorare su questo progetto, secondo i tuoi gusti e il tuo stile personale. Le immagini e i riferimenti forniti hanno lo scopo di trasmettere una linea guida generale dei nostri gusti, ma non ci sono in alcun modo regole da seguire. Le uniche limitazioni a cui prestare particolare attenzione sono i vincoli tecnici e urbanistici nella sezione 7.
Vi auguriamo tutto il meglio per questo progetto e lasciate fiorire la vostra creatività!
Sezione 2 - Descrizione del territorio, della topografia e del clima
Facciata - 38m
Lunghezza - 34,5 m
Profondità – 24,3 m
Totale – 431 mq
Il lotto di terreno è in leggera discesa partendo dal giardino antistante al giardino laterale. Non abbiamo l'attrezzatura per effettuare misurazioni precise sul pendio, ma le stime lo metterebbero a circa 2 metri tra il punto più alto e quello più basso del lotto. Se questa è un'informazione importante per il tuo progetto, faccelo sapere e cercheremo di ottenere misurazioni accurate.
Il clima della zona è tropicale con temperature intorno ai 23 gradi C - 34 gradi C tutto l'anno. C'è una quantità copiosa di precipitazioni durante tutto l'anno. Il clima caldo della zona è anche un altro motivo per cui vorremmo una casa a contatto con la natura.
Il link di Google Earth è disponibile di seguito:
https://earth.google.com/web/search/15+Mimosa+Walk,+Singapore/@1.3826056,103.8614219,24.1523016a,159.88085347d,35y,157.18022129h,0t,0r/data=CoMBGlkSUwokMHgzMWRhMTY4Y2IzNDhlYTJmOjB4ODc0M2E2NWYxZDM3MjYzGWlDtAwnH_Y_IbkjUokh91lAKhkxNSBNaW1vc2EgV2FsaywgU2luZ2Fwb3JlGAIgASImCiQJy9DmCi7xNUARyNDmCi7xNcAZK6As7a_0QEAhQNeszyaSUcA
Sezione 3 - Descrizione dell'edificio in generale
L'area in cui si trova la casa è dotata di infrastrutture complete come elettricità, gas, acqua, drenaggio, internet gigabit, reti telefoniche e altro ancora.
Questo particolare edificio ha mantenuto la struttura esistente che è stata costruita nel 1986 ma ha subito importanti lavori di ristrutturazione nel 2002. L'attuale superficie edificata dell'edificio è di circa 320 mq, comprensivi tra piano terra, primo piano e secondo piano.
Nel 2002 sono state aggiunte alcune pensiline, delle coperture per auto ed alcuni rivestimenti esterni. I lavori che sono stati eseguiti nel rimodellamento del 2002 possono essere trovati nella pagina delle risorse con nomi di file che iniziano con "(2002 Remodel)".
Le scale attuali sono piuttosto buie e soffocanti a causa del design e della disposizione della casa attuale; questa è una delle aree in cui devono essere apportati importanti miglioramenti.
Ci sono 3 balconi in totale, uno grande, uno medio e uno piccolo. Per aumentare la quantità di spazio utilizzabile, siamo disponibili a coprire questi balconi con un tetto e a chiuderli con finestre a tutta altezza.
Come potete notare nelle immagini alcuni dei soffitti nelle stanze attuali sono piuttosto bassi. Soprattutto nel bagno della camera padronale, l'altezza del controsoffitto è di soli 2,3 metri circa. Questa è un'altra criticità, poiché preferiamo soffitti più alti per trasmettere un senso di spazio e libertà.
L'attuale tetto della casa è costituito da una cupola simile a una struttura in legno. La condizione del tetto non è molto buona e perde acqua durante i periodi di alta piovosità. C'è un tetto in comune con il vicino che è il tetto del vano scala dal secondo piano al piano superiore. Faremo parecchia attenzione al progetto del tetto sopra al vano scala e i progetti presentati dovranno consentire l'ingresso di molta luce naturale attraverso il tetto per illuminare le trombe delle scale.
Il link Mappe Goggle può essere trovato di seguito:
https://goo.gl/maps/Hh8HujsQiTKCBLeF7
Sezione 4 - Temi principali del progetto
Vorremmo un’edificio moderno, contemporaneo con numerosi elementi naturali che conferiscono alla casa carattere e le consentono di distinguersi dalle altre. L'architettura e il design degli interni dovrebbero concentrarsi sulla vivibilità degli spazi con un'enfasi sull'eleganza e sul comfort.
L'interno della casa dovrebbe trasmettere una sensazione di calore e comfort con l'uso di materiali ed elementi naturali.
Le parole chiave sono:
• Moderno
• Tropicale
Gli stili nel seguente elenco sono quelli che dobbiamo evitare:
• Tradizionale
• Vittoriano
• Rustico
• Industriale
Sezione 5 - Panoramica sulla pianificazione dello spazio e sui requisiti
Siamo una famiglia di 3 persone, con un bambino che avrà circa 1 anno quando la casa sarà pronta. La casa ristrutturata dovrebbe essere in grado di ospitare 1 bambino in più che stiamo pianificando nel prossimo futuro.
La privacy è importante per noi. Noterai nelle immagini fornite nella sezione Risorse che attualmente le aree abitative della casa sono visibili dalle case vicine e dalla strada fuori casa. Si prega di considerare l'aggiunta di caratteristiche di privacy nell'architettura e nel design come le caratteristiche verdi, senza sacrificare troppo la vista dall'interno della casa verso l'ambiente esterno.
Ci sono 4 principali obiettivi architettonici e di design che stiamo cercando di raggiungere con questo progetto e sono i seguenti:
1) Spazi che vanno oltre il design convenzionali
2) Distribuzione degli spazi che aumenti le aree utilizzabili
3) Architettura e design moderni
4) Fluidità degli spazi (connessione tra gli spazi interni ed esterni)
Le proposte che vengono presentate devono interpretare le idee del vivere moderno di oggi e considerare il concetto di spazio. Dovrebbe esserci un'unione tra l'interno e l'esterno e una sinergia di aree private e comuni che sfida i confini dei progetti convenzionali.
Avrete piena autonomia di modificare il layout, la copertura, gli spazi dell'edificio, purché la struttura originale sia mantenuta intatta.
L'attuale area edificata della casa potrebbe non essere in grado di ospitare tutti gli spazi che vorremmo. Pertanto, considerare l'aggiunta di elementi strutturali per aumentare la quantità di spazio costruito vivibile sarà una delle considerazioni chiave.
Questi sono gli spazi che vorremmo aver ultimata la ristrutturazione:
Spazi di uso comune – Interni
1) Soggiorno - Ampio ingresso per vivere e mangiare con molta luce e aria
2) Cucina: una cucina open space asciutta per la cucina leggera e una cucina umida per la cucina più pesante.
3) Dispensa - Per preparare e gustare il caffè
4) Palestra – Area esercizi semplice e non troppo elaborata
5) Studio ¬– Tavolo con ampio spazio per la scrittura e per un computer. Una zona lettura con una bella poltrona e un'illuminazione calda con molto spazio per riporre i libri
6) Sala Intrattenimento ¬- Per Hi-Fi/Home Theatre/Media
Spazi di uso comune – All'aperto
1) Pranzo all'aperto - Per mangiare all'aperto per ospitare 8-10 persone con un'area barbecue opzionale
2) Giardino – Bel giardino con un'abbondanza di alberi, piante e fiori
3) Composizione con l’acqua – Una piccola composizione d'acqua (fontana, laghetto, ecc.) sarebbe una buona opzione da avere (non obbligatoria)
4) Veranda per auto – (2 posti)
Spazi ad uso privato
1) Camera da letto principale (genitori) – Cabina armadio con bagno annesso. Il bagno dovrebbe avere soffitti alti e spazio sufficiente per un piccolo bagno turco
2) Cameretta – Stanza in cui un neonato può crescere
Altri spazi
1) Archiviazione ¬- Apprezziamo idee nuove e creative per aumentare lo spazio di archiviazione
2) Area lavanderia – Area riservata a lavatrice e asciugatrice.
Sezione 6 - Vincoli e requisiti tecnici e urbanistici
Note importanti
Si prega di fare riferimento alle seguenti risorse per una migliore comprensione dei vincoli e dei requisiti urbanistici:
https://www.ura.gov.sg/Corporate/Guidelines/Development-Control/Residential/Semi-Detached-Houses/Advisory-Notes
https://www.ura.gov.sg/-/media/Corporate/Guidelines/Development-control/Landed-Housing/Summary-Semi-Detached.pdf
https://www.ura.gov.sg/-/media/Corporate/Guidelines/Development-control/Landed-Housing/Summary-Semi-Detached.pdf
Aree da realizzare:
• La superficie lorda aggiuntiva proposta non deve superare il 50% della superficie lorda (attuale) approvata;
• Le pareti esterne che devono essere rimosse e sostituite con nuove pareti non devono superare il 50% delle pareti esterne approvate;
• Le modifiche strutturali all'abitazione esistente (ad es. sostituzione o costruzione di nuove colonne/travi e ricostruzione delle solette esistenti) non devono superare il 50% dell'edificio esistente;
• Le modifiche/sostituzioni dell'intero tetto (con/senza conseguente aumento di altezza) non devono comportare un piano aggiuntivo;
• In caso di aggiunta di un sottotetto, l'aumento della SLP dovrà essere inferiore al 50%.
Le proposte che non soddisfano i criteri di cui sopra per Aggiunte e Modifiche saranno considerate proposte di Ricostruzione. Si considerano ricostruzioni anche le opere che danno luogo ai seguenti esiti, indipendentemente dal fatto che le opere superino il 50% della SLP dell'edificio esistente:
• Aumento dell'altezza del piano (incluse modifiche/sostituzioni di qualsiasi parte del tetto che comporti un piano aggiuntivo)
• Modifica della forma di abitazione in abitazione fondiaria (ad esempio, da bifamiliare a monofamiliare).
Per non complicare eccessivamente il processo, preferiremmo attenerci alle linee guida per la costruzione di cui sopra ed evitare che il progetto venga classificato come Ricostruzione.
Palazzo principale:
Arretramento da Road Buffer: 7,5 m (incluso verde e giardino)
Profondità massima della sporgenza del portico dell'auto nella strada: 2,4 m
Edificio principale, colonna portico auto, patio/terrazza: 2m
Gronda del tetto principale, gronda del tetto del portico dell'auto: 1 m
***Per gli altri involucri edilizi consentiti, fare riferimento alle Linee guida per la pianificazione urbana – Case bifamiliari.pdf nella sezione Risorse.
Muri di contenimento e di delimitazione
Muri di sostegno - I muri di sostegno rivolti verso l'esterno non sono incoraggiati. Se consentiti, non devono essere più alti di 1 m.
Possono essere presi in considerazione muri di sostegno di altezza superiore a 1 m se opportunamente disposti e piantati.
Muri di confine - I muri di confine non devono superare 1,8 m.
Delimitazione-muro di contenimento - L'altezza visibile totale del solido muro di confine-contenitore non deve superare 2,8 m, di cui il muro di confine solido non deve superare 1,8 m.
Sezione 7 – Budget di costruzione
I costi di costruzione a Singapore sono più alti della maggior parte delle alter città al mondo. Come punto di riferimento, supponiamo che i costi di costruzione siano simili ai costi in Europa (Parigi).
Budget per la ristrutturazione dell'edificio, interni: 1500-2000 € per metro quadrato (~ 150-200 USD per piede quadrato)
Budget per l'abbellimento del paesaggio – € 30000-50000 (US $ 35.000-US $ 55.000)
Gli elementi qualitative della casa attuale (dal tuo punto di vista) possono essere preservati per allocare più budget ad altre aree.
Sezione 8 – Materiale relativo al progetto
Link di visualizzazione 2D di Google Maps - https://goo.gl/maps/vRE3dCjRB8Sw8Rc9A
Link di Google Maps Street View - https://goo.gl/maps/VpSaKGkFRi3D42Cc7
Google Earthlink -https: //earth.google.com/web/search/15+Mimosa+Walk,+Singapore/@1.3826056,103.8614219,24.1523016a,159.88085347d,35y,157.18022129h,0t,0r/data=CoMBGlkSUwokMHgzMWRhMTY4Y2IzNDhlYTJmOjB4ODc0M2E2NWYxZDM3MjYzGWlDtAwnH_Y_IbkjUokh91lAKhkxNSBNaW1vc2EgV2FsaywgU2luZ2Fwb3JlGAIgASImCiQJy9DmCi7xNUARyNDmCi7xNcAZK6As7a_0QEAhQNeszyaSUcA
Plot Shape and Measurements - Plot Shape Dimensions.jpeg
Immagini attuali della casa: le immagini sono raggruppate in base alla loro posizione nella casa. Troverai una descrizione dell'immagine nel nome del file di ogni immagine.
Planimetrie – Ci sono in totale 25 planimetrie della casa. Quelle con il nome del file che inizia con “2002”, sono le planimetrie relative alla della ristrutturazione del 2002. I file che iniziano con “86” sono relative al progetto originale.
Sezione 9 – Risultati del progetto
Preferiremmo ricevere la descrizione del progetto e le tavole in lingua inglese. Tuttavia, non vogliamo scendere a compromessi sulle presentazioni a causa della lingua. Se non ti senti a tuo agio a presentare in inglese, puoi inviare la proposta nella tua lingua madre e possiamo farla tradurre.
Si prega di notare che le richieste devono essere complete di tutti i dettagli necessari ad avviare la realizzazione del progetto, ed in particolare:
• PLANIMETRIA ARREDATA E DESCRIZIONE
• PLANIMETRIA 3D
• PROSPETTIVA ESTERNA DAI 4 LATI CON DIMENSIONI
• SEZIONE ASSONOMETRICA
• SEZIONE CON DIMENSIONI TECNICHE
• SEZIONE DETTAGLIO COSTRUZIONE
• TAVOLA DEMOLIZIONI E RICOSTRUZIONI
Sezione 10 – Altre note
La casa è attualmente vuota ma abbiamo pieno accesso in caso di necessità di maggiori informazioni o di misurazioni.
Nel caso avessi bisogno di altre foto, video o chiarimenti sulla planimetri non esitare a scriverci utilizzando la chat del contest.
Grazie mille per il tuo interesse e per aver letto questa lunga descrizione!!! 😊
In bocca al lupo a tutti!!!
--------------------------------------------------------------------------------------------------------------------------------
Mimosa Walk - Una villa moderna y un oasis tropical
Link para descargar los documentos del proyecto
https://www.dropbox.com/sh/8ttsk1dulkjsves/AADbTSGEtASnwaUOzVrzdGsOa?dl=0
Índice de contenidos
1) Introducción sobre el proyecto
2) Descripción de la topografía y el clima de la propiedad
3) Descripción del edificio en general
4) Temas principales del proyecto
5) Resumen de la planificación del espacio y los requisitos
6) Limitaciones y requisitos técnicos y urbanísticos
7) Presupuesto del edificio
8) Material relacionado con el proyecto
9) Resultados del proyecto
Sección 1 - Introducción
Este contenido es para una remodelación completa, incluyendo adiciones de una casa adosada en una parcela triangular de 431 m2 con una fachada de 38 metros y superficie construida de aproximadamente 320 m2. La casa en el terreno fue construida en 1986 y pasó por una ronda de remodelación en 2002.
El barrio en el que se encuentra la casa es una zona de viviendas privadas compuesta principalmente por viviendas unifamiliares y adosadas. El entorno general de la casa es tranquilo y con abundante vegetación. Como se puede ver en las capturas de pantalla de Google Maps y Google Earth, la mayoría de las casas que se encuentran en el mismo tramo de carretera son de un estilo similar, ya que fueron construidas por un promotor común.
Nos gustaría conservar la estructura actual del edificio, pero añadir techos adicionales para aumentar la cantidad de espacio interior utilizable en 100 m2. El diseño y el tema arquitectónico de este proyecto serán una construcción moderna y contemporánea con elementos y materiales naturales. Aunque la casa se encuentra en una parcela triangular, nos gusta mucho la fachada de 38 metros y esperamos que los diseños presentados puedan complementar la fachada al mismo tiempo que se trabaja con las limitaciones de la parcela.
El objetivo es tener un espacio multifuncional que responda a las necesidades de la vida y el trabajo modernos, pero que al mismo tiempo cuente con elementos naturales y vegetación que permitan a los habitantes desconectar, relajarse y disfrutar cuando estén en el espacio. No somos partidarios de las casas excesivamente modernas o industriales que parecen frías y sin carácter.
Uno de los objetivos principales es reinterpretar la limitación y los límites de los espacios interiores y exteriores. Queremos desafiar el concepto tradicional sobre la división del espacio entre el interior y el exterior. Los diseñadores deben tener en cuenta que los diseños deben incorporar elementos que permitan la entrada de mucha luz natural y aire en la casa para maximizar la comodidad de estar en el espacio de la casa.
Damos total autonomía y libertad para trabajar en este proyecto, según tus gustos y estilos personales. Las imágenes y referencias proporcionadas son para transmitir una pauta general de nuestros gustos, pero en ningún caso actúan como un conjunto de reglas que tengas que seguir. Lo único que hay que tener en cuenta son las limitaciones técnicas y urbanísticas de la sección 7.
¡Te deseamos todo lo mejor en este proyecto y deja que tu creatividad florezca!
Sección 2 - Descripción del terreno, topografía y clima
Fachada - 38m
Longitud - 34,5 m
Profundidad - 24,3 m
Total - 431 metros cuadrados
La parcela tiene una suave pendiente descendente desde el jardín delantero hasta el jardín lateral. No tenemos el equipo para hacer mediciones precisas sobre la pendiente, pero las estimaciones la situarían aproximadamente en 2 metros entre los puntos más altos y más bajos de la parcela. Si este es un dato importante para su diseño, por favor hágamelo saber y trataremos de obtener medidas precisas.
El clima de la zona es tropical, con temperaturas que oscilan entre los 23 y los 34 grados C durante todo el año. Hay una gran cantidad de precipitaciones durante todo el año. El clima cálido de la zona es también otra razón por la que nos gustaría tener una casa en contacto con la naturaleza.
El enlace de Google Earth se encuentra abajo:
https://earth.google.com/web/search/15+Mimosa+Walk,+Singapore/@1.3826056,103.8614219,24.1523016a,159.88085347d,35y,157.18022129h,0t,0r/data=CoMBGlkSUwokMHgzMWRhMTY4Y2IzNDhlYTJmOjB4ODc0M2E2NWYxZDM3MjYzGWlDtAwnH_Y_IbkjUokh91lAKhkxNSBNaW1vc2EgV2FsaywgU2luZ2Fwb3JlGAIgASImCiQJy9DmCi7xNUARyNDmCi7xNcAZK6As7a_0QEAhQNeszyaSUcA
Sección 3 - Descripción del edificio en general
La zona en la que se encuentra la casa viene con infraestructura completa como electricidad, gas, agua, drenaje, internet gigabit, redes telefónicas y más.
Este edificio en particular ha mantenido su estructura existente, que fue construida en 1986, pero ha sido objeto de importantes obras de renovación en 2002. La superficie construida actual del edificio es de aproximadamente 320 m2, incluyendo la planta baja, el segundo piso y el último piso.
En la remodelación de 2002 se realizaron obras de ampliación, como cubiertas de tejado, cubiertas de porches de coches, revestimientos exteriores, renovación interior y trabajos de jardinería. Las obras que se realizaron en la remodelación de 2002 se pueden encontrar en la página de recursos con nombres de archivo que empiezan por "(2002 Remodel)".
Las escaleras actuales de la casa son bastante oscuras y cargadas debido al diseño y la disposición de la casa actual; esto es algo de lo que hay que tomar nota como una de las áreas para realizar mejoras importantes.
Hay 3 balcones en total, 1 grande, 1 mediano y 1 pequeño. Para aumentar la cantidad de espacio utilizable, estamos abiertos a cubrir estos balcones con un techo y encerrarlos con ventanas de longitud completa.
En las imágenes de la casa actual también se puede observar que algunos de los techos de las habitaciones actuales son bastante cortos. Especialmente en el lavabo de la habitación principal, la altura del falso techo es de apenas 2,3 metros aproximadamente. Esta es otra área crítica para mejorar, ya que preferimos techos más altos para transmitir una sensación de espacio y libertad.
El tejado actual de la casa está hecho de una estructura de madera en forma de cúpula. El estado del tejado no es muy bueno y tiene fugas de agua en épocas de mucha lluvia. Hay un tejado compartido con el vecino que es el del hueco de la escalera desde la segunda planta hasta la superior. Nos gustaría que se revisara el techo de la escalera y que los diseños presentados permitieran la entrada de mucha luz natural a través del techo para iluminar las escaleras.
El enlace de Google Maps se encuentra abajo:
https://goo.gl/maps/Hh8HujsQiTKCBLeF7
Sección 4 - Principales temas del proyecto
El tema principal del edificio debe ser moderno, contemporáneo, con abundantes elementos naturales que den a la casa un carácter propio y le permitan destacar entre las demás. La arquitectura y el diseño interior deben centrarse en la habitabilidad de los habitantes en los espacios diseñados, haciendo hincapié en la elegancia y el confort.
El interior de la casa debe transmitir una sensación de calidez y confort con el uso de materiales y elementos naturales.
Los temas que gustan a los habitantes de la casa son los que tienen más madera y materiales más terrosos:
• Moderno
• Tropical
Los estilos de la siguiente lista son los que debemos evitar:
• Tradicional
• Victoriano
• Rústico
• Industrial
Sección 5 - Planificación del espacio y visión general de las necesidades
Somos una familia de 3 personas, con un bebé que tendrá alrededor de 1 año de edad cuando la casa esté lista. La casa remodelada debe ser capaz de acomodar a 1 niño más que estamos planeando en un futuro próximo.
La privacidad es importante para nosotros. En las imágenes de la sección de recursos se observa que actualmente las zonas habitadas de la casa son visibles desde las casas vecinas y desde la carretera exterior. Por favor, considere la posibilidad de añadir elementos de privacidad en la arquitectura y el diseño, como elementos verdes, sin sacrificar demasiado la vista desde el interior de la casa hacia el entorno exterior.
Hay 4 objetivos arquitectónicos y de diseño principales que buscamos lograr con este proyecto y son los siguientes:
1) Espacios que van más allá de los diseños convencionales
2) Conceptos de espacio que amplían la cantidad de áreas utilizables
3) Temas de arquitectura y diseño
4) Fluidez de los espacios (conexión entre los espacios interiores y exteriores)
Espacios que van más allá de los diseños convencionales
Las propuestas que se presenten deben interpretar las ideas de la vida moderna actual y considerar el concepto de espacio. Debe haber una unión entre el interior y el exterior, y una sinergia de zonas privadas y comunes que desafíe los límites de los diseños convencionales.
Se da autonomía y libertad para modificar la disposición, la cubierta y los espacios del edificio, siempre que se mantenga intacta la estructura original.
Conceptos de espacio que amplían la cantidad de áreas utilizables
Es posible que la superficie construida actual de la casa no pueda albergar todos los espacios que nos gustaría. Por lo tanto, una de las consideraciones clave será considerar la posibilidad de añadir elementos estructurales para aumentar la cantidad de espacio construido habitable.
Estos son los espacios que los habitantes de la casa querrán después del proyecto de remodelación:
Espacios de uso común - Interior
1) Salón - Amplia sala de estar y comedor con mucha luz y aire
2) Cocina - Un concepto abierto de cocina seca para la cocina ligera y una cocina húmeda para la cocina más pesada
3) Despensa - Para hacer y disfrutar del café
4) Gimnasio - Zona de ejercicios sencilla y no demasiado elaborada
5) Estudio - Mesa con amplio espacio para escribir y para la computadora. Una zona de lectura con un bonito sillón y una cálida iluminación con mucho espacio para guardar libros.
6) Sala de entretenimiento - Para Hifi/Home Theatre/Media
Espacios de uso común - Exteriores
1) Comedor al aire libre - Para comer al aire libre y acomodar 8-10 con una zona de barbacoa opcional
2) Jardín - Bonito jardín con abundancia de árboles, plantas y flores
3) Fuente de agua - Una pequeña fuente de agua será una buena opción para tener (no es obligatorio)
4) Porche para coches - Para 2 coches
Espacios de uso privado
1) Dormitorio principal (padres) - Armario vestidor con baño adjunto. El baño debe tener techos altos y espacio suficiente para una pequeña sala de vapor
2) Dormitorio de bebé - Habitación para que crezca un niño pequeño
Otros espacios
1) Almacenamiento - Agradecería ideas novedosas y creativas para aumentar el espacio de almacenamiento
2) Zona de lavandería - Asignar una zona para las máquinas de lavandería
Dropbox
GoPillar Project Dropbox Share
Shared with Dropbox
google.com
Google Maps
Find local businesses, view maps and get driving directions in Google Maps.
Sección 6 - Limitaciones y requisitos técnicos y urbanísticos
Notas importantes
Consulte los siguientes recursos para comprender mejor las limitaciones y requisitos urbanísticos:
https://www.ura.gov.sg/Corporate/Guidelines/Development-Control/Residential/Semi-Detached-Houses/Advisory-Notes
https://www.ura.gov.sg/-/media/Corporate/Guidelines/Development-control/Landed-Housing/Summary-Semi-Detached.pdf
o
https://www.ura.gov.sg/-/media/Corporate/Guidelines/Development-control/Landed-Housing/Summary-Semi-Detached.pdf
Áreas de construcción
- La superficie bruta adicional propuesta no debe superar el 50% de la superficie bruta aprobada (actual);
- Las paredes exteriores que se eliminen y se sustituyan por otras nuevas no podrán superar el 50% de las paredes exteriores aprobadas;
- Los cambios estructurales en la vivienda existente (por ejemplo, la sustitución o construcción de nuevos pilares/vigas y la reconstrucción de los forjados existentes) no superarán el 50% del edificio existente;
- Los cambios/sustitución de toda la cubierta (con/sin aumento de altura resultante) no implicarán una planta adicional;
- Cuando se añada un ático, el aumento de la superficie bruta será inferior al 50%.
Las propuestas que no cumplan los criterios anteriores para las ampliaciones y reformas se considerarán propuestas de reconstrucción. Las obras que den lugar a los siguientes resultados también se considerarán reconstrucción, independientemente de que las obras superen el 50% de la superficie bruta del edificio existente:
- Aumento de la altura de los pisos (incluidos los cambios/sustitución de cualquier parte del tejado que implique un piso adicional)
- Cambio en la forma de la vivienda (por ejemplo, de casa adosada a unifamiliar).
Para no complicar demasiado el proceso, preferimos mantenernos dentro de las directrices de construcción mencionadas y evitar que el proyecto se clasifique como Reconstrucción.
Retrocesos
Edificio principal:
Retirada de la carretera: 7,5 m (incluida la vegetación y el jardín)
Profundidad máxima del saliente del porche del coche en la carretera : 2,4m
Edificio principal, columna del porche del coche, patio/terraza: 2m
Alero del tejado principal, alero del tejado del porche del coche: 1m
***Para otras envolventes admisibles, consulte el dibujo de las Directrices de Control de Envolventes en las Directrices de Urbanismo - Casas adosadas.pdf en la sección de Recursos.
Muros de contención y de delimitación
Muros de contención - No se fomentan los muros de contención orientados hacia el exterior. Si se permiten, no deben tener más de 1 m de altura.
Se pueden considerar muros de contención de más de 1 m de altura si están adecuadamente escalonados y plantados.
Muros de delimitación - Los muros de delimitación no deben superar los 1,8 m.
Muro limítrofe - La altura total visible del muro limítrofe sólido no debe superar los 2,8 m, de los cuales el muro limítrofe sólido no debe superar los 1,8 m.
Sección 7 - Presupuesto del edificio
Los costes de construcción en nuestra localidad (Singapur) son más elevados que en la mayoría de los lugares. Como punto de referencia, supongamos que los costes de construcción son similares a los de Europa.
Presupuesto para la renovación del edificio, interior - 1500- 2000 euros por metro cuadrado (~ 150-200 dólares por pie cuadrado)
Presupuesto para jardinería - 30000- 50000 euros (35.000- 55.000 dólares)
Los elementos deseables de la casa actual (desde su perspectiva) pueden conservarse para destinar más presupuesto a otras áreas.
Sección 8 - Material relacionado con el proyecto
Google Maps 2D View Link - https://goo.gl/maps/vRE3dCjRB8Sw8Rc9A
Google Maps Street View Link - https://goo.gl/maps/VpSaKGkFRi3D42Cc7
Google Earth Link -https://earth.google.com/web/search/15+Mimosa+Walk,+Singapore/@1.3826056,103.8614219,24.1523016a,159.88085347d,35y,157.18022129h,0t,0r/data=CoMBGlkSUwokMHgzMWRhMTY4Y2IzNDhlYTJmOjB4ODc0M2E2NWYxZDM3MjYzGWlDtAwnH_Y_IbkjUokh91lAKhkxNSBNaW1vc2EgV2FsaywgU2luZ2Fwb3JlGAIgASImCiQJy9DmCi7xNUARyNDmCi7xNcAZK6As7a_0QEAhQNeszyaSUcA
Forma y medidas de la parcela - Dimensiones de la forma de la parcela.jpeg
Imágenes de la casa actual - Las imágenes están agrupadas según su ubicación en la casa. Encontrará una descripción de la imagen en el nombre de archivo de cada imagen.
Planos - Hay en total 25 planos de la casa. Para los nombres de archivos que comienzan con 2002, son planos de la renovación de 2002. Para los nombres de archivos que comienzan con 1986, son los planos originales del constructor.
Sección 9 - Resultados del proyecto
Será preferible que las presentaciones estén escritas en inglés. Sin embargo, no queremos comprometer las propuestas por el idioma. Si no se siente cómodo presentando su propuesta en inglés, puede presentarla en su lengua materna y nosotros podemos traducirla.
Tenga en cuenta que sus presentaciones deben ser completas con todos los detalles que se requieren para que los constructores comiencen la construcción.
• PLANO AMUEBLADO Y DESCRIPCIÓN
• PLANOS 3D
• PERSPECTIVA EXTERNA DESDE 4 LADOS CON DIMENSIONES
• SECCIÓN AXONOMÉTRICA
• SECCIÓN CON DIMENSIONES TÉCNICAS
• SECCIÓN DE DETALLES DE CONSTRUCCIÓN
• PLAN DE DEMOLICIÓN Y RECONSTRUCCIÓN
• PLAN DE ILUMINACIÓN
• ESQUEMA DE LUCES
• LISTA DE ACABADOS
• PLAN DE TECHO/FALSOS TECHOS
• LISTA DE MATERIALES PARA SUELOS
• PLANO Y ÁBACO DE LAS ESPECIES VEGETALES
• VISTA DE RENDIMIENTO - Al menos 1 vista de rendimiento para cada habitación/área de la casa en la sección 5
Sección 10 - Otras notas
La casa está actualmente vacía y tengo pleno acceso a ella.
En caso de que necesite más fotos, vídeos o aclaraciones sobre el plano o el diseño, no dude en publicarlo en el tablero de mensajes.
Muchas gracias por su interés y por leer este largo resumen.
Quedo a la espera de las presentaciones.