
20097 San Donato Milanese, Metropolitan City of Milan, Italy
Residenziale - Appartamento
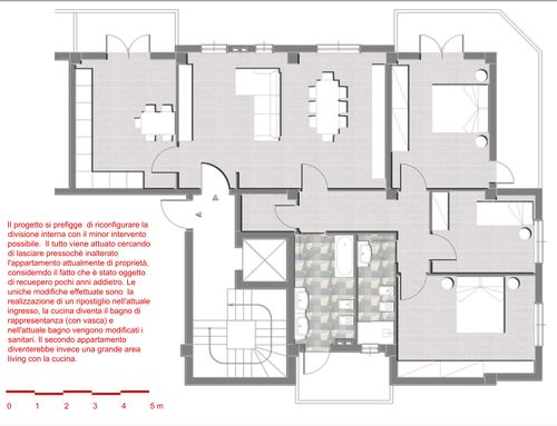
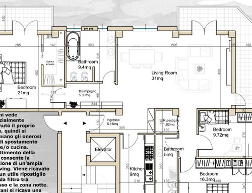
Descrizione
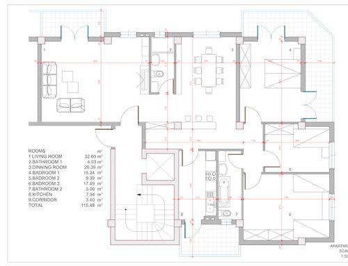
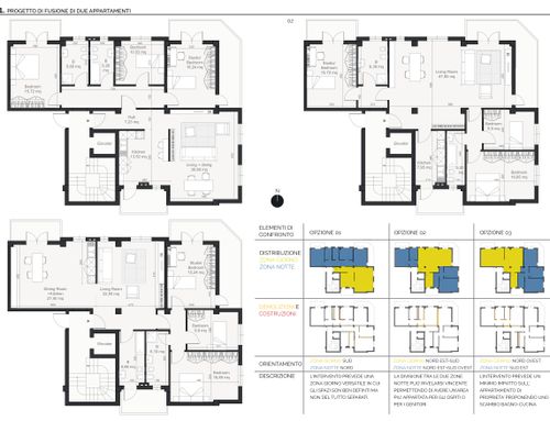
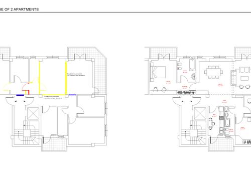
Sto valutando di acquistare l'appartamento confinante a quello in cui abito. Prima di finalizzare l'operazione vorrei capire se l'unione dei due appartamenti rispecchia i miei gusti e le mie necessita'.
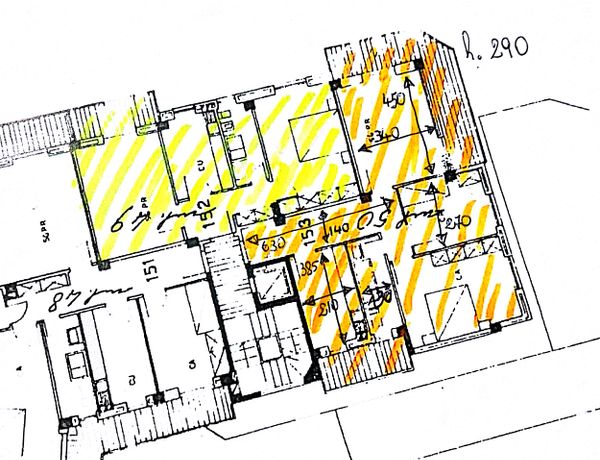
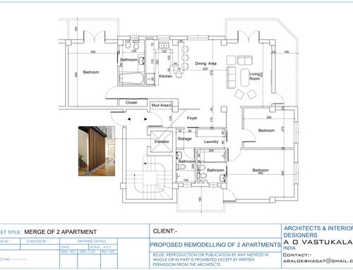
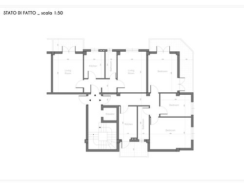
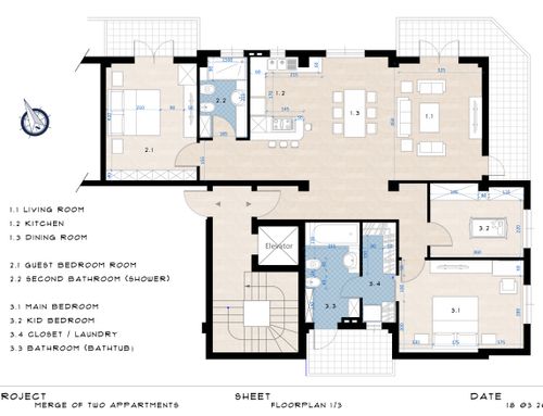
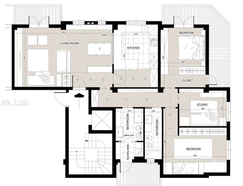
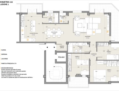
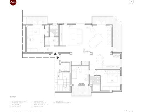
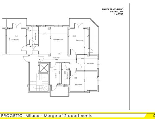
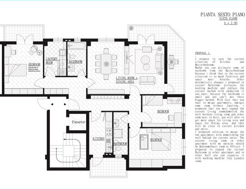
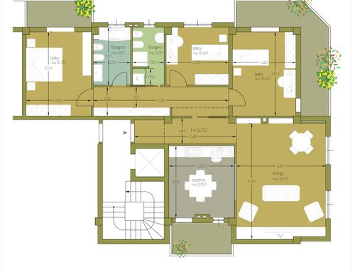
Trovate in allegato le attuali planimetrie: ho evidenziato in arancione il 3 locali in cui vivo attualmente e in giallo il 2 locali che vorrei acquistare. L'appartemento e' al sesto piano di un condominio degli anni 70.
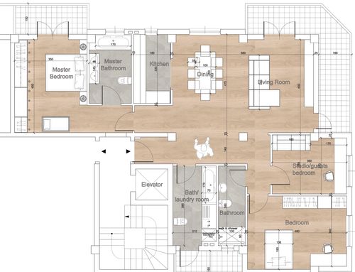
Preferenze non vincolanti:
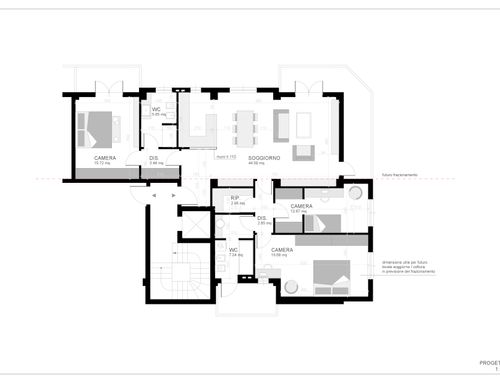
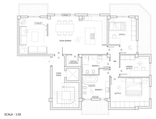
- prevedere due bagni: uno con una vasca da bagno, uno con la doccia.
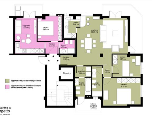
- rendere semplice separare nuovamente i due appartamenti nel caso in cui volessi rivenderli in futuro.
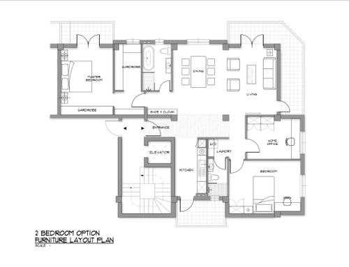
- attualmente ho necessita' di due camere da letto, ma vorrei poter facilmente adibirne un'altra nel caso in cui ne avessi necessita' (per un totale di 3).
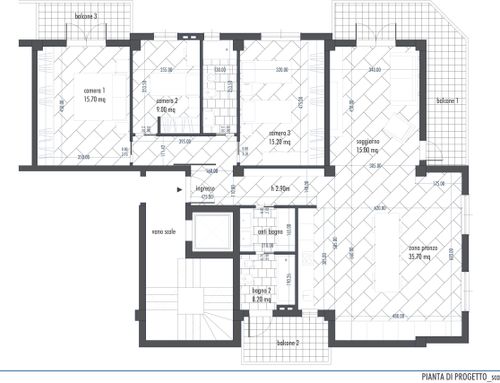
- sto prevedendo di ristrutturare completamente il 2 locali, mentre vorrei limitare i lavori sul 3 locali (ristrutturato meno di 5 anni fa).
Ho caricato le foto degli interni dell'appartamento che occupo attualmente.
----------------------------------------------------------------------------------
I would like to buy the apartment near to mine, but before I would like to understand if the union of the two apartments reflects my needs.
Attached the plans: I highlighted my current house in orange and the new apartment in yellow. The apartements are located in a condominium of the early seventies.
I would like to:
- have two bathrooms: one with a bathtub, one with a shower.
- make it easy to separate the two apartments in future (to sell them again).
- currently I need only two bedrooms, but I would like to easily obtain another one (just in case).
- I am planning to completely refurbish the new one, while I would like to limit the work on my current apartment (refurcish less than 5 years ago).
I attached the picture of my current apartment.