
Via dei Gracchi 30, Milano
Residenziale - Appartamento
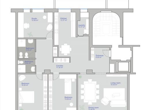
Descrizione
ENG:
Close the second entrance because it is not necessary.
Main entrance to the living area (consider the possibility of creating a separate entrance area, not entirely closed, to place a wardrobe for coats and empty pockets).
Living area open to the open kitchen but habitable with table and possibility of having lunch/dinner in the kitchen for the family.
Kitchen developed on the internal side, where it is currently located (on Viale Bezzi, upper part of the plan), consider whether to keep the bathroom near the k in its current position or create a second blind bathroom and open the kitchen onto the current bathroom to create a larger and open space with the living room (preferred solution).
Sleeping area: 3 bedrooms, one double and 2 singles, no en-suite bathrooms, 2 bathrooms plus laundry/storage room.
Functional wardrobe in each bedroom plus wardrobe for changing seasons in the corridor.
There is currently already a ducted air conditioning system inside the plasterboard false ceiling to be maintained.
SPA:
Cierre la segunda entrada ya que no es necesaria.
Entrada principal a la zona de estar (considerar crear una zona de entrada independiente, no completamente cerrada, para colocar un armario para abrigos y bolsillos vacíos).
Zona de estar abierta a cocina abierta pero habitable con mesa y posibilidad de realizar comidas/cenas en la cocina para la familia.
Cocina desarrollada en el lado interno, donde se encuentra actualmente (en Viale Bezzi, parte superior del plano), evaluar si mantener el baño cerca de la k en su posición actual o crear un segundo baño ciego y abrir la cocina al baño actual para crear un espacio más grande y abierto con la sala de estar (solución preferida).
Zona de noche: 3 habitaciones, una doble y 2 individuales, sin baños en suite, 2 baños más lavadero/trastero.
Armario funcional en cada habitación y armario de temporada en el pasillo.
Actualmente ya existe un sistema de aire acondicionado por conductos en el interior del falso techo de pladur que necesita mantenimiento.
ITA:
Chiudere il secondo ingresso perchè non necessario.
Ingresso principale su zona giorno (valutare la possibilità di creeare una zona ingresso disimpegnata, non interamente chiusa, per posizionare un armadio per cappotti e svuotatasche).
Zona Living aperta su cucina a vista ma abitabile con tavolo e possibilità di pranzare/cenare in cucina per la famiglia.
Cucina sviluppata su lato interno, dove si trova attualmente (su Viale Bezzi, parte alta della planimetria), valutare se tenere il bagno vicino all k nell'attuale posizione oppure creare un secondo bagno cieco e aprire la cucina sull'attuale bagno per creare un ambiente più grande e aperto con il living (soluzione preferibile).
Zona notte: 3 camere da letto, una matrimoniale e 2 singole, no bagni en-suite, 2 servizi oltre lavanderia/ripostiglio.
Armadiatura funzionale in ciascuna camera più armadiatura cambio-stagione in corridoio.
attualmente è già presente impianto di condizionamento canalizzato all'interno di controsoffitttatura in cartongesso da mentenere.