
Roma, RM, Italia
Residenziale - Appartamento
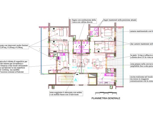
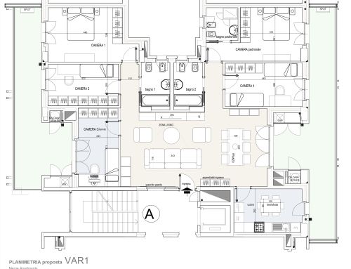
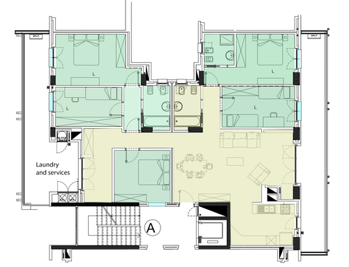
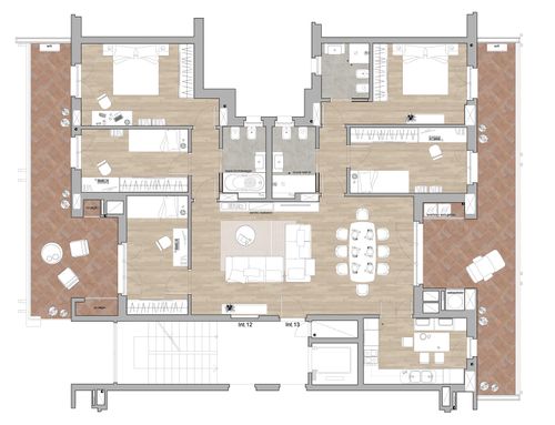
Descrizione
ENG:
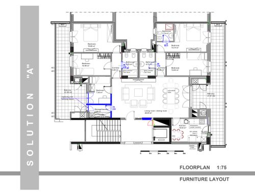
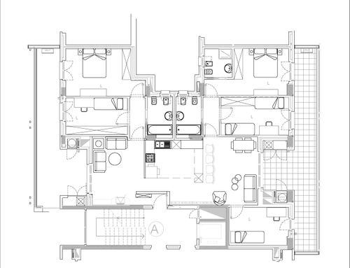
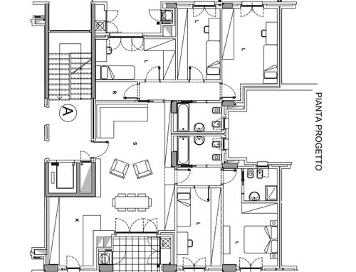
I need to join two adjacent apartments. The goal is to transform them into a single functional and spacious home, suitable for a large family of parents and 4 children.
I want to obtain:
5 bedrooms
1 functional kitchen
3 bathrooms (already existing, to be maintained)
A comfortable living room or common area
I want to avoid major structural changes: I prefer solutions that exploit existing rooms, with minimal demolition (only partitions if necessary).
SPA:
Necesito unir dos apartamentos contiguos. El objetivo es transformarlas en una única vivienda funcional y espaciosa, adecuada para una familia numerosa de padres y 4 hijos.
Quiero conseguir:
5 habitaciones
1 cocina funcional
3 baños (ya existentes, a mantener)
Una cómoda sala de estar o área común.
Quiero evitar grandes cambios estructurales: prefiero soluciones que aprovechen los espacios existentes, con una demolición mínima (solo particiones si es necesario).
ITA:
Devo unire due appartamenti adiacenti. L’obiettivo è trasformarli in un’unica abitazione funzionale e spaziosa, adatta a una famiglia numerosa genitori e 4 figli.
Voglio ottenere:
5 camere da letto
1 cucina funzionale
3 bagni (già esistenti, da mantenere)
Un soggiorno o zona comune confortevole
Voglio evitare modifiche strutturali importanti: preferisco soluzioni che sfruttino le stanze già esistenti, con minime demolizioni (solo tramezzi se necessario).