
Turin, Metropolitan City of Turin, Italy
Residenziale - Appartamento
Descrizione
ITA.VERS: Vorrei realizzare un appartamento moderno e funzionale.
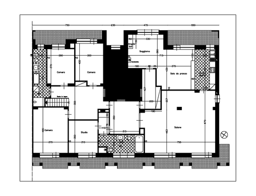
L'alloggio nasce dall'unione di 3 appartamenti e vorrei che la progettazione considerasse la possibilità di ripristinare agevolmente i 3 appartamenti.
Ho esigenza di ristrutturare entrambi i bagni. Vorrei modificare l'accesso del bagno principale: preferirei che fosse dall'ingresso principale.
Nel salone mi piacerebbe predisporre un angolo bar.
Vorrei eliminare il cucinino e creare un ambiente unico con la sala da pranzo ed il piccolo soggiorno.
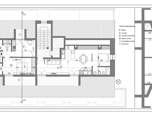
In mansarda vorrei creare un mini appartamento (camera, bagno, cucina) con terrazzino da poter rendere indipendente dal resto dell'appartamento.
Sempre in mansarda vorrei inoltre creare una lavanderia, una palestra ed un terrazzino annessi all'appartamento.
Delle 4 camere, 3 sono destinate a camere da letto ed una a studio che potrebbe all'occasione diventare camera per gli ospiti.
ENG.VERS: I would like to build a modern and functional apartment.
The apartament is formed by the union of 3 apartments and I would like the design to consider the possibility of easily restoring the 3 apartments.
I need to renovate both bathrooms. I would like to change the access to the main bathroom: I would prefer it to be from the main entrance.
In the livingroom I would like to set up a bar corner.
I would like to eliminate the small kitchen and create an open space with the dining room and the small living room so I can have a bigger kitchen.
In the attic I would like to create a mini apartment (bedroom, bathroom, kitchen) with a balcony that can be made independent of the rest of the apartment.
Also in the attic I would also like to create a laundry room, a gym and a balcony attached to the apartment.
Of the 4 bedrooms, 3 are intended for bedrooms and one for a studio which could become a guest room on occasion.
SPA VERS:
Me gustaría construir un apartamento moderno y funcional.
El alojamiento nació de la unión de 3 apartamentos y me gustaría que el diseño considere la posibilidad de restaurar fácilmente los 3 apartamentos.
Necesito renovar ambos baños. Me gustaría cambiar el acceso al baño principal: preferiría que fuera desde la entrada principal.
En el salón me gustaría armar un rincón con un bar.
Me gustaría eliminar la cocina y crear un ambiente único con el comedor y la pequeña sala de estar.
En el ático, me gustaría crear un mini apartamento (dormitorio, baño, cocina) con una pequeña terraza que se pueda hacer independiente del resto del apartamento.
También en el ático me gustaría crear una sala de lavandería, un gimnasio y una pequeña terraza adjunta al apartamento.
De las 4 habitaciones, 3 son para dormitorios y un estudio que podría convertirse en la habitación de invitados de la ocasión.